

オフィスビル外観1 / 3
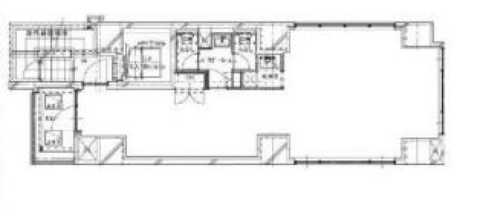
区画詳細情報
| 階数 | 7 | 内装 | セットアップオフィス |
|---|---|---|---|
| 面積(坪) | 19.91坪 | 面積(㎡) | 65.82㎡ |
| 賃料 | 要問い合わせ | 坪単価 | 要問い合わせ |
| 敷金/保証金 | 4ヶ月0円 | 礼金 | 0 |
| 入居可能日 | - | 募集状況 | 空室 |
| 収容人数 | - | 会議室 | 1室 |
| テレブース | - | 機械警備 | - |
| 天井高 | - | 床仕様 | OAフロア |
| トイレ | 男女トイレ別 | 空調 | - |
物件情報
| 物件名 | ACN日本橋PLACE | ||
|---|---|---|---|
| 所在地 | 東京都中央区日本橋2-16-6 | ||
| 最寄駅 | 日本橋駅 徒歩2分 / 茅場町駅 徒歩7分 / 人形町駅 徒歩10分 | ||
| 構造 | 鉄筋コンクリート造 | 規模 | 地上10階 |
| 竣工 | 2019 | リニューアル | - |



