募集区画
最終更新日:2026年3月30日
| 階数 | 内装 | 面積 | 賃料 | 共益費 | 敷金 | 入居可能日 | ||
|---|---|---|---|---|---|---|---|---|
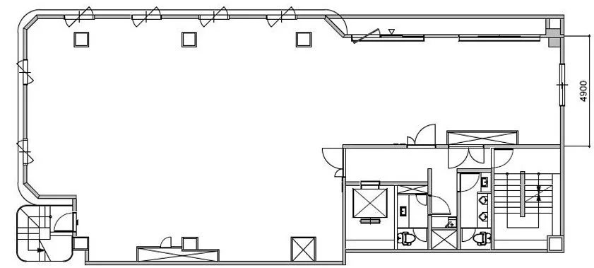
| 詳細を見る | 4階 | 内装事務所仕様 | 62.04坪 (205.09㎡) | 賃料要問合せ | 共益費相談 | 敷金6ヶ月 | 入居可能日相談 |
※敷金減額サービスをご利用時は、賃料の 4〜8%(与信審査により変動)の保証料が年間で別途発生します。
物件所在地
エリア紹介
神田・御茶ノ水エリアは、都心へのアクセスに優れた、コストパフォーマンスの高い賃貸オフィスをお探しの方に最適なエリアです。JR山手線、京浜東北線、中央総武線に加え、東京メトロ丸ノ内線、千代田線、都営新宿線など、複数の路線が利用可能で、各駅からの徒歩時間も比較的短く、都内主要エリアへのアクセスは抜群です。たとえば、東京駅へは約10分、新宿駅へは約20分と、スムーズな移動が可能です。 賃料相場は、都心の一等地と比較すると割安感があり、特に地方本社企業の東京支店や、大手企業の関連会社からの需要が厚いのが特徴です。近年は、スタートアップ企業やIT企業の進出も目立っており、多様な業種のオフィスニーズに対応できる柔軟性も持ち合わせています。 御茶ノ水は、古くから医療機関や大学などの教育機関が集積する文教エリアとして知られていますが、近年ではオフィスビル開発が進み、オフィス街としての魅力も高まっています。落ち着いた雰囲気の中で、創造的なオフィス環境を求める企業にも適しています。また、セットアップオフィスも比較的見つけやすく、初期費用を抑えてオフィス移転を検討されている企業にもおすすめです。神田エリアは、ビジネス街としての顔を持ちながらも、老舗の飲食店や個性的なショップも点在し、ランチタイムやアフターワークも充実します。新規の貸事務所をお探しの方にも、既存のオフィスからのオフィス移転を検討されている方にも、神田・御茶ノ水エリアは魅力的な選択肢となるでしょう。












