











オフィスビル外観1 / 13
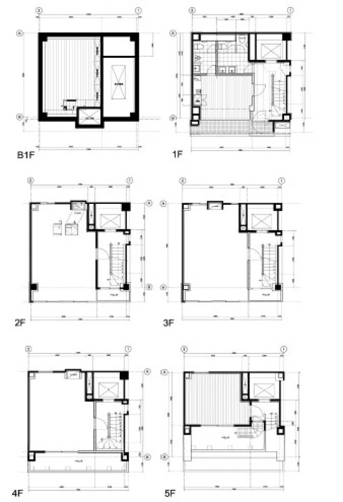
区画詳細情報
| 階数 | 1 | 内装 | 事務所仕様 |
|---|---|---|---|
| 面積(坪) | 79.45坪 | 面積(㎡) | 262.65㎡ |
| 賃料 | ¥1,271,200 | 坪単価 | ¥16,000/坪 |
| 敷金/保証金 | 10ヶ月 | 礼金 | - |
| 入居可能日 | - | 募集状況 | 空室 |
| 収容人数 | - | 会議室 | - |
| テレブース | - | 機械警備 | - |
| 天井高 | - | 床仕様 | OAフロア |
| トイレ | 共用男女別 | 空調 | 個別 |
物件情報
| 物件名 | DCCビル | ||
|---|---|---|---|
| 所在地 | 東京都中央区新富1-6-16 | ||
| 最寄駅 | 新富町駅 徒歩3分 / 宝町駅 徒歩4分 / 八丁堀駅 徒歩4分 | ||
| 構造 | 鉄筋コンクリート造 | 規模 | 地上5階 / 地下1階 |
| 竣工 | 1984 | リニューアル | - |
