




















オフィスビル外観1 / 22
敷金8ヶ月
ACN三田ビル
| 住所 | 東京都港区芝5-15-2 |
|---|---|
| 最寄駅 | 三田駅 徒歩4分 |
| 竣工年 | 2024年 |
| 構造・規模 | 鉄筋コンクリート造 / 地上9階 |
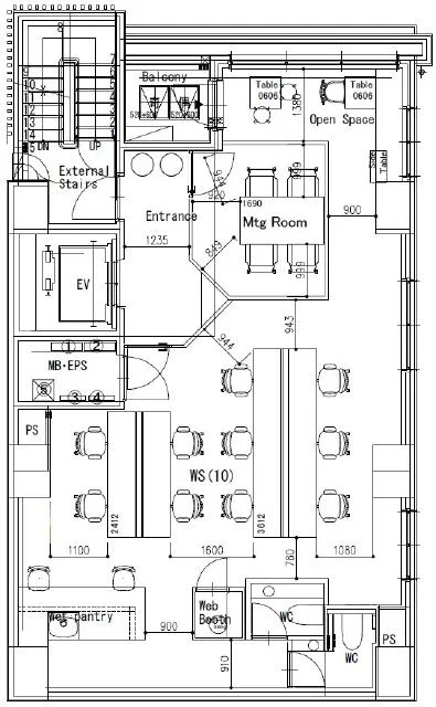
#セットアップオフィス#内装付きオフィス
募集区画
最終更新日:2026年4月14日
| 階数 | 内装 | 面積 | 賃料 | 共益費 | 敷金 | 入居可能日 | ||
|---|---|---|---|---|---|---|---|---|
| 詳細を見る | 7階 | 内装セットアップオフィス | 22.94坪 (75.83㎡) | 賃料要問合せ | 共益費相談 | 敷金8ヶ月 | 入居可能日相談 |
※敷金減額サービスをご利用時はサービス利用料として減額分の5%が年間で別途発生します。
物件所在地
エリア紹介
浜松町・田町・芝公園エリアは、羽田空港へ東京モノレールで約20分と直結し、国内外へのアクセスに優れたビジネスエリアです。JR山手線・京浜東北線に加え、都営浅草線・三田線も利用可能で、複数路線が乗り入れる交通利便性の高さが魅力です。近年は再開発が進み、最新の設備を備えた賃貸オフィスや商業施設が続々と誕生しています。都心でありながら、芝公園や東京タワーといった緑豊かなリフレッシュスポットも充実しており、ビジネスパーソンにとって快適な環境が整っています。 このエリアの貸事務所の賃料相場は、都心の中では比較的リーズナブルでありながら、グレードの高いオフィス空間が期待できます。また、スタートアップ企業や中小企業にとって魅力的な、内装工事済みのセットアップオフィスも増加傾向にあります。慶應義塾大学三田キャンパス周辺には、バラエティ豊かな飲食店が軒を連ね、ランチタイムやアフターワークも充実するでしょう。 浜松町エリアは、古くからの企業に加え、近年ではIT企業など新しい産業も集積しており、活気にあふれています。オフィス移転を検討されている企業にとって、交通利便性とコストパフォーマンス、そして周辺環境の良さを兼ね備えた、魅力的な選択肢となるでしょう。洗練されたオフィス環境と、歴史と文化が融合した街並みが、ビジネスの可能性を広げます。







