募集区画
最終更新日:2026年4月13日
| 階数 | 内装 | 面積 | 賃料 | 共益費 | 敷金 | 入居可能日 | ||
|---|---|---|---|---|---|---|---|---|
| 詳細を見る | 3階 | 内装事務所仕様 | 44坪 (145.45㎡) | 賃料要問合せ | 共益費相談 | 敷金8ヶ月 | 入居可能日相談 | |
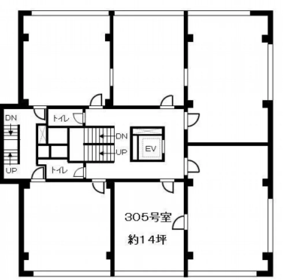
| 詳細を見る | 4階 | 内装事務所仕様 | 14坪 (46.27㎡) | 賃料要問合せ | 共益費相談 | 敷金8ヶ月 | 入居可能日相談 | |
| 詳細を見る | 4階 | 内装事務所仕様 | 22坪 (72.73㎡) | 賃料要問合せ | 共益費相談 | 敷金8ヶ月 | 入居可能日相談 |
※敷金減額サービスをご利用時はサービス利用料として減額分の5%が年間で別途発生します。
物件所在地
エリア紹介
代々木・千駄ヶ谷エリアは、新宿と渋谷という二大都市の間に位置する、多様な魅力を持つビジネスエリアです。JR山手線・中央総武線の代々木駅、JR中央総武線と都営大江戸線の千駄ヶ谷駅が利用可能で、複数路線が乗り入れる利便性の高い立地です。特に代々木駅からは、徒歩圏内で新宿駅へアクセスできるため、主要ターミナル駅への移動もスムーズに行えます。 このエリアの特徴として、明治神宮、代々木公園、国立競技場といった文化・スポーツ施設が数多く集積している点が挙げられます。緑豊かな環境がオフィスワーカーの心身のリフレッシュを促進し、創造性を刺激するでしょう。また、アパレル関連企業の拠点としても知られており、感度の高い企業が集まっていることも特徴です。近年では、クリエイティブなオフィス空間を提供するセットアップオフィスも増えており、企業の多様なニーズに対応できるようになっています。 賃料水準は、新宿や渋谷と比較して抑えめな傾向にあり、コストパフォーマンスを重視する企業にとって魅力的な選択肢となります。そのため、スタートアップ企業や中小企業のオフィス移転先としても注目されています。周辺の賃貸オフィス相場は、広さや築年数によって異なりますが、坪単価11,000円程度から物件を探すことが可能です。洗練された雰囲気と利便性を兼ね備えながらも、比較的リーズナブルな賃料で貸事務所を探せる点が、代々木・千駄ヶ谷エリアの大きな魅力と言えるでしょう。ビジネスとプライベートの調和がとれた、快適なオフィス環境が期待できるエリアです。






