





































オフィスビル外観1 / 39
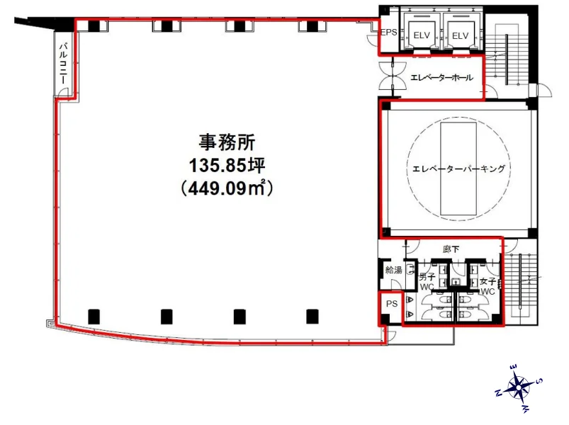
区画詳細情報
| 階数 | 4 | 内装 | 事務所仕様 |
|---|---|---|---|
| 面積(坪) | 135.85坪 | 面積(㎡) | 449.09㎡ |
| 賃料 | 要問い合わせ | 坪単価 | 要問い合わせ |
| 敷金/保証金 | 12ヶ月 | 礼金 | - |
| 入居可能日 | - | 募集状況 | 空室 |
| 収容人数 | - | 会議室 | - |
| テレブース | - | 機械警備 | - |
| 天井高 | 2650 | 床仕様 | OAフロア |
| トイレ | - | 空調 | 個別 |
物件情報
| 物件名 | コーンズハウスⅡ | ||
|---|---|---|---|
| 所在地 | 東京都港区芝3-5-1 | ||
| 最寄駅 | 芝公園駅 徒歩2分 / 赤羽橋駅 徒歩5分 / 三田駅 徒歩6分 | ||
| 構造 | 鉄骨造・鉄骨鉄筋コンクリート造 | 規模 | 地上7階 / 地下1階 |
| 竣工 | 2001 | リニューアル | - |


