大門駅の小規模オフィス一覧
サイトに掲載できない非公開物件が多数ございます。
セットアップ・居抜き・敷金0円など、サイト未掲載の物件もご提案可能です。
検索結果 151 区画 募集中/登録374,683区画
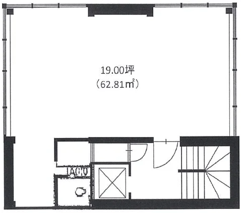
フロア図面



ASOOM新橋ビル




新橋駅駅徒歩7分、汐留駅駅徒歩7分に位置するの地上14階 / 地下1階建てオフィスビル。エレベーター2基を完備。約45.4坪のフロアは中規模オフィスに適した広さ。
| 階数 | 面積 | 賃料総額 | 坪単価 | 内装 | 敷金 | 入居日 | ||
|---|---|---|---|---|---|---|---|---|
| 2F | 45.4坪(150.1㎡) | 要問合せ | - | セットアップオフィス | 0円 | 相談 | 詳細を見る | |
| 5F | 45.4坪(150.1㎡) | 要問合せ | - | 事務所仕様 | 0円 | 相談 | 詳細を見る | |
| 6F | 45.4坪(150.1㎡) | 要問合せ | - | 事務所仕様 | 0円 | 相談 | 詳細を見る | |
| 7F | 45.4坪(150.1㎡) | 要問合せ | - | 事務所仕様 | 0円 | 相談 | 詳細を見る | |
| 9F | 43.0坪(142.3㎡) | 要問合せ | - | 事務所仕様 | 0円 | 相談 | 詳細を見る |
DaiwaA浜松町ビル
大門駅駅徒歩3分、汐留駅駅徒歩6分に位置するの地上10階 / 地下2階建てオフィスビル。エレベーター2基を完備。約63.89坪のフロアは中規模オフィスに適した広さ。
| 階数 | 面積 | 賃料総額 | 坪単価 | 内装 | 敷金 | 入居日 | ||
|---|---|---|---|---|---|---|---|---|
| 6F | 63.9坪(211.2㎡) | 要問合せ | - | 事務所仕様 | 0円 | 相談 | 詳細を見る |
外観



NOVEL WORK Shibakoen




| 階数 | 面積 | 賃料総額 | 坪単価 | 内装 | 敷金 | 入居日 | ||
|---|---|---|---|---|---|---|---|---|
| 7F | 30.7坪(101.4㎡) | 要問合せ | - | セットアップオフィス | 相談 | 相談 | 詳細を見る |
オフィスビル外観

















芝大門スクエア


















大門駅徒歩4分、御成門駅徒歩6分の芝大門1丁目に位置する地上5階建てオフィスビル。OAフロア・個別空調・男女別トイレ・エレベーター1基を完備。約29坪のフロアは少人数から中規模オフィスに対応可能。敷金5ヶ月で入居可能。大門エリアの好立地です。
| 階数 | 面積 | 賃料総額 | 坪単価 | 内装 | 敷金 | 入居日 | ||
|---|---|---|---|---|---|---|---|---|
| 4F | 29.4坪(97.2㎡) | 705,600円 | 24,000円 | セットアップオフィス | 2ヶ月 | 相談 | 詳細を見る |
オフィスビル外観









REGRARD SHIMBASHI










| 階数 | 面積 | 賃料総額 | 坪単価 | 内装 | 敷金 | 入居日 | ||
|---|---|---|---|---|---|---|---|---|
| 1F | 20.6坪(68.0㎡) | 要問合せ | - | セットアップオフィス | 4ヶ月 | 相談 | 詳細を見る | |
| 5F | 23.8坪(78.7㎡) | 要問合せ | - | セットアップオフィス | 4ヶ月 | 相談 | 詳細を見る |
サイトに掲載できない非公開物件が多数ございます。
セットアップ・居抜き・敷金0円など、サイト未掲載の物件もご提案可能です。
オフィスビル外観



































CIRCLES+新橋(サークルズプラス新橋)




































御成門駅駅徒歩3分、新橋駅駅徒歩10分に位置するの地上13階建てオフィスビル。エレベーター3基を完備。基準階約99.99坪の大型フロアが特徴。
| 階数 | 面積 | 賃料総額 | 坪単価 | 内装 | 敷金 | 入居日 | ||
|---|---|---|---|---|---|---|---|---|
| 3F | 100.0坪(330.6㎡) | 要問合せ | - | セットアップオフィス | 6ヶ月 | 即日 | 詳細を見る | |
| 10F | 100.0坪(330.6㎡) | 要問合せ | - | セットアップオフィス | 6ヶ月 | 相談 | 詳細を見る |
オフィスビル外観
















浜松町PREX

















2023年竣工の新築セットアップオフィス。浜松町駅・大門駅・芝公園駅の3駅が徒歩5分圏内という交通利便性に加え、天井高2,700mmの開放的な執務空間が魅力です。69.85坪のフロアには会議室2室・WEBブース・リフレッシュスペースまで完備。1階の入居者専用ラウンジやレインボーブリッジを望む屋上テラスなど共用施設も充実しています。敷金0円・内装付きオフィスのため、オフィス移転の初期費用を大幅に抑えられます。
| 階数 | 面積 | 賃料総額 | 坪単価 | 内装 | 敷金 | 入居日 | ||
|---|---|---|---|---|---|---|---|---|
| 4F | 69.8坪(230.9㎡) | 要問合せ | - | セットアップオフィス | 4ヶ月 | 2026/07/01 | 詳細を見る |
オフィスビル外観









PMO浜松町Ⅲビル










浜松町駅駅徒歩3分、大門駅駅徒歩8分に位置するの地上11階建てオフィスビル。エレベーター2基を完備。基準階約92.71坪の大型フロアが特徴。
| 階数 | 面積 | 賃料総額 | 坪単価 | 内装 | 敷金 | 入居日 | ||
|---|---|---|---|---|---|---|---|---|
| 8F | 92.7坪(306.5㎡) | 要問合せ | - | セットアップオフィス | 相談 | 2026/09/01 | 詳細を見る |
オフィスビル外観


















PORT ONE SHIMBASHI



















新橋駅徒歩8分、御成門駅徒歩5分の港区新橋エリアに位置するセットアップオフィスです。1フロア約18坪のコンパクトな区画でワンフロア・ワンテナントの独立した執務空間を確保。個別空調・OAフロア・男女別トイレ・機械警備を備え、光ファイバーも導入済みです。24時間利用制限なしで、多忙なビジネスパーソンの働き方にも柔軟に対応します。敷金0円の内装付きオフィスで、少人数でのオフィス移転に適しています。
| 階数 | 面積 | 賃料総額 | 坪単価 | 内装 | 敷金 | 入居日 | ||
|---|---|---|---|---|---|---|---|---|
| 3F | 22.4坪(73.9㎡) | 要問合せ | - | セットアップオフィス | 4ヶ月 | 相談 | 詳細を見る |
オフィスビル外観







ACN芝公園ビル








御成門駅駅徒歩4分、大門駅駅徒歩6分に位置するの地上6階 / 地下1階建てオフィスビル。エレベーター1基を完備。約19.43坪のフロアは少人数から中規模オフィスに対応可能。
| 階数 | 面積 | 賃料総額 | 坪単価 | 内装 | 敷金 | 入居日 | ||
|---|---|---|---|---|---|---|---|---|
| 5F | 19.4坪(64.2㎡) | 要問合せ | - | セットアップオフィス | 8ヶ月 | 相談 | 詳細を見る |
サイトに掲載できない非公開物件が多数ございます。
セットアップ・居抜き・敷金0円など、サイト未掲載の物件もご提案可能です。
オフィスビル外観
















+SHIFT SHIBADAIMON

















+SHIFT SHIBADAIMONは、大門駅徒歩3分のセットアップオフィスです。2020年にエントランスと屋上をリニューアルし、東京タワーを望むルーフトップテラスが特長。基準階約65坪の内装付きオフィスに、OAフロア・個別空調を完備しています。浜松町駅・芝公園駅も徒歩圏内で、増上寺や芝公園に隣接する緑豊かな環境です。周辺に飲食店・コンビニ・銀行が揃い、敷金0円でスムーズなオフィス移転を実現します。
| 階数 | 面積 | 賃料総額 | 坪単価 | 内装 | 敷金 | 入居日 | ||
|---|---|---|---|---|---|---|---|---|
| 1F | 45.0坪(148.7㎡) | 1,259,720円 | 28,000円 | セットアップオフィス | 7ヶ月 | 相談 | 詳細を見る | |
| 5F | 77.9坪(257.5㎡) | 2,336,700円 | 30,000円 | セットアップオフィス | 7ヶ月 | 即日 | 詳細を見る | |
| 6F | 77.9坪(257.5㎡) | 2,336,700円 | 30,000円 | セットアップオフィス | 7ヶ月 | 即日 | 詳細を見る |
オフィスビル外観




H¹O浜松町





大門駅駅徒歩2分、御成門駅駅徒歩4分に位置するの地上13階建てオフィスビル。エレベーター3基を完備。約71.45坪のフロアは中規模オフィスに適した広さ。
| 階数 | 面積 | 賃料総額 | 坪単価 | 内装 | 敷金 | 入居日 | ||
|---|---|---|---|---|---|---|---|---|
| 11F | 71.5坪(236.2㎡) | 要問合せ | - | セットアップオフィス | 相談 | 相談 | 詳細を見る | |
| 12F | 71.5坪(236.2㎡) | 要問合せ | - | セットアップオフィス | 相談 | 相談 | 詳細を見る |
オフィスビル外観








TOWER FRONT 神谷町









| 階数 | 面積 | 賃料総額 | 坪単価 | 内装 | 敷金 | 入居日 | ||
|---|---|---|---|---|---|---|---|---|
| 1F | 108.6坪(359.1㎡) | 2,715,500円 | 25,000円 | 事務所仕様 | 6ヶ月 | 相談 | 詳細を見る | |
| 2F | 54.3坪(179.5㎡) | 1,357,750円 | 25,000円 | セットアップオフィス | 6ヶ月 | 相談 | 詳細を見る | |
| 3F | 54.3坪(179.5㎡) | 1,357,750円 | 25,000円 | セットアップオフィス | 6ヶ月 | 相談 | 詳細を見る |
オフィスビル外観





















グランファースト芝大門






















浜松町駅駅徒歩8分、大門駅駅徒歩4分に位置するの地上9階建てオフィスビル。エレベーター2基を完備。基準階約110.54坪の大型フロアが特徴。
| 階数 | 面積 | 賃料総額 | 坪単価 | 内装 | 敷金 | 入居日 | ||
|---|---|---|---|---|---|---|---|---|
| 2F | 110.5坪(365.4㎡) | 要問合せ | - | セットアップオフィス | 6ヶ月 | 相談 | 詳細を見る | |
| 5F | 110.5坪(365.4㎡) | 要問合せ | - | セットアップオフィス | 6ヶ月 | 相談 | 詳細を見る | |
| 6F | 110.5坪(365.4㎡) | 要問合せ | - | セットアップオフィス | 6ヶ月 | 相談 | 詳細を見る | |
| 7F | 110.5坪(365.4㎡) | 要問合せ | - | セットアップオフィス | 6ヶ月 | 相談 | 詳細を見る | |
| 8F | 110.5坪(365.4㎡) | 要問合せ | - | セットアップオフィス | 6ヶ月 | 相談 | 詳細を見る |
ヴィラローザ浜松町
| 階数 | 面積 | 賃料総額 | 坪単価 | 内装 | 敷金 | 入居日 | ||
|---|---|---|---|---|---|---|---|---|
| 4F | 9.3坪(30.8㎡) | 119,993円 | 12,861円 | 事務所仕様 | 1ヶ月 | 相談 | 詳細を見る |
94物件中 1〜20物件を表示