高田馬場駅の小規模オフィス一覧
サイトに掲載できない非公開物件が多数ございます。
セットアップ・居抜き・敷金0円など、サイト未掲載の物件もご提案可能です。
検索結果 54 区画 募集中/登録374,683区画
敷金8ヶ月
オフィスビル外観1 / 10










敷金8ヶ月
彰文ビル
住所東京都新宿区下落合1-4-18エリア高田馬場・大久保最寄り駅高田馬場駅 徒歩5分空き区画1区画
オフィス物件詳細を見る →









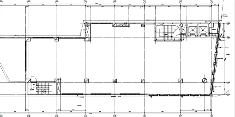
高田馬場駅徒歩5分の下落合1丁目に位置する地上6階・地下1階建てオフィスビル。OAフロア・個別空調・男女別トイレ・エレベーター1基を完備。約59坪のフロアはワンフロア利用に適した広さ。JR山手線・西武新宿線・東西線の3路線が利用可能で、新宿・池袋方面へのアクセスも便利です。
| 階数 | 面積 | 賃料総額 | 坪単価 | 内装 | 敷金 | 入居日 | ||
|---|---|---|---|---|---|---|---|---|
| 1F | 59.0坪(195.1㎡) | 要問合せ | - | 事務所仕様 | 8ヶ月 | 相談 | 詳細を見る |
43物件中 1〜20物件を表示