
フロア図面1 / 2
区画詳細情報
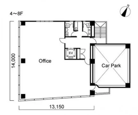
| 階数 | 4 | 内装 | 事務所仕様 |
|---|---|---|---|
| 面積(坪) | 25.15坪 | 面積(㎡) | 83.14㎡ |
| 賃料 | ¥364,675 | 坪単価 | ¥14,500/坪 |
| 敷金/保証金 | 10ヶ月0円 | 礼金 | - |
| 入居可能日 | - | 募集状況 | 空室 |
| 収容人数 | - | 会議室 | - |
| テレブース | - | 機械警備 | - |
| 天井高 | 2500 | 床仕様 | OAフロア |
| トイレ | 共用男女別 | 空調 | 個別 |
物件情報
| 物件名 | 九州DKビル | ||
|---|---|---|---|
| 所在地 | 福岡県福岡市中央区舞鶴2-4-13 | ||
| 最寄駅 | 赤坂駅 徒歩2分 / 天神駅 徒歩8分 / 西鉄福岡(天神)駅 徒歩11分 | ||
| 構造 | 鉄骨鉄筋コンクリート造 | 規模 | 地上8階 |
| 竣工 | 1987 | リニューアル | - |