













オフィスビル外観1 / 15
STARビル博多祇園(スタービル博多祇園)
4F
| 面積 | 8.1坪(26.6㎡) |
|---|---|
| 賃料 | 要問い合わせ |
| 坪単価 | 要問い合わせ |
| 敷金 | 相談 |
| 内装 | 事務所仕様 |
| 入居可能日 | - |
※敷金減額サービスをご利用時は、賃料の 4〜8%(与信審査により変動)の保証料が年間で別途発生します。
物件ページに戻る区画詳細情報
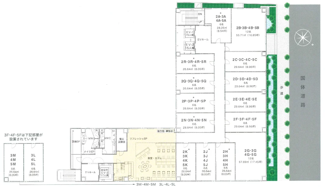
面積・間取り
| 階数 | 4 | 内装 | 事務所仕様 |
|---|---|---|---|
| 面積(坪) | 8.05坪 | 面積(㎡) | 26.61㎡ |
| 天井高 | - | 床仕様 | OAフロア |
| 収容人数 | - | 会議室 | - |
賃料・契約条件
| 賃料 | 要問い合わせ | 坪単価 | 要問い合わせ |
|---|---|---|---|
| 敷金/保証金 | 相談 | 礼金 | - |
| 入居可能日 | - | 募集状況 | 空室 |
設備・仕様
| テレブース | - | 機械警備 | - |
|---|---|---|---|
| トイレ | 共用男女別 | 空調 | 個別 |
物件情報
アクセス・所在地
| 物件名 | STARビル博多祇園(スタービル博多祇園) | ||
|---|---|---|---|
| 所在地 | 福岡県福岡市博多区祇園町1-20 | ||
| 最寄駅 | 祇園駅 徒歩1分 / 櫛田神社前駅 徒歩4分 / 中洲川端駅 徒歩8分 | ||
建物概要
| 構造 | 鉄骨造 | 規模 | 地上10階 |
|---|---|---|---|
| 竣工 | 2023年 | リニューアル | - |
同じ物件の他の区画26件

10
事務所仕様187.4坪要問合せ
3
事務所仕様8.1坪要問合せ
3
事務所仕様16.9坪要問合せ
3
事務所仕様9.0坪要問合せ
3
事務所仕様17.4坪要問合せ
4
事務所仕様16.9坪要問合せ
4
事務所仕様9.0坪要問合せ
4
事務所仕様8.5坪要問合せ
4
事務所仕様17.4坪要問合せ
5
事務所仕様17.4坪要問合せ
5
事務所仕様16.9坪要問合せ
5
事務所仕様8.1坪要問合せ
5
事務所仕様8.5坪要問合せ
5
事務所仕様9.0坪要問合せ
6
事務所仕様15.7坪要問合せ
6
事務所仕様23.8坪要問合せ
6
事務所仕様16.6坪要問合せ
6
事務所仕様25.4坪要問合せ
6
事務所仕様17.9坪要問合せ
6
事務所仕様17.9坪要問合せ
7
事務所仕様25.4坪要問合せ
7
事務所仕様17.9坪要問合せ
7
事務所仕様17.9坪要問合せ
7
事務所仕様23.8坪要問合せ
7
事務所仕様16.6坪要問合せ