






オフィスビル外観1 / 8
区画詳細情報
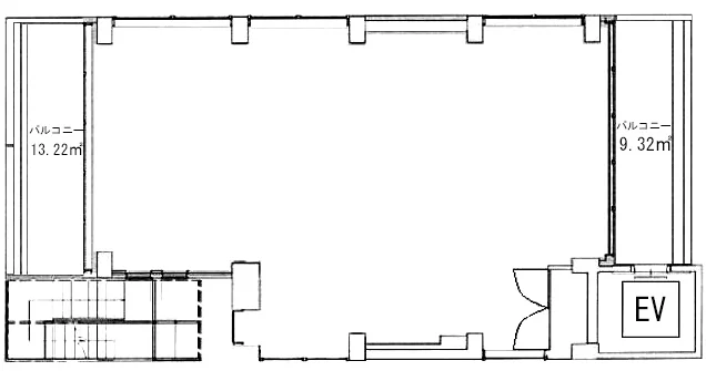
| 階数 | 2 | 内装 | 事務所仕様 |
|---|---|---|---|
| 面積(坪) | 31.48坪 | 面積(㎡) | 104.08㎡ |
| 賃料 | 要問い合わせ | 坪単価 | 要問い合わせ |
| 敷金/保証金 | 6ヶ月 | 礼金 | 0 |
| 入居可能日 | 即日 | 募集状況 | 空室 |
| 収容人数 | - | 会議室 | 1室 |
| テレブース | - | 機械警備 | - |
| 天井高 | 3250 | 床仕様 | - |
| トイレ | - | 空調 | - |
物件情報
| 物件名 | CADRE tamachi | ||
|---|---|---|---|
| 所在地 | 東京都港区芝浦3-6-12 | ||
| 最寄駅 | 田町駅 徒歩5分 / 三田駅 徒歩8分 / 芝浦ふ頭駅 徒歩9分 | ||
| 構造 | 鉄筋コンクリート造 | 規模 | 地上8階 |
| 竣工 | 2026 | リニューアル | - |






