






オフィスビル外観1 / 8
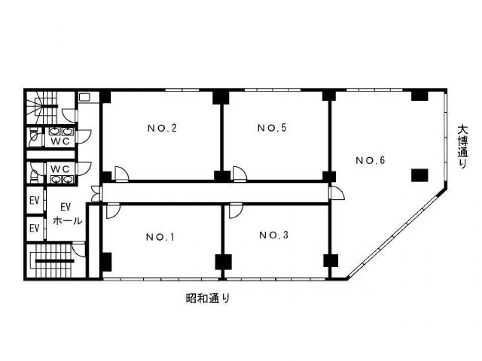
区画詳細情報
| 階数 | 3 | 内装 | 事務所仕様 |
|---|---|---|---|
| 面積(坪) | 29.22坪 | 面積(㎡) | 96.60㎡ |
| 賃料 | ¥268,824 | 坪単価 | ¥9,203/坪 |
| 敷金/保証金 | 相談 | 礼金 | - |
| 入居可能日 | - | 募集状況 | 空室 |
| 収容人数 | - | 会議室 | - |
| テレブース | - | 機械警備 | - |
| 天井高 | - | 床仕様 | - |
| トイレ | 共用男女別 | 空調 | 個別 |
物件情報
| 物件名 | ヤシマ博多ビル | ||
|---|---|---|---|
| 所在地 | 福岡県福岡市博多区奈良屋町1-1 | ||
| 最寄駅 | 呉服町駅 徒歩2分 / 中洲川端駅 徒歩6分 / 千代県庁口駅 徒歩8分 | ||
| 構造 | 鉄骨鉄筋コンクリート造 | 規模 | 地上10階 |
| 竣工 | 1976 | リニューアル | - |