













































1 / 46
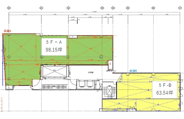
区画詳細情報
| 階数 | 5 | 内装 | 事務所仕様 |
|---|---|---|---|
| 面積(坪) | 98.15坪 | 面積(㎡) | 324.46㎡ |
| 賃料 | ¥1,619,475 | 坪単価 | ¥16,500/坪 |
| 敷金/保証金 | 6ヶ月 | 礼金 | - |
| 入居可能日 | - | 募集状況 | 空室 |
| 収容人数 | - | 会議室 | - |
| テレブース | - | 機械警備 | - |
| 天井高 | - | 床仕様 | - |
| トイレ | - | 空調 | 個別 |
物件情報
| 物件名 | サウスサイドテラス | ||
|---|---|---|---|
| 所在地 | 福岡県福岡市中央区大名1-1-38 | ||
| 最寄駅 | 天神南駅 徒歩5分 / 天神駅 徒歩7分 / 薬院駅 徒歩7分 | ||
| 構造 | 鉄筋コンクリート造 | 規模 | 地上5階 |
| 竣工 | 1999 | リニューアル | - |

