




























オフィスビル外観1 / 30
区画詳細情報
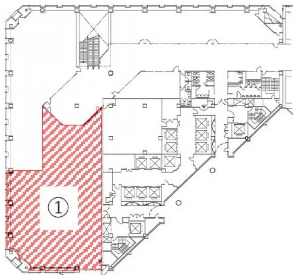
| 階数 | 2 | 内装 | 事務所仕様 |
|---|---|---|---|
| 面積(坪) | 141.83坪 | 面積(㎡) | 468.86㎡ |
| 賃料 | 要問い合わせ | 坪単価 | 要問い合わせ |
| 敷金/保証金 | 相談 | 礼金 | - |
| 入居可能日 | - | 募集状況 | 空室 |
| 収容人数 | - | 会議室 | - |
| テレブース | - | 機械警備 | - |
| 天井高 | 2600 | 床仕様 | - |
| トイレ | 共用男女別 | 空調 | セントラル |
物件情報
| 物件名 | 大森ベルポートB館 | ||
|---|---|---|---|
| 所在地 | 東京都品川区南大井6-26-2 | ||
| 最寄駅 | 大森海岸駅 徒歩4分 / 大森駅 徒歩5分 / 平和島駅 徒歩11分 | ||
| 構造 | 鉄骨造 | 規模 | 地上18階 / 地下3階 |
| 竣工 | 1995 | リニューアル | - |
