


















オフィスビル外観1 / 20
区画詳細情報
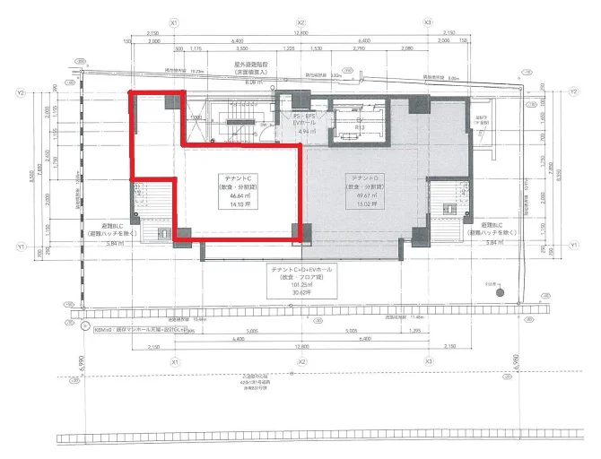
| 階数 | 2 | 内装 | 事務所仕様 |
|---|---|---|---|
| 面積(坪) | 14.10坪 | 面積(㎡) | 46.61㎡ |
| 賃料 | 要問い合わせ | 坪単価 | 要問い合わせ |
| 敷金/保証金 | 5ヶ月 | 礼金 | - |
| 入居可能日 | - | 募集状況 | 空室 |
| 収容人数 | - | 会議室 | - |
| テレブース | - | 機械警備 | - |
| 天井高 | - | 床仕様 | - |
| トイレ | - | 空調 | - |
物件情報
| 物件名 | ビーロット赤坂ビル | ||
|---|---|---|---|
| 所在地 | 福岡県福岡市中央区赤坂1-3-5 | ||
| 最寄駅 | 赤坂駅 徒歩4分 / 桜坂駅 徒歩10分 / 天神駅 徒歩11分 | ||
| 構造 | 鉄筋コンクリート造 | 規模 | 地上9階 |
| 竣工 | 2024 | リニューアル | - |

