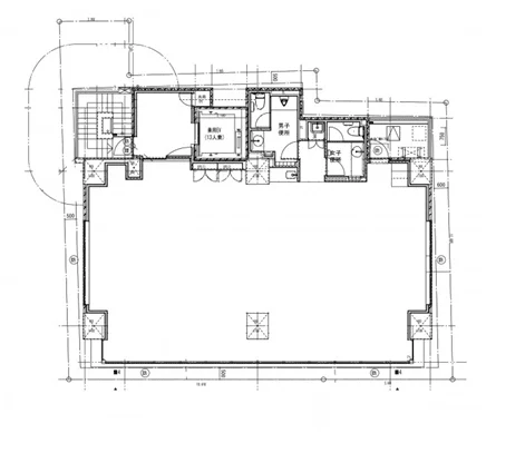
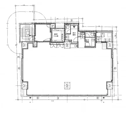
間取り図1 / 1
区画詳細情報
| 階数 | 7 | 内装 | 事務所仕様 |
|---|---|---|---|
| 面積(坪) | 43.75坪 | 面積(㎡) | 144.63㎡ |
| 賃料 | 要問い合わせ | 坪単価 | 要問い合わせ |
| 敷金/保証金 | 12ヶ月 | 礼金 | なし |
| 入居可能日 | - | 募集状況 | 空室 |
| 収容人数 | - | 会議室 | - |
| テレブース | - | 機械警備 | - |
| 天井高 | - | 床仕様 | - |
| トイレ | 男女トイレ別 | 空調 | - |
物件情報
| 物件名 | TS.ONE | ||
|---|---|---|---|
| 所在地 | 東京都文京区湯島3-31-4 | ||
| 最寄駅 | 湯島駅 徒歩1分 / 上野広小路駅 徒歩5分 | ||
| 構造 | - | 規模 | 地上9階 |
| 竣工 | - | リニューアル | - |






