














オフィスビル外観1 / 16
敷金4ヶ月
KANビル
| 住所 | 福岡県福岡市中央区渡辺通2-9-16 |
|---|---|
| 最寄駅 | 薬院駅 徒歩3分 天神南駅 徒歩7分 天神南 徒歩8分 |
| 竣工年 | 1997年 |
| 構造・規模 | 鉄骨造 / 地上5階 |
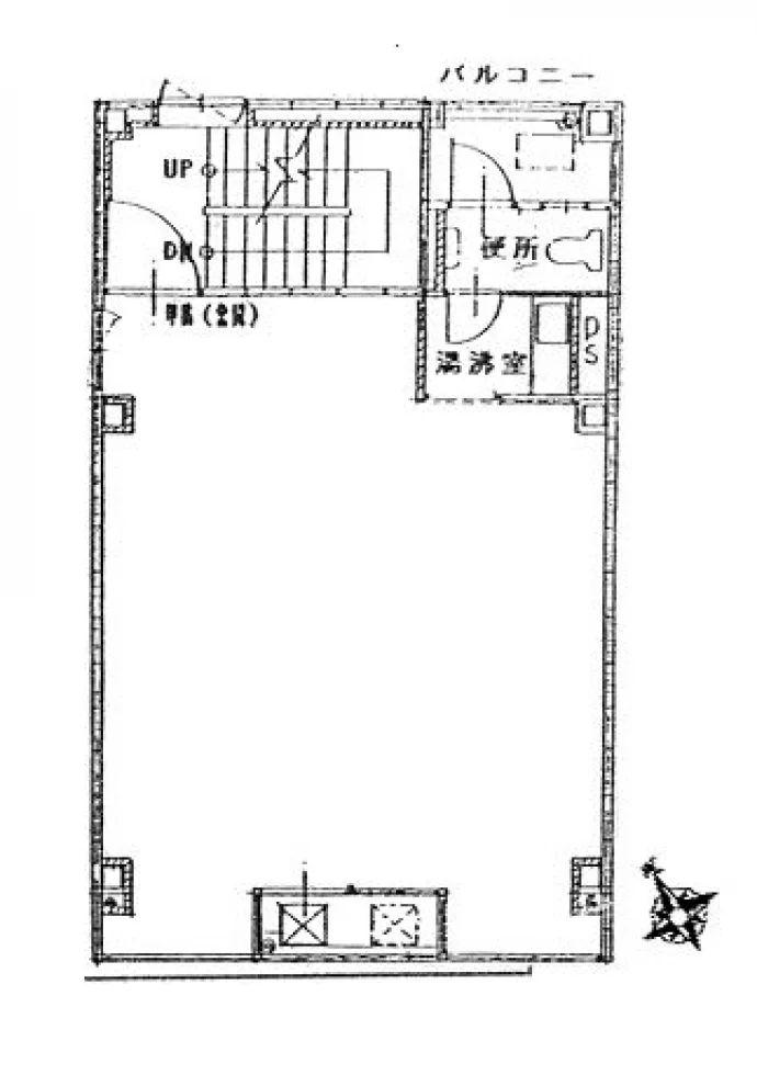
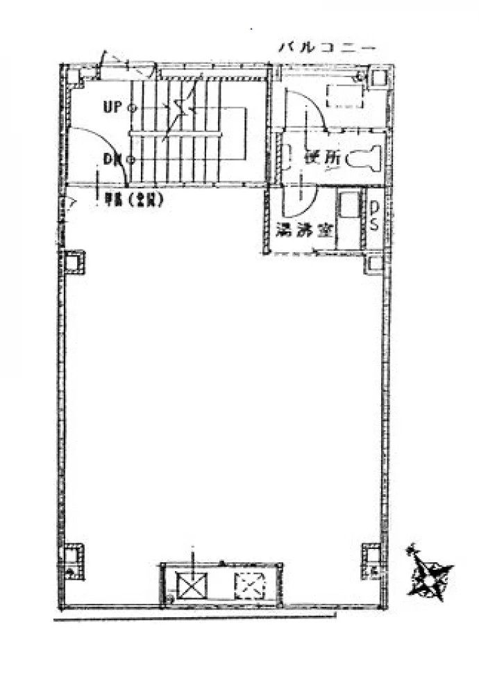
募集区画
最終更新日:2026年4月24日
| 階数 | 内装 | 面積 | 賃料 | 共益費 | 敷金 | 入居可能日 | ||
|---|---|---|---|---|---|---|---|---|
| 詳細を見る | 2階 | 内装事務所仕様 | 18.26坪 (60.36㎡) | 賃料要問合せ | 共益費相談 | 敷金4ヶ月 | 入居可能日相談 |
※敷金減額サービスをご利用時は、賃料の 4〜8%(与信審査により変動)の保証料が年間で別途発生します。







