
| 階数 | 7 | 内装 | 事務所仕様 |
|---|---|---|---|
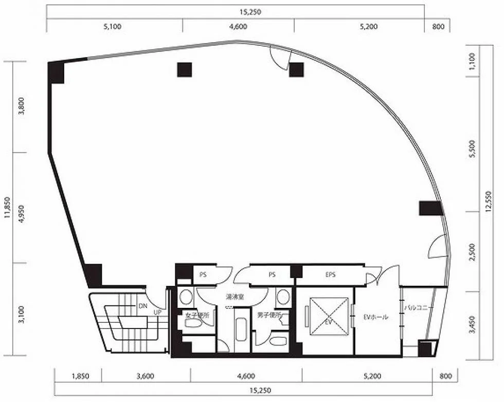
| 面積(坪) | 44.58坪 | 面積(㎡) | 147.37㎡ |
| 賃料 | 要問い合わせ | 坪単価 | 要問い合わせ |
| 敷金/保証金 | 12ヶ月6ヶ月 | 礼金 | 0 |
| 入居可能日 | - | 募集状況 | 空室 |
| 収容人数 | - | 会議室 | - |
| テレブース | - | 機械警備 | - |
| 天井高 | 2600 | 床仕様 | OAフロア |
| トイレ | 共用男女別 | 空調 | 個別 |
| 物件名 | いちご西五反田ビル | ||
|---|---|---|---|
| 所在地 | 東京都品川区西五反田3-6-20 | ||
| 最寄駅 | 五反田駅 徒歩5分 / 不動前駅 徒歩6分 / 目黒駅 徒歩8分 | ||
| 構造 | - | 規模 | - |
| 竣工 | 1990 | リニューアル | - |