


外観1 / 4
敷金12ヶ月
品川シーサイドフォレストオーバルガーデン
| 住所 | 東京都品川区東品川4-12-6 |
|---|---|
| 最寄駅 | 品川シーサイド 徒歩1分 |
| 竣工年 | 2002年09月 |
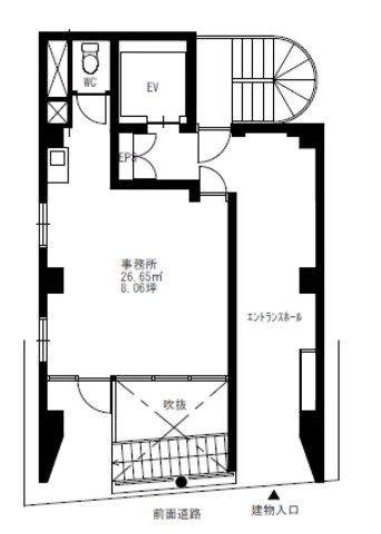
募集区画
最終更新日:2026年5月8日
| 階数 | 内装 | 面積 | 賃料 | 共益費 | 敷金 | 入居可能日 | ||
|---|---|---|---|---|---|---|---|---|
| 詳細を見る | 1階 | 内装事務所仕様 | 4.9坪 (16.2㎡) | 賃料要問合せ | 共益費相談 | 敷金相談 | 入居可能日相談 | |
| 詳細を見る | 1階 | 内装事務所仕様 | 6.54坪 (21.62㎡) | 賃料要問合せ | 共益費相談 | 敷金12ヶ月 | 入居可能日相談 | |
| 詳細を見る | B1階 | 内装事務所仕様 | 4.9坪 (16.19㎡) | 賃料要問合せ | 共益費相談 | 敷金相談 | 入居可能日相談 |
※敷金減額サービスをご利用時は、賃料の 4〜8%(与信審査により変動)の保証料が年間で別途発生します。




