























オフィスビル外観1 / 25
博多駅前第一生命ビルディング
| 住所 | 福岡県福岡市博多区博多駅前1-4-1 |
|---|---|
| 最寄駅 | 祇園駅 徒歩2分 博多駅 徒歩5分 櫛田神社前駅 徒歩6分 |
| 竣工年 | 1983年 |
| 構造・規模 | 鉄骨鉄筋コンクリート造 / 地下2階地上9階建 |
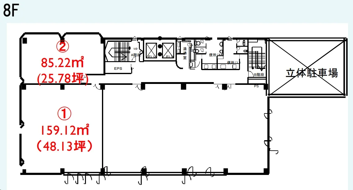
募集区画
最終更新日:2026年4月30日
| 階数 | 内装 | 面積 | 賃料 | 共益費 | 敷金 | 入居可能日 | ||
|---|---|---|---|---|---|---|---|---|
| 詳細を見る | 4階 | 内装事務所仕様 | 59.91坪 (198.05㎡) | 賃料要問合せ | 共益費¥0 | 敷金相談 | 入居可能日相談 | |
| 詳細を見る | 6階 | 内装事務所仕様 | 30.62坪 (101.23㎡) | 賃料要問合せ | 共益費相談 | 敷金相談 | 入居可能日相談 |
※敷金減額サービスをご利用時は、賃料の 4〜8%(与信審査により変動)の保証料が年間で別途発生します。




