大崎駅の賃貸オフィス・貸事務所一覧
検索結果 26 件 募集中/登録179,760件
敷金
12ヶ月0円
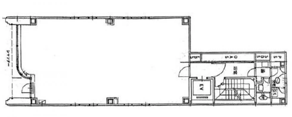
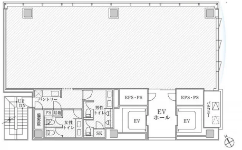
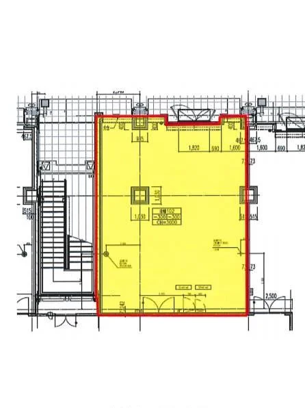
フロア図面1 / 2


敷金
12ヶ月0円
(仮称)大崎コアプロジェクト(街区名称:大崎リバーウォークガーデン)
住所東京都品川区東五反田2-700エリア五反田・大崎最寄り駅大崎駅 徒歩4分、五反田駅 徒歩6分空き区画7区画
オフィス物件詳細を見る →大崎駅徒歩4分、五反田駅徒歩6分に2027年2月竣工予定の大規模再開発プロジェクト。東急不動産が手がける地上20階・地下2階建ての鉄骨造オフィスタワーで、基準階約775坪の大空間フロアが特徴です。天井高2,900mm・OAフロア・個別空調・男女別トイレ・エレベーター19基を完備。食堂やシェアオフィスなどの付帯施設に加え、緑豊かな広場も整備予定。大規模なオフィス移転に対応する最新のワークプレイスです。
| 階数 | 面積 | 賃料総額 | 坪単価 | 内装 | 敷金 | 入居日 | ||
|---|---|---|---|---|---|---|---|---|
| 14F | 775.0坪(2562.0㎡) | 要問合せ | - | 事務所仕様 | 0円 | 2027-03-01T00:00:00.000Z | 詳細を見る | |
| 15F | 775.0坪(2562.0㎡) | 要問合せ | - | 事務所仕様 | 0円 | 2027-03-01T00:00:00.000Z | 詳細を見る | |
| 16F | 775.0坪(2562.0㎡) | 要問合せ | - | 事務所仕様 | 0円 | 2027-03-01T00:00:00.000Z | 詳細を見る | |
| 17F | 775.0坪(2562.0㎡) | 要問合せ | - | 事務所仕様 | 0円 | 2027-03-01T00:00:00.000Z | 詳細を見る | |
| 18F | 775.0坪(2562.0㎡) | 要問合せ | - | 事務所仕様 | 0円 | 2027-03-01T00:00:00.000Z | 詳細を見る | |
| 19F | 773.6坪(2557.5㎡) | 要問合せ | - | 事務所仕様 | 0円 | 2027-03-01T00:00:00.000Z | 詳細を見る | |
| 20F | 740.0坪(2446.4㎡) | 要問合せ | - | 事務所仕様 | 0円 | 2027-03-01T00:00:00.000Z | 詳細を見る |
敷金6ヶ月
オフィスビル外観1 / 43











































敷金6ヶ月
THE GATE GOTANDA EAST
セットアップ有
住所東京都品川区東五反田1-25-11エリア五反田・大崎最寄り駅五反田駅 徒歩6分、五反田駅 徒歩5分空き区画4区画
オフィス物件詳細を見る →| 階数 | 面積 | 賃料総額 | 坪単価 | 内装 | 敷金 | 入居日 | ||
|---|---|---|---|---|---|---|---|---|
| 2F | 80.3坪(265.5㎡) | 要問合せ | - | セットアップオフィス | 6ヶ月 | 相談 | 詳細を見る | |
| 3F | 80.3坪(265.5㎡) | 要問合せ | - | セットアップオフィス | 6ヶ月 | 相談 | 詳細を見る | |
| 5F | 80.3坪(265.5㎡) | 要問合せ | - | 事務所仕様 | 6ヶ月 | 相談 | 詳細を見る | |
| 6F | 80.3坪(265.5㎡) | 要問合せ | - | セットアップオフィス | 6ヶ月 | 相談 | 詳細を見る |
敷金12ヶ月
exterior1 / 2


敷金12ヶ月
OSビルディング
住所東京都品川区東五反田2-21-28エリア五反田・大崎最寄り駅大崎駅 徒歩8分、五反田駅 徒歩9分空き区画3区画
オフィス物件詳細を見る →| 階数 | 面積 | 賃料総額 | 坪単価 | 内装 | 敷金 | 入居日 | ||
|---|---|---|---|---|---|---|---|---|
| 4F | 171.4坪(566.5㎡) | 要問合せ | - | 事務所仕様 | 12ヶ月 | 相談 | 詳細を見る | |
| 5F | 171.4坪(566.7㎡) | 要問合せ | - | 事務所仕様 | 12ヶ月 | 相談 | 詳細を見る | |
| 6F | 171.4坪(566.7㎡) | 要問合せ | - | 事務所仕様 | 12ヶ月 | 相談 | 詳細を見る |
敷金12ヶ月
exterior1 / 5





敷金12ヶ月
大崎MTビル
住所東京都品川区北品川5-9-11エリア品川・天王洲・大井町最寄り駅大崎駅 徒歩8分、北品川駅 徒歩11分空き区画2区画
オフィス物件詳細を見る →| 階数 | 面積 | 賃料総額 | 坪単価 | 内装 | 敷金 | 入居日 | ||
|---|---|---|---|---|---|---|---|---|
| 9F | 81.0坪(267.8㎡) | 要問合せ | - | 事務所仕様 | 12ヶ月 | 2026/08/01 | 詳細を見る | |
| 11F | 197.8坪(653.9㎡) | 要問合せ | - | 事務所仕様 | 12ヶ月 | 相談 | 詳細を見る |
敷金10ヶ月
exterior1 / 4




敷金10ヶ月
イマス大崎ビル
住所東京都品川区大崎1-20-3エリア五反田・大崎最寄り駅大崎駅 徒歩2分空き区画2区画
オフィス物件詳細を見る →| 階数 | 面積 | 賃料総額 | 坪単価 | 内装 | 敷金 | 入居日 | ||
|---|---|---|---|---|---|---|---|---|
| 3F | 82.0坪(271.2㎡) | 要問合せ | - | 事務所仕様 | 10ヶ月 | 2026/11/01 | 詳細を見る | |
| 4F | 82.0坪(271.2㎡) | 要問合せ | - | 事務所仕様 | 10ヶ月 | 2026/11/01 | 詳細を見る |
敷金2ヶ月
exterior1 / 4




敷金2ヶ月
ヴァンドーム五反田ビル
住所東京都品川区大崎5-4-8エリア五反田・大崎最寄り駅大崎駅 徒歩4分、五反田駅 徒歩6分空き区画1区画
オフィス物件詳細を見る →| 階数 | 面積 | 賃料総額 | 坪単価 | 内装 | 敷金 | 入居日 | ||
|---|---|---|---|---|---|---|---|---|
| 2F | 12.7坪(42.0㎡) | 要問合せ | - | 事務所仕様 | 2ヶ月 | 相談 | 詳細を見る |
敷金6ヶ月
exterior1 / 5





敷金6ヶ月
五反田シティトラストビル
住所東京都品川区西五反田1-23-7エリア五反田・大崎最寄り駅五反田駅 徒歩5分、大崎広小路駅 徒歩1分空き区画1区画
オフィス物件詳細を見る →| 階数 | 面積 | 賃料総額 | 坪単価 | 内装 | 敷金 | 入居日 | ||
|---|---|---|---|---|---|---|---|---|
| 2F | 37.5坪(124.0㎡) | 要問合せ | - | 事務所仕様 | 6ヶ月 | 2026/05/01 | 詳細を見る |
敷金相談
exterior1 / 5





敷金相談
中村屋ビル
住所東京都品川区西五反田8-1-8エリア五反田・大崎最寄り駅五反田駅 徒歩5分、大崎広小路駅 徒歩2分空き区画1区画
オフィス物件詳細を見る →| 階数 | 面積 | 賃料総額 | 坪単価 | 内装 | 敷金 | 入居日 | ||
|---|---|---|---|---|---|---|---|---|
| 4F | 26.6坪(85.3㎡) | 要問合せ | - | 事務所仕様 | 相談 | 相談 | 詳細を見る |
敷金12ヶ月
exterior1 / 5





敷金12ヶ月
ONO(オノ)ビル
住所東京都品川区大崎5-4-2エリア五反田・大崎最寄り駅五反田駅 徒歩5分、大崎駅 徒歩8分空き区画1区画
オフィス物件詳細を見る →| 階数 | 面積 | 賃料総額 | 坪単価 | 内装 | 敷金 | 入居日 | ||
|---|---|---|---|---|---|---|---|---|
| 3F | 122.1坪(403.6㎡) | 要問合せ | - | 事務所仕様 | 12ヶ月 | 2026/04 上旬 | 詳細を見る |
敷金12ヶ月
exterior1 / 5





敷金12ヶ月
PMO五反田
住所東京都品川区西五反田8-1-3エリア五反田・大崎最寄り駅大崎広小路駅 徒歩2分、五反田駅 徒歩5分空き区画1区画
オフィス物件詳細を見る →| 階数 | 面積 | 賃料総額 | 坪単価 | 内装 | 敷金 | 入居日 | ||
|---|---|---|---|---|---|---|---|---|
| 3F | 47.7坪(157.8㎡) | 要問合せ | - | 事務所仕様 | 12ヶ月 | 相談 | 詳細を見る |
敷金10ヶ月
exterior1 / 3



敷金10ヶ月
光村ビル
住所東京都品川区大崎1-15-9エリア五反田・大崎最寄り駅大崎駅 徒歩7分空き区画1区画
オフィス物件詳細を見る →| 階数 | 面積 | 賃料総額 | 坪単価 | 内装 | 敷金 | 入居日 | ||
|---|---|---|---|---|---|---|---|---|
| 1F | 60.5坪(200.0㎡) | 要問合せ | - | 事務所仕様 | 10ヶ月 | 相談 | 詳細を見る |
敷金12ヶ月
exterior1 / 5





敷金12ヶ月
ウィン第2五反田ビル
住所東京都品川区大崎4-1-2エリア五反田・大崎最寄り駅五反田駅 徒歩7分、大崎駅 徒歩7分空き区画1区画
オフィス物件詳細を見る →| 階数 | 面積 | 賃料総額 | 坪単価 | 内装 | 敷金 | 入居日 | ||
|---|---|---|---|---|---|---|---|---|
| 3F | 58.8坪(194.5㎡) | 要問合せ | - | 事務所仕様 | 12ヶ月 | 2026/08/25 | 詳細を見る |
14物件中 1〜14物件を表示