四ツ谷駅の賃貸オフィス・貸事務所一覧
サイトに掲載できない非公開物件が多数ございます。
セットアップ・居抜き・敷金0円など、サイト未掲載の物件もご提案可能です。
検索結果 157 区画 募集中/登録374,683区画
オフィスビル外観











Biz Feel 四谷三丁目












四谷三丁目駅から徒歩2分、新宿通り沿いに立つセットアップオフィスです。20.18坪のコンパクトなフロアは、スタートアップや少人数チームのオフィス移転に最適なサイズ。OAフロア・個別空調・男女別トイレ・24時間利用可能と、内装付きオフィスとしての基本設備が整っています。敷金0円で初期コストを抑えつつ、曙橋駅・新宿御苑前駅も徒歩圏内という3駅利用可能な交通利便性が魅力です。周辺にはコンビニや飲食店も豊富にそろっています。
| 階数 | 面積 | 賃料総額 | 坪単価 | 内装 | 敷金 | 入居日 | ||
|---|---|---|---|---|---|---|---|---|
| 2F | 20.2坪(66.7㎡) | 605,400円 | 30,000円 | セットアップオフィス | 0円 | 2026年4月上旬予定 | 詳細を見る |
オフィスビル外観









NOW/HERE新宿四谷










曙橋駅徒歩5分、サンケイビル初のシェアオフィスブランド「NOW/HERE」の第1号物件。「Nowhere(ここにしかない)」と「Now Here(いまここにいる)」の2つの意味を込めたブランドで、2026年2月に竣工。1階と6階に100席以上の上質なラウンジを備え、敷金0円で利用を開始できます。個別空調・OAフロア・光ファイバー・24時間機械警備を完備。四谷駅からも徒歩圏内で5路線が利用可能。新宿駅から2駅3分というアクセスの良さも、オフィス移転先として大きな魅力です。
| 階数 | 面積 | 賃料総額 | 坪単価 | 内装 | 敷金 | 入居日 | ||
|---|---|---|---|---|---|---|---|---|
| 2F 2013 | 9.3坪(30.7㎡) | 要問合せ | - | シェアオフィス | 0円 | 2026/4/1 ※詳細は要問合せ | 詳細を見る | |
| 2F 2015 | 3.7坪(12.4㎡) | 要問合せ | - | シェアオフィス | 0円 | 2026/4/1 ※詳細は要問合せ | 詳細を見る | |
| 2F 2014 | 3.9坪(13.0㎡) | 要問合せ | - | シェアオフィス | 0円 | 2026/4/1 ※詳細は要問合せ | 詳細を見る | |
| 2F 2012 | 3.4坪(11.1㎡) | 要問合せ | - | シェアオフィス | 0円 | 2026/4/1 ※詳細は要問合せ | 詳細を見る | |
| 2F 2011 | 3.5坪(11.5㎡) | 要問合せ | - | シェアオフィス | 0円 | 2026/4/1 ※詳細は要問合せ | 詳細を見る | |
| 2F 2010 | 3.0坪(10.0㎡) | 要問合せ | - | シェアオフィス | 0円 | 2026/4/1 ※詳細は要問合せ | 詳細を見る | |
| 2F 2009 | 4.7坪(15.5㎡) | 要問合せ | - | シェアオフィス | 0円 | 2026/4/1 ※詳細は要問合せ | 詳細を見る | |
| 2F 2008 | 6.5坪(21.7㎡) | 要問合せ | - | シェアオフィス | 0円 | 2026/4/1 ※詳細は要問合せ | 詳細を見る | |
| 2F 2007 | 3.8坪(12.7㎡) | 要問合せ | - | シェアオフィス | 0円 | 2026/4/1 ※詳細は要問合せ | 詳細を見る | |
| 2F 2006 | 3.8坪(12.7㎡) | 要問合せ | - | シェアオフィス | 0円 | 2026/4/1 ※詳細は要問合せ | 詳細を見る | |
| 2F 2005 | 1.9坪(6.3㎡) | 要問合せ | - | シェアオフィス | 0円 | 2026/4/1 ※詳細は要問合せ | 詳細を見る | |
| 2F 2004 | 1.9坪(6.4㎡) | 要問合せ | - | シェアオフィス | 0円 | 2026/4/1 ※詳細は要問合せ | 詳細を見る | |
| 2F 2003 | 10.6坪(35.0㎡) | 要問合せ | - | シェアオフィス | 0円 | 2026/4/1 ※詳細は要問合せ | 詳細を見る | |
| 2F 2002 | 11.5坪(37.9㎡) | 要問合せ | - | シェアオフィス | 0円 | 2026/4/1 ※詳細は要問合せ | 詳細を見る | |
| 2F 2001 | 11.1坪(36.8㎡) | 要問合せ | - | シェアオフィス | 0円 | 2026/4/1 ※詳細は要問合せ | 詳細を見る | |
| 3F 3015 | 3.7坪(12.1㎡) | 要問合せ | - | シェアオフィス | 0円 | 2026/4/1 ※詳細は要問合せ | 詳細を見る | |
| 3F 3014 | 4.0坪(13.3㎡) | 要問合せ | - | シェアオフィス | 0円 | 2026/4/1 ※詳細は要問合せ | 詳細を見る | |
| 3F 3013 | 9.3坪(30.7㎡) | 要問合せ | - | シェアオフィス | 0円 | 2026/4/1 ※詳細は要問合せ | 詳細を見る | |
| 3F 3012 | 3.4坪(11.1㎡) | 要問合せ | - | シェアオフィス | 0円 | 2026/4/1 ※詳細は要問合せ | 詳細を見る | |
| 3F 3011 | 3.5坪(11.5㎡) | 要問合せ | - | シェアオフィス | 0円 | 2026/4/1 ※詳細は要問合せ | 詳細を見る | |
| 3F 3010 | 3.0坪(10.0㎡) | 要問合せ | - | シェアオフィス | 0円 | 2026/4/1 ※詳細は要問合せ | 詳細を見る | |
| 3F 3009 | 4.7坪(15.5㎡) | 要問合せ | - | シェアオフィス | 0円 | 2026/4/1 ※詳細は要問合せ | 詳細を見る | |
| 3F 3008 | 6.4坪(21.1㎡) | 要問合せ | - | シェアオフィス | 0円 | 2026/4/1 ※詳細は要問合せ | 詳細を見る | |
| 3F 3007 | 3.6坪(12.1㎡) | 要問合せ | - | シェアオフィス | 0円 | 2026/4/1 ※詳細は要問合せ | 詳細を見る | |
| 3F 3006 | 3.6坪(12.1㎡) | 要問合せ | - | シェアオフィス | 0円 | 2026/4/1 ※詳細は要問合せ | 詳細を見る | |
| 3F 3005 | 1.6坪(5.4㎡) | 要問合せ | - | シェアオフィス | 0円 | 2026/4/1 ※詳細は要問合せ | 詳細を見る | |
| 3F 3004 | 1.6坪(5.4㎡) | 要問合せ | - | シェアオフィス | 0円 | 2026/4/1 ※詳細は要問合せ | 詳細を見る | |
| 3F 3003 | 8.0坪(26.6㎡) | 要問合せ | - | シェアオフィス | 0円 | 2026/4/1 ※詳細は要問合せ | 詳細を見る | |
| 3F 3002 | 6.4坪(21.1㎡) | 要問合せ | - | シェアオフィス | 0円 | 2026/4/1 ※詳細は要問合せ | 詳細を見る | |
| 3F 3001 | 19.1坪(63.3㎡) | 要問合せ | - | シェアオフィス | 0円 | 2026/4/1 ※詳細は要問合せ | 詳細を見る | |
| 4F 4015 | 3.8坪(12.6㎡) | 要問合せ | - | シェアオフィス | 0円 | 2026/4/1 ※詳細は要問合せ | 詳細を見る | |
| 4F 4014 | 3.7坪(12.3㎡) | 要問合せ | - | シェアオフィス | 0円 | 2026/4/1 ※詳細は要問合せ | 詳細を見る | |
| 4F 4013 | 9.3坪(30.7㎡) | 要問合せ | - | シェアオフィス | 0円 | 2026/4/1 ※詳細は要問合せ | 詳細を見る | |
| 4F 4012 | 3.4坪(11.1㎡) | 要問合せ | - | シェアオフィス | 0円 | 2026/4/1 ※詳細は要問合せ | 詳細を見る | |
| 4F 4011 | 3.5坪(11.5㎡) | 要問合せ | - | シェアオフィス | 0円 | 2026/4/1 ※詳細は要問合せ | 詳細を見る | |
| 4F 4010 | 2.9坪(9.4㎡) | 要問合せ | - | シェアオフィス | 0円 | 2026/4/1 ※詳細は要問合せ | 詳細を見る | |
| 4F 4009 | 4.6坪(15.3㎡) | 要問合せ | - | シェアオフィス | 0円 | 2026/4/1 ※詳細は要問合せ | 詳細を見る | |
| 4F 4008 | 6.6坪(21.7㎡) | 要問合せ | - | シェアオフィス | 0円 | 2026/4/1 ※詳細は要問合せ | 詳細を見る | |
| 4F 4007 | 3.8坪(12.5㎡) | 要問合せ | - | シェアオフィス | 0円 | 2026/4/1 ※詳細は要問合せ | 詳細を見る | |
| 4F 4006 | 3.8坪(12.5㎡) | 要問合せ | - | シェアオフィス | 0円 | 2026/4/1 ※詳細は要問合せ | 詳細を見る | |
| 4F 4005 | 1.8坪(5.8㎡) | 要問合せ | - | シェアオフィス | 0円 | 2026/4/1 ※詳細は要問合せ | 詳細を見る | |
| 4F 4004 | 1.8坪(5.8㎡) | 要問合せ | - | シェアオフィス | 0円 | 2026/4/1 ※詳細は要問合せ | 詳細を見る | |
| 4F 4003 | 10.7坪(35.4㎡) | 要問合せ | - | シェアオフィス | 0円 | 2026/4/1 ※詳細は要問合せ | 詳細を見る | |
| 4F 4002 | 11.3坪(37.5㎡) | 要問合せ | - | シェアオフィス | 0円 | 2026/4/1 ※詳細は要問合せ | 詳細を見る | |
| 4F 4001 | 11.2坪(37.1㎡) | 要問合せ | - | シェアオフィス | 0円 | 2026/4/1 ※詳細は要問合せ | 詳細を見る | |
| 5F | 102.0坪(337.1㎡) | 要問合せ | - | セットアップオフィス | 0円 | 2026/04/01 | 詳細を見る | |
| 7F | 77.5坪(256.1㎡) | 要問合せ | - | セットアップオフィス | 0円 | 2026/04/01 | 詳細を見る | |
| 8F | 77.5坪(256.1㎡) | 要問合せ | - | セットアップオフィス | 0円 | 2026/04/01 | 詳細を見る |
オフィスビル外観













ACN麹町ビル














麹町駅徒歩4分、半蔵門駅徒歩7分の麹町4丁目に位置する地上12階・地下1階建てオフィスビル。エレベーター2基を完備。約45坪のフロアは中規模オフィスに適した広さ。敷金4ヶ月で入居可能。ACNシリーズの物件です。
| 階数 | 面積 | 賃料総額 | 坪単価 | 内装 | 敷金 | 入居日 | ||
|---|---|---|---|---|---|---|---|---|
| 3F | 45.3坪(149.7㎡) | 要問合せ | - | セットアップオフィス | 4ヶ月 | 相談 | 詳細を見る |
オフィスビル外観












PMO市ヶ谷













市ヶ谷駅徒歩4分、千代田区番町エリアに2025年6月竣工予定の最新オフィスビルです。4駅6路線が利用可能で、基準階約114坪の無柱空間にガラスカーテンウォールから自然光が降り注ぐ設計が特徴。天井高2,800mm・OAフロア・CFT構造による高い耐震性能を備えています。地下には71台分の駐車場を確保。エントランスはオートロック・非接触型カードリーダーを採用した万全のセキュリティ体制です。敷金0円のセットアップオフィスで、最新設備のもとスムーズなオフィス移転を実現します。
| 階数 | 面積 | 賃料総額 | 坪単価 | 内装 | 敷金 | 入居日 | ||
|---|---|---|---|---|---|---|---|---|
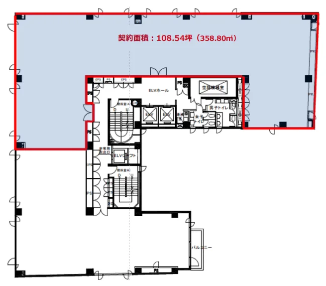
| 4F | 114.8坪(379.5㎡) | 要問合せ | - | セットアップオフィス | 12ヶ月 | 即日 | 詳細を見る |
オフィスビル外観









四谷三栄町スクエア










四ツ谷駅駅徒歩8分、四谷三丁目駅駅徒歩4分に位置するの地上6階建てオフィスビル。エレベーター1基を完備。約62.62坪のフロアは中規模オフィスに適した広さ。
| 階数 | 面積 | 賃料総額 | 坪単価 | 内装 | 敷金 | 入居日 | ||
|---|---|---|---|---|---|---|---|---|
| 3F | 62.6坪(207.0㎡) | 1,440,260円 | 23,000円 | セットアップオフィス | 6ヶ月 | 2026/03/01 | 詳細を見る |
サイトに掲載できない非公開物件が多数ございます。
セットアップ・居抜き・敷金0円など、サイト未掲載の物件もご提案可能です。
オフィスビル外観





紀尾井町ビル






麹町駅徒歩2分、永田町駅徒歩6分の紀尾井町に立つ地上26階・地下4階建ての超高層オフィスビル。1989年竣工、基準階約382坪の大型フロアにOAフロア・集中空調・男女別トイレ・エレベーター10基を完備。3〜19階がオフィスフロアで、20階以上は住居となる複合型タワーです。赤坂御用地と上智大学に隣接する格式高い紀尾井町エリアで、企業の本社機能にふさわしい一等地。
| 階数 | 面積 | 賃料総額 | 坪単価 | 内装 | 敷金 | 入居日 | ||
|---|---|---|---|---|---|---|---|---|
| 5F | 82.0坪(271.0㎡) | 要問合せ | - | 事務所仕様 | 12ヶ月 | 相談 | 詳細を見る | |
| 6F | 58.8坪(194.5㎡) | 要問合せ | - | 事務所仕様 | 12ヶ月 | 相談 | 詳細を見る | |
| 8F | 24.1坪(79.7㎡) | 要問合せ | - | 事務所仕様 | 12ヶ月 | 相談 | 詳細を見る |
オフィスビル外観











麹町鶴屋八幡ビル












半蔵門駅徒歩2分、麹町駅徒歩3分の麹町2丁目に位置する地上10階・地下2階建てオフィスビル。OAフロア・個別空調・男女別トイレ・エレベーター2基を完備。約29坪のフロアは少人数オフィスに使いやすいサイズ。半蔵門線と有楽町線の2路線が徒歩圏内で、皇居に面した番町・麹町エリアの落ち着いた環境が魅力です。
| 階数 | 面積 | 賃料総額 | 坪単価 | 内装 | 敷金 | 入居日 | ||
|---|---|---|---|---|---|---|---|---|
| 2F | 7.2坪(23.9㎡) | 要問合せ | - | 事務所仕様 | 12ヶ月 | 2026/04 上旬 | 詳細を見る |
72物件中 1〜20物件を表示