














































オフィスビル外観1 / 48
区画詳細情報
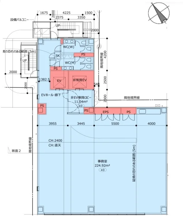
| 階数 | 12 | 内装 | セットアップオフィス |
|---|---|---|---|
| 面積(坪) | 84.29坪 | 面積(㎡) | 278.65㎡ |
| 賃料 | 要問い合わせ | 坪単価 | 要問い合わせ |
| 敷金/保証金 | 8ヶ月 | 礼金 | 0 |
| 入居可能日 | - | 募集状況 | 空室 |
| 収容人数 | - | 会議室 | 1室 |
| テレブース | - | 機械警備 | - |
| 天井高 | 2540 | 床仕様 | スケルトン |
| トイレ | 共用男女別 | 空調 | 個別 |
物件情報
| 物件名 | CIRCLES中洲川端 | ||
|---|---|---|---|
| 所在地 | 福岡県福岡市博多区下川端町10-9 | ||
| 最寄駅 | 中洲川端駅 徒歩2分 / 呉服町駅 徒歩5分 | ||
| 構造 | 鉄骨造 | 規模 | 地上14階建 |
| 竣工 | 2024 | リニューアル | - |