フロア図面1 / 1
区画詳細情報
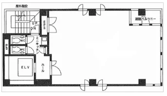
| 階数 | 8 | 内装 | 事務所仕様 |
|---|---|---|---|
| 面積(坪) | 26.74坪 | 面積(㎡) | 88.40㎡ |
| 賃料 | 要問い合わせ | 坪単価 | 要問い合わせ |
| 敷金/保証金 | 12ヶ月 | 礼金 | - |
| 入居可能日 | - | 募集状況 | 空室 |
| 収容人数 | - | 会議室 | - |
| テレブース | - | 機械警備 | - |
| 天井高 | 2400 | 床仕様 | - |
| トイレ | 共用男女別 | 空調 | 個別 |
物件情報
| 物件名 | 茅場町2丁目ビル | ||
|---|---|---|---|
| 所在地 | 東京都中央区日本橋茅場町2-4-5 | ||
| 最寄駅 | 茅場町駅 徒歩2分 / 八丁堀駅 徒歩5分 / 日本橋駅 徒歩6分 | ||
| 構造 | 鉄骨造 | 規模 | 地上9階 |
| 竣工 | 2001 | リニューアル | - |
