











オフィスビル外観1 / 13
KSコモンドビル
7F
| 面積 | 59.7坪(197.5㎡) |
|---|---|
| 賃料 | ¥687,010 |
| 坪単価 | ¥11,500/坪 |
| 敷金 | 6ヶ月 |
| 内装 | 事務所仕様 |
| 入居可能日 | - |
※敷金減額サービスをご利用時は、賃料の 4〜8%(与信審査により変動)の保証料が年間で別途発生します。
物件ページに戻る区画詳細情報
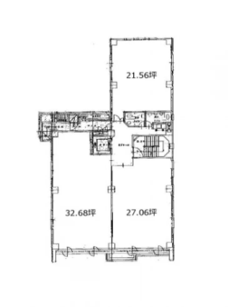
面積・間取り
| 階数 | 7 | 内装 | 事務所仕様 |
|---|---|---|---|
| 面積(坪) | 59.74坪 | 面積(㎡) | 197.49㎡ |
| 天井高 | 2400 | 床仕様 | OAフロア |
| 収容人数 | - | 会議室 | - |
賃料・契約条件
| 賃料 | ¥687,010 | 坪単価 | ¥11,500/坪 |
|---|---|---|---|
| 敷金/保証金 | 6ヶ月 | 礼金 | - |
| 入居可能日 | - | 募集状況 | 空室 |
設備・仕様
| テレブース | - | 機械警備 | - |
|---|---|---|---|
| トイレ | 共用男女別 | 空調 | 個別 |
物件情報
アクセス・所在地
| 物件名 | KSコモンドビル | ||
|---|---|---|---|
| 所在地 | 福岡県福岡市博多区古門戸町2-4 | ||
| 最寄駅 | 中洲川端駅 徒歩3分 / 天神駅 徒歩8分 / 天神南駅 徒歩10分 | ||
建物概要
| 構造 | 鉄骨鉄筋コンクリート造 | 規模 | 地上9階 |
|---|---|---|---|
| 竣工 | 1987年 | リニューアル | - |