募集区画
最終更新日:2026年4月9日
| 階数 | 内装 | 面積 | 賃料 | 共益費 | 敷金 | 入居可能日 | ||
|---|---|---|---|---|---|---|---|---|
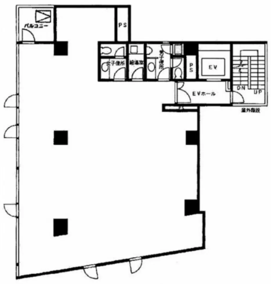
| 詳細を見る | 3階 | 内装事務所仕様 | 49.39坪 (163.27㎡) | 賃料要問合せ | 共益費相談 | 敷金8ヶ月 | 入居可能日2026/07 下旬 |
※敷金減額サービスをご利用時は、賃料の 4〜8%(与信審査により変動)の保証料が年間で別途発生します。
物件紹介
水天宮前駅徒歩5分、茅場町駅徒歩6分の日本橋箱崎町に立地。1992年竣工の地上7階・地下1階建てで新耐震基準に対応しています。2017年に内外装リニューアル済み。石造りのエントランスが高級感を演出します。基準階約49坪で窓面が多く開放的な室内。個別空調・男女別トイレを完備。落ち着いたビジネスエリアで中規模オフィスに最適です。
物件所在地
エリア紹介
人形町・馬喰町・浜町は、江戸の情緒と現代的なオフィス環境が調和した、魅力あふれるビジネスエリアです。人形町には、創業から長く続く老舗の飲食店や個性的な商店が軒を連ねる商店街があり、ランチタイムには多くの人々で賑わいます。馬喰町は、かつて繊維問屋街として発展してきた歴史を持ち、現在もその名残を感じさせる問屋や卸売業者が点在しています。 交通アクセスも非常に優れており、東京メトロ日比谷線、都営浅草線、都営新宿線など複数の路線が利用可能です。これらの路線を利用すれば、都内の主要ビジネスエリアへスムーズにアクセスできます。例えば、東京駅から人形町駅までは約10分程度と、アクセス至便な立地です。 このエリアの特徴として、中小規模のオフィスビルが多く、落ち着いた雰囲気の中で仕事に取り組める点が挙げられます。また、浜町公園をはじめとする緑豊かな環境も魅力の一つです。都会の中心部にありながら、自然を感じられる空間は、働く人々にとって貴重なリフレッシュの場となっています。 賃貸オフィスを探されている方にとって、人形町・馬喰町・浜町エリアは、比較的賃料水準が抑えられている点も魅力です。周辺エリアの貸事務所と比較して、コストパフォーマンスが高い物件を見つけることができるでしょう。近年では、内装工事が済んでおり、すぐに業務を開始できるセットアップオフィスも増えており、オフィス移転を検討されている企業様にもおすすめです。治安も良く、落ち着いた環境で創造的な活動を促進するのに最適な場所です。オフィス移転を機に、このエリアで新たなビジネス展開を始めてみてはいかがでしょうか。












