茅場町駅の小規模オフィスの検索結果
検索結果 222 件 募集中/登録138,648件

深山ビル















八丁堀駅徒歩1分、宝町駅徒歩5分の八丁堀3丁目に位置する地上4階建てオフィスビル。1971年竣工で天井高2,600mm・OAフロアを完備。約15坪のコンパクトな区画は少人数事務所に最適。日比谷線・京葉線が使える八丁堀駅直上の抜群のアクセスが魅力です。
| 階数 | 面積 | 賃料総額 | 坪単価 | 内装 | 敷金 | 入居日 | ||
|---|---|---|---|---|---|---|---|---|
| 2F | 14.3坪(47.3㎡) | 要問合せ | - | 事務所仕様 | 4ヶ月 | 相談 | 詳細を見る | |
| 2F | 14.5坪(47.9㎡) | 要問合せ | - | 事務所仕様 | 4ヶ月 | 相談 | 詳細を見る |
building-exterior第2小高ビル










茅場町駅駅徒歩5分、八丁堀駅駅徒歩6分に位置するの地上7階建てオフィスビル。エレベーター1基を完備。約10.56坪のコンパクトな区画は少人数事務所に最適。
| 階数 | 面積 | 賃料総額 | 坪単価 | 内装 | 敷金 | 入居日 | ||
|---|---|---|---|---|---|---|---|---|
| 2F | 10.6坪(34.9㎡) | 要問合せ | - | 事務所仕様 | 5ヶ月 | 相談 | 詳細を見る |
building-exteriorサンワードビル










水天宮前駅から徒歩3分、茅場町駅徒歩5分の日本橋箱崎町に位置する5階建てオフィスビル。1991年竣工で新耐震基準に適合しています。基準階約13坪のコンパクトなフロアに、個別空調・専用トイレ・ミニキッチンを完備。前面ガラス貼りで採光性が良く、明るいオフィス環境です。少人数の事務所や創業間もないスタートアップの拠点として使いやすい規模感です。
| 階数 | 面積 | 賃料総額 | 坪単価 | 内装 | 敷金 | 入居日 | ||
|---|---|---|---|---|---|---|---|---|
| 1F | 13.6坪(44.9㎡) | 要問合せ | - | 事務所仕様 | 5ヶ月 | 相談 | 詳細を見る |
building-exterior庄司ビル










八丁堀駅徒歩2分、京橋駅徒歩7分の八丁堀2丁目に位置する地上5階建てのコンパクトオフィスビル。約11坪の区画は少人数事務所やSOHOに最適。敷金3ヶ月で入居可能。日比谷線・京葉線が使える八丁堀駅至近です。
| 階数 | 面積 | 賃料総額 | 坪単価 | 内装 | 敷金 | 入居日 | ||
|---|---|---|---|---|---|---|---|---|
| 4F | 11.0坪(36.3㎡) | 要問合せ | - | 事務所仕様 | 3ヶ月 | 相談 | 詳細を見る |
building-exterior紅萌ビル












茅場町駅徒歩1分、日本橋駅徒歩7分の日本橋茅場町1丁目に位置する地上8階・地下1階建てオフィスビル。個別空調・エレベーター1基を完備。約26坪のフロアは少人数オフィスに適した広さ。日比谷線・東西線の2路線が使える茅場町駅直上で、兜町や日本橋方面へのアクセスも良好です。
| 階数 | 面積 | 賃料総額 | 坪単価 | 内装 | 敷金 | 入居日 | ||
|---|---|---|---|---|---|---|---|---|
| 2F | 26.4坪(87.4㎡) | 要問合せ | - | 事務所仕様 | 6ヶ月 | 相談 | 詳細を見る |
building-exterior全国中小企業会館ビル



茅場町駅から徒歩1分、日本橋駅徒歩3分の駅近オフィス。1986年竣工のSRC造で地上8階地下1階建て、基準階約100坪の大型区画。OAフロア・光ファイバー・24時間セキュリティを完備し、有人警備もあり安心。10〜30坪台の分割貸しにも対応し、中小企業のオフィスとして高い利便性を誇ります。
| 階数 | 面積 | 賃料総額 | 坪単価 | 内装 | 敷金 | 入居日 | ||
|---|---|---|---|---|---|---|---|---|
| 2F | 96.6坪(319.3㎡) | 要問合せ | - | 事務所仕様 | 12ヶ月 | 相談 | 詳細を見る |
building-exterior第7アカギビル










八丁堀駅徒歩6分、茅場町駅徒歩7分の新川1丁目に位置する地上7階建てオフィスビル。個別空調・エレベーター1基を完備。約15坪のフロアは少人数事務所に適した広さ。新川エリアの落ち着いた環境です。
| 階数 | 面積 | 賃料総額 | 坪単価 | 内装 | 敷金 | 入居日 | ||
|---|---|---|---|---|---|---|---|---|
| 2F | 14.7坪(48.7㎡) | 要問合せ | - | 事務所仕様 | 6ヶ月 | 相談 | 詳細を見る |
building-exterior日本ビルディング本館




茅場町駅駅徒歩2分、日本橋駅駅徒歩4分に位置するの地上7階 / 地下1階建てオフィスビル。エレベーター2基を完備。基準階約82.61坪の大型フロアが特徴。
| 階数 | 面積 | 賃料総額 | 坪単価 | 内装 | 敷金 | 入居日 | ||
|---|---|---|---|---|---|---|---|---|
| 1F | 82.6坪(273.1㎡) | 要問合せ | - | 事務所仕様 | 12ヶ月 | 相談 | 詳細を見る |
building-exterior石田ビル








茅場町駅駅徒歩7分、八丁堀駅駅徒歩6分に位置するの地上5階建てオフィスビル。約13坪のコンパクトな区画は少人数事務所に最適。敷金2ヶ月で入居可能。
| 階数 | 面積 | 賃料総額 | 坪単価 | 内装 | 敷金 | 入居日 | ||
|---|---|---|---|---|---|---|---|---|
| 3F | 13.0坪(43.0㎡) | 要問合せ | - | 事務所仕様 | 2ヶ月 | 相談 | 詳細を見る |
building-exteriorアライズ第3ビル










茅場町駅徒歩5分、水天宮前駅徒歩5分の日本橋箱崎町4丁目に位置する地上8階建てオフィスビル。エレベーター1基を完備。約26坪のフロアは少人数から中規模オフィスに対応可能。敷金7ヶ月で入居可能。箱崎エリアです。
| 階数 | 面積 | 賃料総額 | 坪単価 | 内装 | 敷金 | 入居日 | ||
|---|---|---|---|---|---|---|---|---|
| 2F | 26.2坪(86.6㎡) | 要問合せ | - | 事務所仕様 | 7ヶ月 | 2026/12 下旬 | 詳細を見る |
building-exterior中野オイスタービル








水天宮前駅徒歩4分、茅場町駅・人形町駅も徒歩6分で3駅利用可能。1988年竣工のRC造5階建てで新耐震基準に適合しています。個別空調・男女別トイレ・OAフロアを備え、57坪のゆとりあるフロア構成。エレベーター1基、機械警備で24時間入退館可能。日本橋蛎殻町の落ち着いたビジネス環境で、中規模オフィスを求める企業に最適。周辺には飲食店も多く、昼食環境にも恵まれています。
| 階数 | 面積 | 賃料総額 | 坪単価 | 内装 | 敷金 | 入居日 | ||
|---|---|---|---|---|---|---|---|---|
| 3F | 57.8坪(191.1㎡) | 要問合せ | - | 事務所仕様 | 10ヶ月 | 相談 | 詳細を見る |
building-exteriorキューアス八丁堀第一ビル(キューアス八丁堀第1ビル)












八丁堀駅から徒歩2分、茅場町駅も徒歩5分の2駅利用可能な立地。1987年竣工のSRC造で地上8階地下1階建て、新耐震基準適合。基準階約78坪でOAフロア・光ファイバー完備、天井高2450mm。機械警備24時間対応で夜間も安心。5駅6路線が徒歩圏内にあり、交通利便性を重視する企業におすすめです。
| 階数 | 面積 | 賃料総額 | 坪単価 | 内装 | 敷金 | 入居日 | ||
|---|---|---|---|---|---|---|---|---|
| 2F | 38.2坪(126.2㎡) | 要問合せ | - | 事務所仕様 | 相談 | 相談 | 詳細を見る |
building-exterior三和商事ビル










茅場町駅徒歩9分、八丁堀駅徒歩10分の新川エリアに立地する地上8階建てオフィスビル。永代通り沿いに面し、2005年にリニューアル済みで清潔感のある外観です。隅田川に面した好眺望が特徴で、3面採光の明るい室内が魅力。40坪の整形フロアに個別空調・男女別トイレを完備。機械警備で24時間利用可能です。落ち着いた環境で集中して働きたい中小企業におすすめの物件。
| 階数 | 面積 | 賃料総額 | 坪単価 | 内装 | 敷金 | 入居日 | ||
|---|---|---|---|---|---|---|---|---|
| 6F | 40.5坪(133.9㎡) | 要問合せ | - | 事務所仕様 | 10ヶ月 | 相談 | 詳細を見る |
floor-plan馬事畜産会館ビル











茅場町駅徒歩5分、八丁堀駅徒歩5分の新川2丁目に位置する地上7階建てオフィスビル。エレベーター2基を完備。約66坪のフロアは中規模オフィスに適した広さ。新川エリアです。
| 階数 | 面積 | 賃料総額 | 坪単価 | 内装 | 敷金 | 入居日 | ||
|---|---|---|---|---|---|---|---|---|
| 3F | 66.3坪(219.1㎡) | 要問合せ | - | 事務所仕様 | 6ヶ月 | 相談 | 詳細を見る | |
| 4F | 29.1坪(96.0㎡) | 要問合せ | - | 事務所仕様 | 6ヶ月 | 相談 | 詳細を見る |
building-exterior八丁堀綜通ビル








八丁堀駅から徒歩1分、1993年竣工のSRC造で地上9階地下1階建て。基準階約253坪の大空間で、3面採光の明るいフロア。天井高2600mm、OAフロア100mm、10ゾーン個別空調と充実仕様。24時間利用可能でEV複数基設置。大規模フロアでワンフロアオフィスを実現したい企業に最適です。
| 階数 | 面積 | 賃料総額 | 坪単価 | 内装 | 敷金 | 入居日 | ||
|---|---|---|---|---|---|---|---|---|
| 4F | 253.3坪(837.2㎡) | 要問合せ | - | 事務所仕様 | 相談 | 相談 | 詳細を見る |
building-exteriorビーエム兜町ビル(BM兜町ビル)










茅場町駅・日本橋駅からともに徒歩3分の2駅利用可能な立地。1975年竣工、基準階82坪で細かい分割区画にも対応。永代通りから一本入った静かな環境で、目の前には公園が広がり採光良好。男女別トイレ・個別空調・機械警備完備。コンビニや飲食店も徒歩圏内に充実し、兜町エリアで落ち着いた執務環境を求める企業におすすめです。
| 階数 | 面積 | 賃料総額 | 坪単価 | 内装 | 敷金 | 入居日 | ||
|---|---|---|---|---|---|---|---|---|
| 6F | 38.8坪(128.3㎡) | 要問合せ | - | 事務所仕様 | 8ヶ月 | 相談 | 詳細を見る |
building-exterior明産新川シティビル










茅場町駅徒歩7分の新川1丁目に位置する地上9階・地下1階建てオフィスビル。OAフロア・個別空調・男女別トイレ・エレベーター2基を完備。約41坪のフロアは中規模オフィスに適した広さ。隅田川にも近い新川エリアで、日比谷線・東西線の2路線が利用可能です。
| 階数 | 面積 | 賃料総額 | 坪単価 | 内装 | 敷金 | 入居日 | ||
|---|---|---|---|---|---|---|---|---|
| B1 | 41.4坪(137.0㎡) | 要問合せ | - | 事務所仕様 | 10ヶ月 | 相談 | 詳細を見る |
building-exterior八重洲カトウビル










茅場町駅徒歩4分、日本橋駅徒歩5分の好アクセス。1987年竣工のSRC造で地上8階建て、新耐震基準適合。個別空調・男女別トイレ・機械警備完備で24時間利用可能。基準階約26坪のコンパクトな区画で、兜町の落ち着いた街並みに位置。少人数オフィスや支店開設に適した物件です。
| 階数 | 面積 | 賃料総額 | 坪単価 | 内装 | 敷金 | 入居日 | ||
|---|---|---|---|---|---|---|---|---|
| 6F | 25.9坪(85.5㎡) | 要問合せ | - | 事務所仕様 | 8ヶ月 | 2026/04/01 | 詳細を見る | |
| 8F | 21.4坪(70.7㎡) | 要問合せ | - | 事務所仕様 | 8ヶ月 | 2026/04/01 | 詳細を見る |
ヤブ原
八丁堀駅徒歩2分、東京駅からも徒歩圏内の地上10階・地下1階建てビル。基準階約169坪の大型フロアが特徴で、まとまった面積を確保できます。八丁堀エリアは再開発の進む注目の立地で、複数路線が利用可能。周辺にはコンビニや飲食店が充実。大規模なフロアを求める成長企業の本社機能に適した物件。
| 階数 | 面積 | 賃料総額 | 坪単価 | 内装 | 敷金 | 入居日 | ||
|---|---|---|---|---|---|---|---|---|
| 3F | 168.9坪(558.5㎡) | 要問合せ | - | 事務所仕様 | 相談 | 2027/03/01 | 詳細を見る | |
| 4F | 168.9坪(558.5㎡) | 要問合せ | - | 事務所仕様 | 相談 | 2027/03/01 | 詳細を見る | |
| 5F | 168.9坪(558.5㎡) | 要問合せ | - | 事務所仕様 | 相談 | 2027/03/01 | 詳細を見る | |
| 6F | 168.9坪(558.5㎡) | 要問合せ | - | 事務所仕様 | 相談 | 2027/03/01 | 詳細を見る | |
| 7F | 168.9坪(558.5㎡) | 要問合せ | - | 事務所仕様 | 相談 | 2027/03/01 | 詳細を見る | |
| 8F | 168.9坪(558.5㎡) | 要問合せ | - | 事務所仕様 | 相談 | 2027/03/01 | 詳細を見る | |
| 9F | 168.9坪(558.5㎡) | 要問合せ | - | 事務所仕様 | 相談 | 2027/03/01 | 詳細を見る |
building-exterior共同ビル(兜町)
















水天宮前駅徒歩4分、茅場町駅徒歩5分の2駅アクセス。兜町・蛎殻町エリアに立つ地上7階建てのオフィスビルです。白いパネル外装が特徴で、個別空調・男女別トイレを完備。無柱の室内はデスク配置の自由度が高い設計。日本橋の金融街に隣接し、周辺には飲食店やコンビニも点在。士業やコンサルなど信頼感を重視する業種に好適。
| 階数 | 面積 | 賃料総額 | 坪単価 | 内装 | 敷金 | 入居日 | ||
|---|---|---|---|---|---|---|---|---|
| 4F | 22.1坪(73.2㎡) | 要問合せ | - | 事務所仕様 | 6ヶ月 | 相談 | 詳細を見る |
building-exterior八丁堀千島ビル










八丁堀駅から徒歩1分、新大橋通り沿いに立つ1990年竣工のSRC造オフィス。地上10階建てでEV2基、基準階約55坪の使いやすい区画構成。男女別トイレ・個別空調・OAフロアを完備し、新耐震基準適合で安心。視認性が高く、来客対応にも優れた立地です。飲食店も豊富なエリアです。
| 階数 | 面積 | 賃料総額 | 坪単価 | 内装 | 敷金 | 入居日 | ||
|---|---|---|---|---|---|---|---|---|
| 2F | 55.0坪(181.7㎡) | 要問合せ | - | 事務所仕様 | 10ヶ月 | 2026/04/01 | 詳細を見る |
building-exterior京橋YAHATAビル










都営浅草線宝町駅から徒歩3分、八丁堀駅も徒歩4分と2駅利用可能。1981年竣工の地上8階建てで、基準階約46坪のオフィスビルです。レンガ調の外観と御影石のエントランスが上品な佇まい。個別空調・機械警備を完備し、24時間使用可能。周辺にはコンビニや郵便局があり、東京駅も徒歩圏内。京橋・八丁堀エリアで格調あるオフィスを求める企業におすすめ。
| 階数 | 面積 | 賃料総額 | 坪単価 | 内装 | 敷金 | 入居日 | ||
|---|---|---|---|---|---|---|---|---|
| 5F | 35.0坪(115.7㎡) | 要問合せ | - | 事務所仕様 | 3ヶ月 | 相談 | 詳細を見る |
building-exteriorスズコービル





東京メトロ茅場町駅から徒歩2分、日本橋駅も利用可能な兜町・茅場町エリアの賃貸オフィス。1972年竣工の4階建てビルで、基準階約21坪のコンパクトな区画。各フロア1テナント構成で、専用トイレ・給湯スペースを室内に備えたプライベート感のある造りです。LED照明で明るい室内環境。金融街ならではの落ち着いた雰囲気の中で業務に集中できます。
| 階数 | 面積 | 賃料総額 | 坪単価 | 内装 | 敷金 | 入居日 | ||
|---|---|---|---|---|---|---|---|---|
| 2F | 22.0坪(72.6㎡) | 要問合せ | - | 事務所仕様 | 6ヶ月 | 2026/04 中旬 | 詳細を見る |
building-exteriorハニー箱崎ビル




茅場町駅徒歩4分、水天宮前駅徒歩6分の日本橋箱崎町1丁目に位置する地上7階・地下1階建てオフィスビル。エレベーター1基を完備。約11坪のコンパクトな区画は少人数事務所やSOHOに最適。日比谷線・東西線が使える茅場町エリアです。
| 階数 | 面積 | 賃料総額 | 坪単価 | 内装 | 敷金 | 入居日 | ||
|---|---|---|---|---|---|---|---|---|
| 3F | 11.4坪(37.5㎡) | 要問合せ | - | 事務所仕様 | 6ヶ月 | 相談 | 詳細を見る |
building-exteriorリガーレ日本橋人形町ANNEX(B棟)





水天宮前駅駅徒歩2分、人形町駅駅徒歩4分に位置するの地上3階 / 地下1階建てオフィスビル。約26.8坪のフロアは少人数から中規模オフィスに対応可能。敷金3ヶ月で入居可能。
| 階数 | 面積 | 賃料総額 | 坪単価 | 内装 | 敷金 | 入居日 | ||
|---|---|---|---|---|---|---|---|---|
| 2F | 26.8坪(88.6㎡) | 要問合せ | - | 事務所仕様 | 3ヶ月 | 2026/03 下旬 | 詳細を見る |
building-exterior箱崎NSOビル







水天宮前駅徒歩3分、茅場町駅徒歩8分の日本橋箱崎町に位置する地上7階建てオフィスビル。エレベーター1基を完備。約30坪のフロアは少人数から中規模オフィスに対応可能。半蔵門線が使える箱崎エリアです。
| 階数 | 面積 | 賃料総額 | 坪単価 | 内装 | 敷金 | 入居日 | ||
|---|---|---|---|---|---|---|---|---|
| 3F | 30.1坪(99.3㎡) | 要問合せ | - | 事務所仕様 | 6ヶ月 | 相談 | 詳細を見る |
building-exterior横川ビル








茅場町駅徒歩3分、日本橋駅徒歩8分の新川1丁目に立つ地上11階建てオフィスビル。OAフロア・個別空調・男女別トイレ・エレベーター1基を完備しています。約36坪のフロアは中小規模オフィスに適したサイズ。隅田川に近い新川エリアは落ち着いた環境で、茅場町駅から日比谷線・東西線の2路線を利用できます。
| 階数 | 面積 | 賃料総額 | 坪単価 | 内装 | 敷金 | 入居日 | ||
|---|---|---|---|---|---|---|---|---|
| 2F | 36.2坪(119.7㎡) | 要問合せ | - | 事務所仕様 | 10ヶ月 | 2026/05 下旬 | 詳細を見る |
building-exterior森友第1ビル(森友第一ビル)








人形町駅徒歩3分、水天宮前駅徒歩5分の日本橋小網町に位置する地上6階建てオフィスビル。個別空調・男女別トイレ・エレベーター1基を完備。約53坪のフロアは中規模オフィスに適した広さ。人形町エリアの落ち着いたビジネス環境です。
| 階数 | 面積 | 賃料総額 | 坪単価 | 内装 | 敷金 | 入居日 | ||
|---|---|---|---|---|---|---|---|---|
| 5F | 52.9坪(174.9㎡) | 要問合せ | - | 事務所仕様 | 6ヶ月 | 相談 | 詳細を見る |
building-exteriorKYOE PLAZA KAYABACHOⅡ










茅場町駅徒歩1分、永代通りと新大橋通りの交差点至近に立地。旧称・NOVEL WORK日本橋茅場町で、2025年にエントランス・共用部をリニューアル済み。地上11階・地下1階建てで基準階約71坪の使いやすいフロア構成。1階に三菱UFJ銀行ATMが入居し利便性も高い環境。4駅6路線が利用可能な交通至便の立地で、幅広い業種の拠点に対応できます。
| 階数 | 面積 | 賃料総額 | 坪単価 | 内装 | 敷金 | 入居日 | ||
|---|---|---|---|---|---|---|---|---|
| 9階・10階 | 71.7坪(237.0㎡) | 要問合せ | - | 事務所仕様 | 相談 | 相談 | 詳細を見る |
building-exterior今井ビル










東京メトロ水天宮前駅から徒歩3分、人形町駅も徒歩7分の日本橋蛎殻町エリア。1970年竣工で2014年にリニューアル済みの地上6階建てビルです。1フロア約10坪のコンパクトな区画構成。個別空調・エレベーター完備で、オートロックと防犯カメラによるセキュリティも充実。周辺はマンションや中小オフィスが並ぶ落ち着いた住環境。2〜3名の少人数オフィスやSOHO利用に最適。
| 階数 | 面積 | 賃料総額 | 坪単価 | 内装 | 敷金 | 入居日 | ||
|---|---|---|---|---|---|---|---|---|
| 1F | 10.2坪(33.8㎡) | 要問合せ | - | 事務所仕様 | 4ヶ月 | 相談 | 詳細を見る |
building-exteriorASKビル












茅場町駅徒歩2分、新大橋通りの角地に建つ地上10階建てのオフィスビル。1990年竣工で新耐震基準に対応しています。シルバーパネルの外装と丸みを帯びた角が印象的な外観。基準階約57坪で天井高2,500mm、個別空調・男女別トイレ・OAフロアを完備。ガラス張りのエントランスも開放的です。COREDO日本橋や高島屋も徒歩圏内の好立地です。
| 階数 | 面積 | 賃料総額 | 坪単価 | 内装 | 敷金 | 入居日 | ||
|---|---|---|---|---|---|---|---|---|
| 3F | 57.7坪(190.7㎡) | 要問合せ | - | 事務所仕様 | 10ヶ月 | 相談 | 詳細を見る |
building-exterior新井ビル










茅場町駅駅徒歩1分、八丁堀駅駅徒歩7分に位置するの地上7階建てオフィスビル。エレベーター1基を完備。約10.62坪のコンパクトな区画は少人数事務所に最適。
| 階数 | 面積 | 賃料総額 | 坪単価 | 内装 | 敷金 | 入居日 | ||
|---|---|---|---|---|---|---|---|---|
| 4F | 10.6坪(35.1㎡) | 要問合せ | - | 事務所仕様 | 7ヶ月 | 相談 | 詳細を見る |
building-exteriorカントー第2別館(カントー第二別館)










茅場町駅駅徒歩5分、水天宮前駅駅徒歩5分に位置するの地上7階建てオフィスビル。エレベーター1基を完備。約65.42坪のフロアは中規模オフィスに適した広さ。
| 階数 | 面積 | 賃料総額 | 坪単価 | 内装 | 敷金 | 入居日 | ||
|---|---|---|---|---|---|---|---|---|
| 7F | 65.4坪(216.3㎡) | 要問合せ | - | 事務所仕様 | 5ヶ月 | 2026/04 上旬 | 詳細を見る |
building-exteriorヤサカ八丁堀ビル








八丁堀駅から徒歩2分、茅場町駅も利用可能な好アクセス。1993年竣工、2014年にエントランスリニューアル済み。OA床・光ファイバー対応でIT環境も万全。男女別トイレ・個別空調・機械警備を完備し、24時間利用可能。コンビニや飲食店、銀行も至近で、利便性重視の少人数オフィスに最適です。
| 階数 | 面積 | 賃料総額 | 坪単価 | 内装 | 敷金 | 入居日 | ||
|---|---|---|---|---|---|---|---|---|
| 8F | 16.8坪(55.5㎡) | 要問合せ | - | 事務所仕様 | 7ヶ月 | 相談 | 詳細を見る |
building-exterior日本橋白馬ビル












人形町駅駅徒歩5分、三越前駅駅徒歩5分に位置するの地上9階建てオフィスビル。エレベーター1基を完備。約42坪のフロアは中規模オフィスに適した広さ。
| 階数 | 面積 | 賃料総額 | 坪単価 | 内装 | 敷金 | 入居日 | ||
|---|---|---|---|---|---|---|---|---|
| 1F | 42.0坪(138.8㎡) | 要問合せ | - | 事務所仕様 | 10ヶ月 | 2026/06/01 | 詳細を見る |
building-exterior東益ビル(トーマスビル)










日本橋駅駅徒歩14分、茅場町駅駅徒歩6分に位置するの地上8階建てオフィスビル。エレベーター1基を完備。約73.66坪のフロアは中規模オフィスに適した広さ。
| 階数 | 面積 | 賃料総額 | 坪単価 | 内装 | 敷金 | 入居日 | ||
|---|---|---|---|---|---|---|---|---|
| 5F | 73.7坪(243.5㎡) | 要問合せ | - | 事務所仕様 | 6ヶ月 | 2026/04/01 | 詳細を見る |
building-exterior堀川ビル












八丁堀駅徒歩2分、新富町駅徒歩7分の湊1丁目に位置する地上7階建てオフィスビル。個別空調・男女別トイレ・エレベーター1基を完備。約47坪のフロアは中規模オフィスに適した広さ。隅田川にも近い湊エリアは再開発が進む注目の立地で、日比谷線・京葉線の2路線が利用可能です。
| 階数 | 面積 | 賃料総額 | 坪単価 | 内装 | 敷金 | 入居日 | ||
|---|---|---|---|---|---|---|---|---|
| 5F | 46.5坪(153.7㎡) | 要問合せ | - | 事務所仕様 | 6ヶ月 | 相談 | 詳細を見る |
building-exterior日本橋蛎殻町東急ビル












水天宮前駅徒歩1分、人形町駅徒歩4分の日本橋蛎殻町に位置する地上10階・地下1階建てオフィスビル。個別空調・男女別トイレ・エレベーター2基を完備。約78坪の大型フロアは中〜大規模オフィスに最適。半蔵門線の水天宮前駅直上で、日本橋人形町エリアのビジネス利便性と下町の飲食環境を兼ね備えた物件です。
| 階数 | 面積 | 賃料総額 | 坪単価 | 内装 | 敷金 | 入居日 | ||
|---|---|---|---|---|---|---|---|---|
| 2F | 77.9坪(257.6㎡) | 要問合せ | - | 事務所仕様 | 6ヶ月 | 相談 | 詳細を見る |
building-exterior田口ビル








茅場町駅徒歩5分、水天宮前駅徒歩3分の日本橋蛎殻町2丁目に位置する地上6階建てオフィスビル。個別空調・男女別トイレ・エレベーター1基を完備。約24坪のフロアは少人数オフィスに適した広さ。半蔵門線と日比谷線の2路線が利用可能です。
| 階数 | 面積 | 賃料総額 | 坪単価 | 内装 | 敷金 | 入居日 | ||
|---|---|---|---|---|---|---|---|---|
| 3F | 24.4坪(80.6㎡) | 要問合せ | - | 事務所仕様 | 6ヶ月 | 相談 | 詳細を見る |
building-exterior7山京ビル






水天宮前駅から徒歩3分、茅場町駅徒歩6分の2駅利用可能な立地。1984年竣工の地上9階建てで新耐震基準に対応しています。基準階約37坪のL字型間取りで、個別空調・男女別トイレ・給湯スペースを室内に完備。機械警備システムも導入済みです。箱崎エリアは落ち着いたオフィス街。IT企業やバックオフィス拠点に適した物件です。
| 階数 | 面積 | 賃料総額 | 坪単価 | 内装 | 敷金 | 入居日 | ||
|---|---|---|---|---|---|---|---|---|
| 2F | 37.5坪(124.0㎡) | 要問合せ | - | 事務所仕様 | 5ヶ月 | 相談 | 詳細を見る |
building-exterior森田ビル




八丁堀駅駅徒歩4分、茅場町駅駅徒歩5分に位置するの地上4階 / 地下1階建てオフィスビル。約16.02坪のフロアは少人数から中規模オフィスに対応可能。
| 階数 | 面積 | 賃料総額 | 坪単価 | 内装 | 敷金 | 入居日 | ||
|---|---|---|---|---|---|---|---|---|
| 3F | 16.0坪(53.0㎡) | 要問合せ | - | 事務所仕様 | 4ヶ月 | 相談 | 詳細を見る |
building-exteriorナックスビル










茅場町駅から徒歩2分、新川エリアに立地する9階建てオフィスビル。1990年竣工で新耐震基準適合。ベージュ色のタイル張り外観がスタイリッシュな印象です。基準階約29坪、個別空調・男女別トイレ・オートロックを完備し、24時間利用可能。室内にトイレと給湯スペースを配した使い勝手の良い設計。日本橋・八丁堀も徒歩圏で、複数路線を活用したいチームに最適です。
| 階数 | 面積 | 賃料総額 | 坪単価 | 内装 | 敷金 | 入居日 | ||
|---|---|---|---|---|---|---|---|---|
| 3F | 30.0坪(99.2㎡) | 要問合せ | - | 事務所仕様 | 6ヶ月 | 2026/04 下旬 | 詳細を見る | |
| 9F | 29.9坪(99.0㎡) | 要問合せ | - | 事務所仕様 | 6ヶ月 | 2026/05 上旬 | 詳細を見る |
building-exterior松木ビル








日本橋駅駅徒歩4分、茅場町駅駅徒歩4分に位置するの地上7階 / 地下1階建てオフィスビル。エレベーター1基を完備。約26.24坪のフロアは少人数から中規模オフィスに対応可能。
| 階数 | 面積 | 賃料総額 | 坪単価 | 内装 | 敷金 | 入居日 | ||
|---|---|---|---|---|---|---|---|---|
| 4F | 26.2坪(86.7㎡) | 要問合せ | - | 事務所仕様 | 6ヶ月 | 相談 | 詳細を見る |
floor-planスターコート日本橋








水天宮前駅徒歩4分、茅場町駅徒歩5分の日本橋小網町に位置する地上9階建てマンションタイプオフィス。個別空調・エレベーター1基を完備。コンパクトな区画はフリーランスや少人数事務所に最適。半蔵門線と日比谷線の2路線が利用可能です。
| 階数 | 面積 | 賃料総額 | 坪単価 | 内装 | 敷金 | 入居日 | ||
|---|---|---|---|---|---|---|---|---|
| 5F | 7.5坪(24.7㎡) | 要問合せ | - | 事務所仕様 | 相談 | 相談 | 詳細を見る | |
| 6F | 7.2坪(23.7㎡) | 要問合せ | - | 事務所仕様 | 相談 | 相談 | 詳細を見る |
building-exteriorTRUST VALUE 日本橋小網町ビル












東京メトロ日比谷線・人形町駅から徒歩5分。茅場町駅・日本橋駅も徒歩圏で3駅利用可能な立地です。1992年竣工の地上7階建てで新耐震基準適合。基準階約28坪のワンフロアワンテナント構成で、個別空調・男女別トイレ・24時間利用可能。日本橋小網町は小網神社が近く、落ち着いた下町情緒あるオフィス街。少人数〜中規模チームの拠点として使いやすい日本橋エリアの堅実な物件です。
| 階数 | 面積 | 賃料総額 | 坪単価 | 内装 | 敷金 | 入居日 | ||
|---|---|---|---|---|---|---|---|---|
| 6F | 28.1坪(92.7㎡) | 要問合せ | - | 事務所仕様 | 6ヶ月 | 相談 | 詳細を見る |
building-exteriorオガタビル










JR京葉線・東京メトロ日比谷線「八丁堀」駅が最寄りの中央区新川2丁目に立地する地上5階建てのオフィスビル。新川エリアは隅田川沿いの落ち着いた街並みが特徴で、大手企業のオフィスも点在するビジネスエリア。東京駅・茅場町駅へのアクセスも良好で、都心主要拠点への移動に便利。永代橋や隅田川テラスなど水辺の環境も近く、リフレッシュしやすい周辺環境が魅力。少人数規模の事務所向け。
| 階数 | 面積 | 賃料総額 | 坪単価 | 内装 | 敷金 | 入居日 | ||
|---|---|---|---|---|---|---|---|---|
| 4F | 11.1坪(36.7㎡) | 要問合せ | - | 事務所仕様 | 2ヶ月 | 2026/05 中旬 | 詳細を見る |
building-exteriorACN日本橋PLACE
















日本橋駅徒歩2分、2019年竣工の築浅オフィスビル。地上10階建てで基準階約20坪のコンパクトなフロア構成です。個別空調・OAフロアを完備しています。日本橋二丁目の超高層ビルが立ち並ぶエリアに位置し、ビジネスインフラが充実。周辺には飲食店も多くランチ環境も良好です。日本橋のブランドアドレスで少人数オフィスを構えたい企業におすすめです。
| 階数 | 面積 | 賃料総額 | 坪単価 | 内装 | 敷金 | 入居日 | ||
|---|---|---|---|---|---|---|---|---|
| 3F | 19.9坪(65.8㎡) | 要問合せ | - | セットアップオフィス | 0円 | 相談 | 詳細を見る | |
| 6F | 19.9坪(65.8㎡) | 要問合せ | - | セットアップオフィス | 0円 | 相談 | 詳細を見る | |
| 9F | 19.9坪(65.8㎡) | 要問合せ | - | セットアップオフィス | 0円 | 2026/04 上旬 | 詳細を見る |
building-exteriorザ・パークレックス新川ビル












八丁堀駅徒歩5分、茅場町駅徒歩8分の新川2丁目に位置する地上7階建てオフィスビル。男女別トイレ・エレベーター1基を完備。約69坪のフロアは中規模オフィスに適した広さ。パークレックスシリーズの新川エリア物件です。
| 階数 | 面積 | 賃料総額 | 坪単価 | 内装 | 敷金 | 入居日 | ||
|---|---|---|---|---|---|---|---|---|
| 6F | 58.6坪(193.6㎡) | 要問合せ | - | 事務所仕様 | 8ヶ月 | 相談 | 詳細を見る | |
| 7F | 58.6坪(193.6㎡) | 要問合せ | - | 事務所仕様 | 8ヶ月 | 相談 | 詳細を見る | |
| 7F | 69.1坪(228.6㎡) | 要問合せ | - | セットアップオフィス | 8ヶ月 | 相談 | 詳細を見る |
building-exterior藤和八丁堀ビル










八丁堀駅駅徒歩2分、八丁堀駅駅徒歩3分に位置するの地上8階 / 地下1階建てオフィスビル。エレベーター2基を完備。約71.35坪のフロアは中規模オフィスに適した広さ。
| 階数 | 面積 | 賃料総額 | 坪単価 | 内装 | 敷金 | 入居日 | ||
|---|---|---|---|---|---|---|---|---|
| 2F | 71.3坪(235.9㎡) | 要問合せ | - | 事務所仕様 | 12ヶ月 | 2026/05 中旬 | 詳細を見る |
building-exterior白鹿茅場町ビル










茅場町駅徒歩5分、八丁堀駅徒歩8分の新川1丁目に位置する地上9階・地下2階建てオフィスビル。OAフロア・個別空調・男女別トイレ・エレベーター1基を完備。約65坪のフロアは中規模オフィスに適した広さ。新川エリアの落ち着いた環境です。
| 階数 | 面積 | 賃料総額 | 坪単価 | 内装 | 敷金 | 入居日 | ||
|---|---|---|---|---|---|---|---|---|
| 4F | 65.0坪(214.9㎡) | 要問合せ | - | 事務所仕様 | 12ヶ月 | 2026/08 上旬 | 詳細を見る | |
| 7F | 65.0坪(214.9㎡) | 要問合せ | - | 事務所仕様 | 12ヶ月 | 2026/08 上旬 | 詳細を見る |
building-exterior桜井ビル





八丁堀駅徒歩7分、茅場町駅徒歩10分の新川2丁目に位置する地上7階・地下1階建てオフィスビル。個別空調・エレベーター1基を完備。約24坪のフロアは少人数オフィスに適した広さ。敷金1ヶ月で入居可能。隅田川沿いの新川エリアです。
| 階数 | 面積 | 賃料総額 | 坪単価 | 内装 | 敷金 | 入居日 | ||
|---|---|---|---|---|---|---|---|---|
| 4F | 24.1坪(79.8㎡) | 要問合せ | - | 事務所仕様 | 1ヶ月 | 相談 | 詳細を見る |
building-exterior第5山京ビル












茅場町駅駅徒歩5分、八丁堀駅駅徒歩5分に位置するの地上10階建てオフィスビル。エレベーター1基を完備。約21.25坪のフロアは少人数から中規模オフィスに対応可能。敷金3ヶ月で入居可能。
| 階数 | 面積 | 賃料総額 | 坪単価 | 内装 | 敷金 | 入居日 | ||
|---|---|---|---|---|---|---|---|---|
| 10F | 21.3坪(70.3㎡) | 要問合せ | - | 事務所仕様 | 3ヶ月 | 相談 | 詳細を見る |
building-exteriorオフィスヴェラ日本橋箱崎(ヴェラハイツ日本橋箱崎)





水天宮前駅徒歩2分、茅場町駅徒歩8分の日本橋箱崎町に位置する地上12階建ての大型オフィスビル。個別空調・男女別トイレ・エレベーター1基を完備。約111坪の大型フロアはワンフロア利用に最適。半蔵門線の水天宮前駅至近で、箱崎ジャンクションにも近い交通至便のエリアです。
| 階数 | 面積 | 賃料総額 | 坪単価 | 内装 | 敷金 | 入居日 | ||
|---|---|---|---|---|---|---|---|---|
| 2F | 110.7坪(365.8㎡) | 要問合せ | - | 事務所仕様 | 6ヶ月 | 相談 | 詳細を見る |
building-exterior製粉会館ビル










茅場町駅駅徒歩4分、京橋駅駅徒歩12分に位置するの地上9階 / 地下3階建てオフィスビル。エレベーター3基を完備。基準階約247.8坪の超大型フロアが特徴。
| 階数 | 面積 | 賃料総額 | 坪単価 | 内装 | 敷金 | 入居日 | ||
|---|---|---|---|---|---|---|---|---|
| 4F | 247.8坪(819.2㎡) | 要問合せ | - | 事務所仕様 | 相談 | 相談 | 詳細を見る |
building-exteriorACN日本橋ビル










水天宮前駅徒歩5分、茅場町駅徒歩6分の日本橋箱崎町に立地。1992年竣工の地上7階・地下1階建てで新耐震基準に対応しています。2017年に内外装リニューアル済み。石造りのエントランスが高級感を演出します。基準階約49坪で窓面が多く開放的な室内。個別空調・男女別トイレを完備。落ち着いたビジネスエリアで中規模オフィスに最適です。
| 階数 | 面積 | 賃料総額 | 坪単価 | 内装 | 敷金 | 入居日 | ||
|---|---|---|---|---|---|---|---|---|
| 3F | 49.4坪(163.3㎡) | 要問合せ | - | 事務所仕様 | 相談 | 2026/07 下旬 | 詳細を見る |
building-exterior近仁ビル(キンニビル)












水天宮前駅徒歩5分、茅場町駅徒歩5分の日本橋小網町に位置する地上7階建てオフィスビル。OAフロア・個別空調・男女別トイレ・エレベーター1基を完備。約48坪のフロアは中規模オフィスに適した広さ。日本橋の中心に近い落ち着いたエリアです。
| 階数 | 面積 | 賃料総額 | 坪単価 | 内装 | 敷金 | 入居日 | ||
|---|---|---|---|---|---|---|---|---|
| 5F | 48.0坪(158.8㎡) | 要問合せ | - | 事務所仕様 | 8ヶ月 | 相談 | 詳細を見る |
building-exterior八重洲長岡ビル










八丁堀駅徒歩3分、茅場町駅徒歩5分の2駅利用可能な立地。1979年築の地上8階建てで、ワンフロア約25坪のコンパクトなオフィスビルです。個別空調完備で、貸室外に水回りを配置し室内を有効活用できる設計。機械警備導入済みでセキュリティも安心。新川エリアの落ち着いた環境で、少人数チームの拠点に適した物件。
| 階数 | 面積 | 賃料総額 | 坪単価 | 内装 | 敷金 | 入居日 | ||
|---|---|---|---|---|---|---|---|---|
| 2F | 21.8坪(72.2㎡) | 要問合せ | - | 事務所仕様 | 10ヶ月 | 2026/06 上旬 | 詳細を見る | |
| 6F | 21.8坪(72.2㎡) | 要問合せ | - | 事務所仕様 | 10ヶ月 | 2026/05 上旬 | 詳細を見る |
building-exterior茅場町ファーストビル












茅場町駅駅徒歩5分、八丁堀駅駅徒歩8分に位置するの地上12階建てオフィスビル。エレベーター6基を完備。基準階約463.95坪の超大型フロアが特徴。
| 階数 | 面積 | 賃料総額 | 坪単価 | 内装 | 敷金 | 入居日 | ||
|---|---|---|---|---|---|---|---|---|
| 2F | 463.9坪(1533.7㎡) | 要問合せ | - | 事務所仕様 | 12ヶ月 | 2026/04/01 | 詳細を見る |
building-exterior茅場町駅前ビル










茅場町駅駅徒歩1分、八丁堀駅駅徒歩4分に位置するの地上9階建てオフィスビル。エレベーター1基を完備。約31.12坪のフロアは少人数から中規模オフィスに対応可能。
| 階数 | 面積 | 賃料総額 | 坪単価 | 内装 | 敷金 | 入居日 | ||
|---|---|---|---|---|---|---|---|---|
| 7F | 31.1坪(102.9㎡) | 要問合せ | - | 事務所仕様 | 5ヶ月 | 2026/04/25 | 詳細を見る |
building-exteriorYHビル










八丁堀駅徒歩5分、茅場町駅徒歩6分の新川エリアに位置する6階建てオフィスビル。1991年竣工で新耐震基準に適合しています。個別空調を備え、7坪台の小規模区画はスモールオフィスに最適。機械警備で24時間入退館が可能です。東京駅まで電車で約2分と都心主要エリアへのアクセスが良好。周辺には飲食店やコンビニ、金融機関が揃い、少人数での創業拠点に適しています。
| 階数 | 面積 | 賃料総額 | 坪単価 | 内装 | 敷金 | 入居日 | ||
|---|---|---|---|---|---|---|---|---|
| 1F | 7.4坪(24.6㎡) | 要問合せ | - | 事務所仕様 | 3ヶ月 | 相談 | 詳細を見る | |
| 4F | 19.9坪(65.8㎡) | 要問合せ | - | 事務所仕様 | 3ヶ月 | 相談 | 詳細を見る |
building-exteriorグリンヒルビル










茅場町駅から徒歩1分、日本橋駅からも徒歩3分の好アクセス。1965年竣工ながら2005年に外装、2011年にエントランスをリニューアル済みで清潔感があります。SRC造7階建て、基準階64坪の使いやすいフロア。個別空調・男女別トイレ・機械警備を完備。永代通りから一歩入った落ち着いた立地で、隣接するコンビニや周辺の飲食店も充実した便利なオフィスビルです。
| 階数 | 面積 | 賃料総額 | 坪単価 | 内装 | 敷金 | 入居日 | ||
|---|---|---|---|---|---|---|---|---|
| 2F | 64.9坪(214.5㎡) | 要問合せ | - | 事務所仕様 | 10ヶ月 | 相談 | 詳細を見る |
building-exteriorJR八丁堀ビル





JR京葉線・東京メトロ日比谷線の八丁堀駅直上に位置する駅直結ビル。1992年竣工のJR東日本グループ所有物件です。京葉線で東京駅まで1駅2分という抜群のアクセス。基準階約41坪の整形フロアで、個別空調・光ファイバー導入済み。エレベーターホールやトイレにも外光が入る明るい設計。都心営業拠点を効率的に構えたい企業におすすめ。
| 階数 | 面積 | 賃料総額 | 坪単価 | 内装 | 敷金 | 入居日 | ||
|---|---|---|---|---|---|---|---|---|
| 3F | 41.5坪(137.2㎡) | 要問合せ | - | 事務所仕様 | 12ヶ月 | 2026/06/01 | 詳細を見る |
building-exteriorHF日本橋兜町ビルディング








茅場町駅徒歩4分、日本橋駅も徒歩圏の好立地。旧称・兜町ユニ・スクエアとして知られる1993年竣工のSRC造オフィスビルです。4面接道による採光と開放感が魅力。基準階約107坪の整形無柱空間で、個別空調・OAフロア完備。平面式・機械式あわせて31台収容の駐車場を併設しています。東京駅徒歩圏の金融街で、証券・金融系企業の拠点に最適な環境。
| 階数 | 面積 | 賃料総額 | 坪単価 | 内装 | 敷金 | 入居日 | ||
|---|---|---|---|---|---|---|---|---|
| 8F | 107.6坪(355.7㎡) | 要問合せ | - | 事務所仕様 | 12ヶ月 | 相談 | 詳細を見る |
building-exteriorゼロワンビル








八丁堀駅から徒歩4分、茅場町駅徒歩6分の2駅利用可能な新川エリアのオフィスビル。1990年竣工のSRC造8階建てで新耐震基準適合。基準階16坪台、個別空調・OAフロアを完備した機能的な事務所仕様です。エントランスにはセキュリティ管理システムを導入。1階では貸会議室も運営されており、来客対応にも便利。少人数オフィスに適したコンパクトな一棟です。
| 階数 | 面積 | 賃料総額 | 坪単価 | 内装 | 敷金 | 入居日 | ||
|---|---|---|---|---|---|---|---|---|
| 2F | 16.5坪(54.6㎡) | 要問合せ | - | 事務所仕様 | 5ヶ月 | 2026/03 下旬 | 詳細を見る |
building-exteriorアライズ第2ビル





水天宮前駅駅徒歩5分、茅場町駅駅徒歩5分に位置するの地上7階建てオフィスビル。エレベーター1基を完備。約52.8坪のフロアは中規模オフィスに適した広さ。
| 階数 | 面積 | 賃料総額 | 坪単価 | 内装 | 敷金 | 入居日 | ||
|---|---|---|---|---|---|---|---|---|
| 3F | 52.8坪(174.5㎡) | 要問合せ | - | 事務所仕様 | 7ヶ月 | 相談 | 詳細を見る |
building-exteriorエンパイヤビル








八丁堀駅徒歩1分、八重洲通りと新大橋通りの交差点に面する2017年竣工の大規模オフィスビル。東京建物との共同開発による地上11階建て。天井高2,800mm、基準階323坪超の広大なフロアに25ゾーンの個別空調を完備。全室LED照明、床荷重500kg/m2のハイスペック仕様です。屋上テラスや最大35台の駐車場も備え、本社移転先として申し分のないグレード感です。
| 階数 | 面積 | 賃料総額 | 坪単価 | 内装 | 敷金 | 入居日 | ||
|---|---|---|---|---|---|---|---|---|
| 7,8,9階セット | 970.8坪(3209.4㎡) | 要問合せ | - | 事務所仕様 | 12ヶ月 | 2027/10/01 | 詳細を見る | |
| 7F | 323.6坪(1069.8㎡) | 要問合せ | - | 事務所仕様 | 12ヶ月 | 2027-10-01T00:00:00.000Z | 詳細を見る | |
| 8F | 323.6坪(1069.8㎡) | 要問合せ | - | 事務所仕様 | 12ヶ月 | 2027-10-01T00:00:00.000Z | 詳細を見る | |
| 9F | 323.6坪(1069.8㎡) | 要問合せ | - | 事務所仕様 | 12ヶ月 | 2027-10-01T00:00:00.000Z | 詳細を見る |
building-exteriorダイアビル





東京メトロ半蔵門線水天宮前駅至近、中央区日本橋蛎殻町1丁目に立地する地上5階建てのオフィスビル。蛎殻町は日本橋エリアの東側に位置し、人形町駅も徒歩利用可能な複数路線アクセスが強み。周辺は老舗企業や金融機関が集まる落ち着いたビジネス街で、甘酒横丁をはじめ飲食店も充実。コンパクトな規模を活かし、少人数オフィスや支店・営業所の拠点として日本橋アドレスを確保したい企業に好適。
| 階数 | 面積 | 賃料総額 | 坪単価 | 内装 | 敷金 | 入居日 | ||
|---|---|---|---|---|---|---|---|---|
| 5F | 16.1坪(53.1㎡) | 要問合せ | - | 事務所仕様 | 6ヶ月 | 相談 | 詳細を見る |
building-exterior日証館












茅場町駅駅徒歩5分、日本橋駅駅徒歩6分に位置するの地上7階 / 地下1階建てオフィスビル。エレベーター3基を完備。約26.43坪のフロアは少人数から中規模オフィスに対応可能。
| 階数 | 面積 | 賃料総額 | 坪単価 | 内装 | 敷金 | 入居日 | ||
|---|---|---|---|---|---|---|---|---|
| 2F | 21.1坪(69.9㎡) | 要問合せ | - | 事務所仕様 | 12ヶ月 | 相談 | 詳細を見る | |
| 3F | 21.1坪(70.0㎡) | 要問合せ | - | 事務所仕様 | 12ヶ月 | 2026/10/01 | 詳細を見る | |
| 3F | 26.4坪(87.4㎡) | 要問合せ | - | 事務所仕様 | 12ヶ月 | 相談 | 詳細を見る |
building-exteriorJRE茅場町2丁目ビル












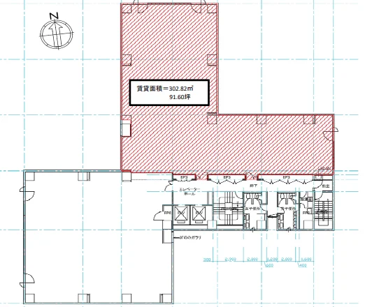
茅場町駅徒歩1分の駅至近オフィスビル。1991年竣工のSRC造で新耐震基準に適合。基準階約91坪の大型フロアはレイアウト自由度が高く、エレベーター2基・個別空調・男女別トイレを完備。天井高2600mm、ブラウンタイルの外観と石張りエントランスが上質な印象を与えます。兜町・日本橋の金融街に位置し、証券・金融関連企業の拠点に最適。
| 階数 | 面積 | 賃料総額 | 坪単価 | 内装 | 敷金 | 入居日 | ||
|---|---|---|---|---|---|---|---|---|
| 7F | 91.6坪(302.8㎡) | 要問合せ | - | 事務所仕様 | 相談 | 相談 | 詳細を見る |
building-exterior茅場町偕成ビル








茅場町駅駅徒歩2分、八丁堀駅駅徒歩5分に位置するの地上9階建てオフィスビル。エレベーター2基を完備。約67.97坪のフロアは中規模オフィスに適した広さ。
| 階数 | 面積 | 賃料総額 | 坪単価 | 内装 | 敷金 | 入居日 | ||
|---|---|---|---|---|---|---|---|---|
| 8F | 68.0坪(224.7㎡) | 要問合せ | - | 事務所仕様 | 12ヶ月 | 相談 | 詳細を見る |
building-exterior箱崎リージェントビル









水天宮前駅徒歩4分、茅場町駅徒歩7分の日本橋箱崎町に位置する地上8階建ての大型オフィスビル。個別空調・男女別トイレ・エレベーター2基を完備。基準階約97坪のフロアは中〜大規模オフィスに最適。半蔵門線が使える水天宮前エリアの好立地です。
| 階数 | 面積 | 賃料総額 | 坪単価 | 内装 | 敷金 | 入居日 | ||
|---|---|---|---|---|---|---|---|---|
| 5F | 96.6坪(319.3㎡) | 要問合せ | - | 事務所仕様 | 相談 | 2026/05/01 | 詳細を見る |
building-exterior神谷ビル






八丁堀駅駅徒歩1分、新富町駅駅徒歩9分に位置するの地上7階建てオフィスビル。エレベーター1基を完備。約35.08坪のフロアは中規模オフィスに適した広さ。
| 階数 | 面積 | 賃料総額 | 坪単価 | 内装 | 敷金 | 入居日 | ||
|---|---|---|---|---|---|---|---|---|
| 3F | 35.1坪(116.1㎡) | 要問合せ | - | 事務所仕様 | 6ヶ月 | 相談 | 詳細を見る |
building-exterior箱崎YMビル






水天宮前駅徒歩3分、人形町駅徒歩10分の日本橋箱崎町に位置する地上7階建てオフィスビル。個別空調・エレベーター1基を完備。約82坪の大型フロアはワンフロア利用に最適。半蔵門線が使える水天宮前駅至近で、箱崎ジャンクションにも近い交通至便のエリアです。
| 階数 | 面積 | 賃料総額 | 坪単価 | 内装 | 敷金 | 入居日 | ||
|---|---|---|---|---|---|---|---|---|
| 1階~3階セット | 81.8坪(270.3㎡) | 要問合せ | - | 事務所仕様 | 6ヶ月 | 相談 | 詳細を見る | |
| 5F | 27.5坪(91.0㎡) | 要問合せ | - | 事務所仕様 | 6ヶ月 | 相談 | 詳細を見る |
building-exteriorネオ神谷ビル










八丁堀駅徒歩1分、新富町駅徒歩9分の八丁堀4丁目に位置する地上7階・地下1階建てオフィスビル。個別空調・男女別トイレ・エレベーター1基を完備。約54坪のフロアは中規模オフィスに適した広さ。日比谷線・京葉線が使える八丁堀駅直上です。
| 階数 | 面積 | 賃料総額 | 坪単価 | 内装 | 敷金 | 入居日 | ||
|---|---|---|---|---|---|---|---|---|
| 4F | 53.8坪(177.7㎡) | 要問合せ | - | 事務所仕様 | 6ヶ月 | 相談 | 詳細を見る |
building-exterior桂昇茅場町ビル





茅場町駅駅徒歩4分に位置するの地上5階 / 地下1階建てオフィスビル。約31.12坪のフロアは少人数から中規模オフィスに対応可能。
| 階数 | 面積 | 賃料総額 | 坪単価 | 内装 | 敷金 | 入居日 | ||
|---|---|---|---|---|---|---|---|---|
| 3F | 31.1坪(102.9㎡) | 要問合せ | - | 事務所仕様 | 4ヶ月 | 2026/04 上旬 | 詳細を見る |
building-exterior布目ビル










茅場町駅駅徒歩5分、水天宮前駅駅徒歩5分に位置するの地上7階建てオフィスビル。エレベーター1基を完備。約15.3坪のフロアは少人数から中規模オフィスに対応可能。
| 階数 | 面積 | 賃料総額 | 坪単価 | 内装 | 敷金 | 入居日 | ||
|---|---|---|---|---|---|---|---|---|
| 2F | 15.3坪(50.7㎡) | 要問合せ | - | 事務所仕様 | 5ヶ月 | 相談 | 詳細を見る |
floor-plan東京ダイヤビルディング2号館









茅場町駅駅徒歩8分、八丁堀駅駅徒歩5分に位置するの地上11階 / 地下1階建てオフィスビル。エレベーター2基を完備。基準階約277.98坪の超大型フロアが特徴。
| 階数 | 面積 | 賃料総額 | 坪単価 | 内装 | 敷金 | 入居日 | ||
|---|---|---|---|---|---|---|---|---|
| 4F | 278.0坪(918.9㎡) | 要問合せ | - | 事務所仕様 | 12ヶ月 | 2026/04/01 | 詳細を見る | |
| 9F | 265.4坪(877.5㎡) | 要問合せ | - | 事務所仕様 | 12ヶ月 | 2027/01/01 | 詳細を見る | |
| 10F | 278.0坪(918.9㎡) | 要問合せ | - | 事務所仕様 | 12ヶ月 | 2026/04/01 | 詳細を見る |
building-exteriorヤマキビル





水天宮前駅から徒歩1分の好立地、日本橋箱崎町に所在。1981年竣工の鉄骨造、地上9階・地下1階建てのオフィスビルです。基準階約50坪のフロアで、個別空調・男女別トイレを完備。EV1基、駐車場も利用可能です。隅田川に近く、箱崎エリアならではの開放的な雰囲気が特徴。茅場町駅や人形町駅も徒歩圏内で、半蔵門線・日比谷線・都営浅草線など複数路線が使えます。まとまった面積で落ち着いた執務環境を求める企業向け。
| 階数 | 面積 | 賃料総額 | 坪単価 | 内装 | 敷金 | 入居日 | ||
|---|---|---|---|---|---|---|---|---|
| 7F | 49.9坪(165.0㎡) | 要問合せ | - | 事務所仕様 | 6ヶ月 | 相談 | 詳細を見る |
building-exteriorヤマタネ箱崎ビル




















茅場町駅駅徒歩7分、水天宮前駅駅徒歩5分に位置するの地上7階 / 地下1階建てオフィスビル。エレベーター2基を完備。基準階約129.9坪の大型フロアが特徴。
| 階数 | 面積 | 賃料総額 | 坪単価 | 内装 | 敷金 | 入居日 | ||
|---|---|---|---|---|---|---|---|---|
| 4F | 129.9坪(429.4㎡) | 要問合せ | - | 事務所仕様 | 12ヶ月 | 相談 | 詳細を見る | |
| 5F | 129.9坪(429.4㎡) | 要問合せ | - | 事務所仕様 | 12ヶ月 | 相談 | 詳細を見る |
building-exterior茅場町第3長岡ビル(茅場町第三長岡ビル)



茅場町駅駅徒歩2分、日本橋駅駅徒歩7分に位置するの地上10階 / 地下1階建てオフィスビル。エレベーター1基を完備。約54.12坪のフロアは中規模オフィスに適した広さ。
| 階数 | 面積 | 賃料総額 | 坪単価 | 内装 | 敷金 | 入居日 | ||
|---|---|---|---|---|---|---|---|---|
| 2F | 54.1坪(178.9㎡) | 要問合せ | - | 事務所仕様 | 8ヶ月 | 相談 | 詳細を見る |
building-exteriorトーエイ八丁堀ビル












八丁堀駅から徒歩2分、鈴らん通り角地に立つ1985年竣工のSRC造オフィス。地上8階地下1階建て、基準階約70坪で男女別トイレ・個別空調・OAフロアを完備。白とレンガ色の外観で視認性も高く、来客の多い企業にもおすすめ。周辺には飲食店が豊富で、ランチ環境も充実しています。
| 階数 | 面積 | 賃料総額 | 坪単価 | 内装 | 敷金 | 入居日 | ||
|---|---|---|---|---|---|---|---|---|
| 1F | 39.6坪(131.0㎡) | 要問合せ | - | 事務所仕様 | 相談 | 相談 | 詳細を見る |
building-exteriorAIC共同ビル・人形町






人形町駅徒歩1分の抜群のアクセス。1967年竣工のSRC造、地上9階・地下1階建てオフィスビルです。基準階約117坪の大型フロアでエレベーター2基を完備。1998年に空調リニューアル、2017年に共用部リニューアルを実施済み。個別空調・男女別トイレも備わっています。商業施設や飲食店が集まる人形町エリアの中心地。大規模オフィスに最適な物件です。
| 階数 | 面積 | 賃料総額 | 坪単価 | 内装 | 敷金 | 入居日 | ||
|---|---|---|---|---|---|---|---|---|
| 4F | 16.1坪(53.1㎡) | 要問合せ | - | 事務所仕様 | 6ヶ月 | 相談 | 詳細を見る | |
| 4F | 66.0坪(218.3㎡) | 要問合せ | - | 事務所仕様 | 6ヶ月 | 相談 | 詳細を見る | |
| 4F | 49.9坪(165.1㎡) | 要問合せ | - | 事務所仕様 | 6ヶ月 | 相談 | 詳細を見る | |
| 5F | 117.8坪(389.3㎡) | 要問合せ | - | 事務所仕様 | 6ヶ月 | 相談 | 詳細を見る |
building-exterior第1井上ビル










茅場町駅徒歩1分、八丁堀駅徒歩7分の日本橋茅場町2丁目に位置する地上7階・地下1階建てオフィスビル。OAフロア・個別空調・男女別トイレ・エレベーター1基を完備。約24坪のフロアは少人数オフィスに使いやすいサイズ。日比谷線・東西線が使える茅場町駅直上です。
| 階数 | 面積 | 賃料総額 | 坪単価 | 内装 | 敷金 | 入居日 | ||
|---|---|---|---|---|---|---|---|---|
| B1 | 23.9坪(79.0㎡) | 要問合せ | - | 事務所仕様 | 8ヶ月 | 相談 | 詳細を見る | |
| 5F | 13.0坪(43.0㎡) | 要問合せ | - | 事務所仕様 | 8ヶ月 | 相談 | 詳細を見る |
building-exterior茅場町K-1ビル










茅場町駅駅徒歩5分、水天宮前駅駅徒歩5分に位置するの地上9階建てオフィスビル。エレベーター1基を完備。約23.97坪のフロアは少人数から中規模オフィスに対応可能。
| 階数 | 面積 | 賃料総額 | 坪単価 | 内装 | 敷金 | 入居日 | ||
|---|---|---|---|---|---|---|---|---|
| 6F | 24.0坪(79.3㎡) | 要問合せ | - | 事務所仕様 | 6ヶ月 | 2026/06 下旬 | 詳細を見る |
building-exteriorPMO八丁堀Ⅲ
















東京メトロ日比谷線八丁堀駅A3出口から徒歩1分。2018年竣工のPMOシリーズで、ブラックガラスの外観が洗練された印象を与えます。基準階約57坪に天井高2,750mm・個別空調・パントリーを完備。6路線6駅が徒歩圏内で交通利便性は抜群。周辺にはコンビニや飲食店が点在し、快適なオフィスライフを実現できる環境です。
| 階数 | 面積 | 賃料総額 | 坪単価 | 内装 | 敷金 | 入居日 | ||
|---|---|---|---|---|---|---|---|---|
| 7F | 57.5坪(190.2㎡) | 要問合せ | - | 事務所仕様 | 相談 | 2026/08/01 | 詳細を見る |
building-exterior東熱新川ビル










八丁堀駅駅徒歩8分、茅場町駅駅徒歩9分に位置するの地上9階 / 地下1階建てオフィスビル。エレベーター2基を完備。基準階約140.32坪の大型フロアが特徴。
| 階数 | 面積 | 賃料総額 | 坪単価 | 内装 | 敷金 | 入居日 | ||
|---|---|---|---|---|---|---|---|---|
| 1F | 11.6坪(38.3㎡) | 要問合せ | - | 事務所仕様 | 10ヶ月 | 相談 | 詳細を見る | |
| 2F | 135.9坪(449.2㎡) | 要問合せ | - | 事務所仕様 | 10ヶ月 | 相談 | 詳細を見る | |
| 3F | 140.3坪(463.9㎡) | 要問合せ | - | 事務所仕様 | 10ヶ月 | 相談 | 詳細を見る | |
| 5F | 140.3坪(463.9㎡) | 要問合せ | - | 事務所仕様 | 10ヶ月 | 相談 | 詳細を見る | |
| 8F | 140.3坪(463.9㎡) | 要問合せ | - | 事務所仕様 | 10ヶ月 | 相談 | 詳細を見る | |
| 9F | 140.3坪(463.9㎡) | 要問合せ | - | 事務所仕様 | 10ヶ月 | 相談 | 詳細を見る |
building-exteriorPMO八丁堀








JR京葉線・東京メトロ日比谷線八丁堀駅から徒歩1分の駅直結級アクセス。2009年竣工の野村不動産PMOシリーズで、全面ガラス張りの洗練された外観が特徴。基準階約78坪の無柱空間に天井高2,800mm・個別空調・セキュリティゲートを完備。周辺は飲食店も多く、ハイグレードな執務環境を求める中規模企業におすすめです。
| 階数 | 面積 | 賃料総額 | 坪単価 | 内装 | 敷金 | 入居日 | ||
|---|---|---|---|---|---|---|---|---|
| 4F | 78.5坪(259.4㎡) | 要問合せ | - | 事務所仕様 | 12ヶ月 | 相談 | 詳細を見る | |
| 7F | 78.5坪(259.4㎡) | 要問合せ | - | 事務所仕様 | 12ヶ月 | 相談 | 詳細を見る |
building-exteriorPMO日本橋二丁目(PMO日本橋2丁目)








東京メトロ銀座線日本橋駅から徒歩1分の抜群の立地。2011年竣工のPMOシリーズで、天井高2,750mm・OAフロア・5段階セキュリティを備えたハイグレード仕様。基準階約45坪はレイアウト自由度が高い整形無柱空間です。日本橋二丁目は再開発が進む注目エリアで、企業ブランディングにも寄与する洗練されたオフィス環境を提供します。
| 階数 | 面積 | 賃料総額 | 坪単価 | 内装 | 敷金 | 入居日 | ||
|---|---|---|---|---|---|---|---|---|
| 7F | 45.1坪(149.0㎡) | 要問合せ | - | 事務所仕様 | 相談 | 2026/07/13 | 詳細を見る |
building-exterior日本橋人形町プレイス

















人形町駅駅徒歩3分、水天宮前駅駅徒歩3分に位置するの地上7階 / 地下1階建てオフィスビル。エレベーター1基を完備。約60.92坪のフロアは中規模オフィスに適した広さ。
| 階数 | 面積 | 賃料総額 | 坪単価 | 内装 | 敷金 | 入居日 | ||
|---|---|---|---|---|---|---|---|---|
| 3F | 60.9坪(201.4㎡) | 要問合せ | - | 事務所仕様 | 12ヶ月 | 相談 | 詳細を見る |
building-exterior新川田所ビル










八丁堀駅駅徒歩3分、茅場町駅駅徒歩8分に位置するの地上8階建てオフィスビル。エレベーター1基を完備。約18.6坪のフロアは少人数から中規模オフィスに対応可能。
| 階数 | 面積 | 賃料総額 | 坪単価 | 内装 | 敷金 | 入居日 | ||
|---|---|---|---|---|---|---|---|---|
| 4F | 18.6坪(61.5㎡) | 要問合せ | - | 事務所仕様 | 6ヶ月 | 相談 | 詳細を見る |
building-exterior鉄鋼会館










茅場町駅駅徒歩4分、八丁堀駅駅徒歩5分に位置するの地上9階 / 地下3階建てオフィスビル。エレベーター4基を完備。約31.72坪のフロアは少人数から中規模オフィスに対応可能。
| 階数 | 面積 | 賃料総額 | 坪単価 | 内装 | 敷金 | 入居日 | ||
|---|---|---|---|---|---|---|---|---|
| 1F | 31.7坪(104.9㎡) | 要問合せ | - | 事務所仕様 | 8ヶ月 | 相談 | 詳細を見る |
building-exteriorT-PLUS八丁堀


東京メトロ日比谷線・八丁堀駅から徒歩5分。東京駅も徒歩圏の好立地。2026年竣工予定のS造8階建て新築ビルで、EV2基・新耐震基準適合。基準階約89坪の大型フロアにセットアップオフィス区画あり。什器付きで入居後すぐに業務開始が可能です。1階に専用会議室、屋上にオープンテラスを設置。OAフロア・個別空調・男女別トイレ完備。スピード重視の成長企業に最適な即戦力オフィスです。
| 階数 | 面積 | 賃料総額 | 坪単価 | 内装 | 敷金 | 入居日 | ||
|---|---|---|---|---|---|---|---|---|
| 5F | 89.8坪(296.7㎡) | 要問合せ | - | 事務所仕様 | 相談 | 2026/04/01 | 詳細を見る |
building-exterior野沢天祐堂ビル





八丁堀駅徒歩1分、茅場町駅徒歩7分の八丁堀2丁目に位置する地上6階建てオフィスビル。個別空調を完備。約15坪のフロアは少人数事務所に使いやすいサイズ。敷金5ヶ月で入居可能。日比谷線・京葉線が使える八丁堀駅直上です。
| 階数 | 面積 | 賃料総額 | 坪単価 | 内装 | 敷金 | 入居日 | ||
|---|---|---|---|---|---|---|---|---|
| 3F | 15.2坪(50.3㎡) | 要問合せ | - | 事務所仕様 | 5ヶ月 | 相談 | 詳細を見る |
building-exterior高田ビル








茅場町駅駅徒歩2分、八丁堀駅駅徒歩3分に位置するの地上4階建てオフィスビル。約14坪のコンパクトな区画は少人数事務所に最適。敷金3ヶ月で入居可能。
| 階数 | 面積 | 賃料総額 | 坪単価 | 内装 | 敷金 | 入居日 | ||
|---|---|---|---|---|---|---|---|---|
| 3F | 14.0坪(46.3㎡) | 要問合せ | - | 事務所仕様 | 3ヶ月 | 相談 | 詳細を見る |

東京NSビル






八丁堀駅駅徒歩2分、茅場町駅駅徒歩5分に位置するの地上7階建てオフィスビル。エレベーター1基を完備。約29.69坪のフロアは少人数から中規模オフィスに対応可能。
| 階数 | 面積 | 賃料総額 | 坪単価 | 内装 | 敷金 | 入居日 | ||
|---|---|---|---|---|---|---|---|---|
| 2F | 29.7坪(98.2㎡) | 要問合せ | - | 事務所仕様 | 4ヶ月 | 相談 | 詳細を見る | |
| 4F | 29.7坪(98.2㎡) | 要問合せ | - | 事務所仕様 | 4ヶ月 | 相談 | 詳細を見る |
building-exterior八丁堀フロンティアビル







八丁堀駅から徒歩1分、1991年竣工のSRC造で地上7階地下1階建て。2001年にリニューアル済みのスタイリッシュな外観が特徴。基準階約24坪で男女別トイレ・個別空調・機械警備を完備。新耐震基準適合で安心の構造。コンパクトながら設備充実のオフィスを求める少人数企業に最適です。
| 階数 | 面積 | 賃料総額 | 坪単価 | 内装 | 敷金 | 入居日 | ||
|---|---|---|---|---|---|---|---|---|
| 3F | 24.0坪(79.4㎡) | 要問合せ | - | 事務所仕様 | 2ヶ月 | 2026/08 上旬 | 詳細を見る |
building-exterior坂田ビル








茅場町駅徒歩8分、八丁堀駅徒歩3分の新川2丁目に位置する地上7階・地下1階建てオフィスビル。エレベーター1基を完備。約34坪のフロアは中小規模オフィスに適した広さ。新川エリアです。
| 階数 | 面積 | 賃料総額 | 坪単価 | 内装 | 敷金 | 入居日 | ||
|---|---|---|---|---|---|---|---|---|
| 6F | 34.0坪(112.4㎡) | 要問合せ | - | 事務所仕様 | 6ヶ月 | 相談 | 詳細を見る |
building-exteriorSHビル










JR京葉線・東京メトロ日比谷線八丁堀駅から徒歩1分の駅前立地。1988年竣工のSRC造、地上7階・地下1階建てオフィスビルです。基準階約68坪で個別空調・OAフロア・機械警備を完備。新川の隅田川沿いに位置し、リバーサイドの穏やかな眺望が魅力。24時間利用可能で、柔軟な働き方を実現したい中規模企業におすすめです。
| 階数 | 面積 | 賃料総額 | 坪単価 | 内装 | 敷金 | 入居日 | ||
|---|---|---|---|---|---|---|---|---|
| 2F | 68.3坪(225.6㎡) | 要問合せ | - | 事務所仕様 | 8ヶ月 | 2026/05/01 | 詳細を見る |
building-exterior八重洲桜川ビル










八丁堀駅から徒歩1分、宝町駅も徒歩圏内の好立地。1996年築・2017年に外壁とエントランスをリニューアル済みの地上8階建てビルです。個別空調・男女別トイレ・EV2基を完備し、天井高は最大3,040mm。24時間利用可能で、周辺にはコンビニや飲食店が充実。複数路線を使いこなしたい成長企業に最適な拠点。
| 階数 | 面積 | 賃料総額 | 坪単価 | 内装 | 敷金 | 入居日 | ||
|---|---|---|---|---|---|---|---|---|
| 2F | 65.7坪(217.2㎡) | 要問合せ | - | 事務所仕様 | 相談 | 2026/08 下旬 | 詳細を見る |
building-exteriorAUBE新川ビル(オーブ新川ビル)










八丁堀駅徒歩2分、中央区新川2丁目に立地するオフィスビル。2018年リニューアル済みの地上10階建てで、エレベーター1基を完備しています。基準階約13坪の小規模区画で個別空調・男女別トイレを備えた使い勝手の良い仕様。24時間利用可能で機械警備も導入済みです。周辺にはコンビニや飲食店、クリニックが揃い生活利便性も高い環境。少人数オフィスに最適です。
| 階数 | 面積 | 賃料総額 | 坪単価 | 内装 | 敷金 | 入居日 | ||
|---|---|---|---|---|---|---|---|---|
| 6F | 13.4坪(44.3㎡) | 要問合せ | - | 事務所仕様 | 6ヶ月 | 相談 | 詳細を見る |
building-exterior兜町第3ビル












茅場町駅から徒歩わずか1分、日本橋駅も徒歩5分の抜群のアクセス。1971年竣工の地上7階建てで、1フロア約18坪のコンパクトな区画構成。個別空調とEV1基を備え、少人数オフィスに適した使い勝手の良さが魅力。兜町の金融街に位置し、証券・金融関連の企業にも好相性の立地です。
| 階数 | 面積 | 賃料総額 | 坪単価 | 内装 | 敷金 | 入居日 | ||
|---|---|---|---|---|---|---|---|---|
| 1F | 19.2坪(63.5㎡) | 要問合せ | - | 事務所仕様 | 6ヶ月 | 2026/06/01 | 詳細を見る | |
| 7F | 18.0坪(59.5㎡) | 要問合せ | - | 事務所仕様 | 6ヶ月 | 相談 | 詳細を見る |
building-exteriorウィンド水天宮ビル








水天宮前駅駅徒歩1分、人形町駅駅徒歩5分に位置するの地上9階建てオフィスビル。エレベーター1基を完備。約32.95坪のフロアは少人数から中規模オフィスに対応可能。
| 階数 | 面積 | 賃料総額 | 坪単価 | 内装 | 敷金 | 入居日 | ||
|---|---|---|---|---|---|---|---|---|
| 5F | 33.0坪(108.9㎡) | 要問合せ | - | 事務所仕様 | 12ヶ月 | 相談 | 詳細を見る |
building-exteriorコア京橋ビル










JR八丁堀駅から徒歩2分、茅場町駅や京橋駅も徒歩圏内の好アクセス。1998年竣工の地上9階建てで、基準階約86坪のゆとりある空間。ガラスウォールの外観と石張りエントランスが高級感を演出します。個別空調・OAフロア・男女別トイレ完備。1階にコンビニがあり、周辺には飲食店も豊富でランチ環境が充実。八丁堀エリアで本格的なオフィスを構えたい企業向け。
| 階数 | 面積 | 賃料総額 | 坪単価 | 内装 | 敷金 | 入居日 | ||
|---|---|---|---|---|---|---|---|---|
| 8F | 48.2坪(159.5㎡) | 要問合せ | - | 事務所仕様 | 10ヶ月 | 相談 | 詳細を見る |
building-exterior茅場町EKKビル




















茅場町駅駅徒歩5分、京橋駅駅徒歩12分に位置するの地上7階建てオフィスビル。エレベーター1基を完備。約50坪のフロアは中規模オフィスに適した広さ。
| 階数 | 面積 | 賃料総額 | 坪単価 | 内装 | 敷金 | 入居日 | ||
|---|---|---|---|---|---|---|---|---|
| 4F | 50.0坪(165.3㎡) | 要問合せ | - | 事務所仕様 | 相談 | 相談 | 詳細を見る |
building-exteriorトーシンフェニックス日本橋兜町参番館





茅場町駅駅徒歩1分に位置するの地上8階建てオフィスビル。約13.94坪のコンパクトな区画は少人数事務所に最適。敷金1ヶ月で入居可能。
| 階数 | 面積 | 賃料総額 | 坪単価 | 内装 | 敷金 | 入居日 | ||
|---|---|---|---|---|---|---|---|---|
| 8F | 13.9坪(46.1㎡) | 要問合せ | - | 事務所仕様 | 1ヶ月 | 相談 | 詳細を見る |

合人社東京八丁堀ビル






































































八丁堀駅徒歩1分、2024年3月竣工の新築オフィスビル。鉄骨造・地上11階建てで、天井高2,700mm・個別空調・OAフロア・機械警備を完備した最新スペック。新耐震基準適合で男女別トイレも設置。基準階約37坪の使いやすいフロア構成です。周辺にはコンビニや飲食店が充実し、新築ならではの快適な執務環境を求める企業に好適。
| 階数 | 面積 | 賃料総額 | 坪単価 | 内装 | 敷金 | 入居日 | ||
|---|---|---|---|---|---|---|---|---|
| 8階9階セット | 73.1坪(241.6㎡) | 要問合せ | - | 事務所仕様 | 6ヶ月 | 相談 | 詳細を見る | |
| 8F | 36.5坪(120.8㎡) | 803,880円 | 22,000円/坪 | 事務所仕様 | 6ヶ月 | 相談 | 詳細を見る | |
| 9F | 36.5坪(120.8㎡) | 840,420円 | 23,000円/坪 | 事務所仕様 | 6ヶ月 | 相談 | 詳細を見る |
building-exteriorトラッドビル












茅場町駅から徒歩1分、日本橋駅徒歩4分の抜群のアクセス。1991年竣工、新耐震基準適合の8階建てオフィスビルです。基準階約39坪の整形フロアに、個別空調・OAフロア・男女別トイレを完備。平成通り沿いの角地に立地し、視認性と採光に優れています。コレド日本橋や高島屋も徒歩圏内で、ビジネスにも生活にも便利な日本橋エリアの好物件です。
| 階数 | 面積 | 賃料総額 | 坪単価 | 内装 | 敷金 | 入居日 | ||
|---|---|---|---|---|---|---|---|---|
| 1F | 26.8坪(88.7㎡) | 要問合せ | - | 事務所仕様 | 8ヶ月 | 相談 | 詳細を見る | |
| 2F | 39.8坪(131.6㎡) | 要問合せ | - | 事務所仕様 | 8ヶ月 | 相談 | 詳細を見る | |
| 3F | 39.8坪(131.6㎡) | 要問合せ | - | 事務所仕様 | 8ヶ月 | 相談 | 詳細を見る | |
| 4F | 39.8坪(131.6㎡) | 要問合せ | - | 事務所仕様 | 8ヶ月 | 相談 | 詳細を見る |
building-exterior日本橋兜町シティビル










日本橋駅駅徒歩4分に位置するの地上5階 / 地下1階建てオフィスビル。約10.19坪のコンパクトな区画は少人数事務所に最適。
| 階数 | 面積 | 賃料総額 | 坪単価 | 内装 | 敷金 | 入居日 | ||
|---|---|---|---|---|---|---|---|---|
| B1 | 10.2坪(33.7㎡) | 要問合せ | - | 事務所仕様 | 900ヶ月 | 相談 | 詳細を見る |
building-exterior大湯ビル












茅場町駅駅徒歩2分、日本橋駅駅徒歩7分に位置するの地上6階 / 地下1階建てオフィスビル。エレベーター1基を完備。約43坪のフロアは中規模オフィスに適した広さ。
| 階数 | 面積 | 賃料総額 | 坪単価 | 内装 | 敷金 | 入居日 | ||
|---|---|---|---|---|---|---|---|---|
| B1 | 43.0坪(142.2㎡) | 要問合せ | - | 事務所仕様 | 6ヶ月 | 相談 | 詳細を見る | |
| 1F | 10.0坪(33.1㎡) | 要問合せ | - | 事務所仕様 | 6ヶ月 | 相談 | 詳細を見る |
building-exterior黒江屋八丁堀ビル












八丁堀駅駅徒歩2分、宝町駅駅徒歩5分に位置するの地上6階 / 地下1階建てオフィスビル。エレベーター1基を完備。約17.85坪のフロアは少人数から中規模オフィスに対応可能。
| 階数 | 面積 | 賃料総額 | 坪単価 | 内装 | 敷金 | 入居日 | ||
|---|---|---|---|---|---|---|---|---|
| 2F | 17.9坪(59.0㎡) | 要問合せ | - | 事務所仕様 | 6ヶ月 | 相談 | 詳細を見る | |
| 3F | 17.9坪(59.0㎡) | 要問合せ | - | 事務所仕様 | 6ヶ月 | 相談 | 詳細を見る | |
| 5F | 17.9坪(59.0㎡) | 要問合せ | - | 事務所仕様 | 6ヶ月 | 相談 | 詳細を見る |
building-exterior新川I&Lビル








茅場町駅駅徒歩6分、水天宮前駅駅徒歩9分に位置するの地上10階建てオフィスビル。エレベーター1基を完備。約37.95坪のフロアは中規模オフィスに適した広さ。
| 階数 | 面積 | 賃料総額 | 坪単価 | 内装 | 敷金 | 入居日 | ||
|---|---|---|---|---|---|---|---|---|
| 8F | 38.0坪(125.4㎡) | 要問合せ | - | 事務所仕様 | 6ヶ月 | 2026/07 下旬 | 詳細を見る | |
| 9F | 38.0坪(125.4㎡) | 要問合せ | - | 事務所仕様 | 6ヶ月 | 2026/04 上旬 | 詳細を見る |

ONE SHINKAWA






























東京メトロ東西線・日比谷線茅場町駅から徒歩6分、永代通り沿いに立地。1990年竣工・2023年リニューアル済みの地上14階建て大型オフィスビルです。基準階約173坪の大空間にEV3基・機械警備と有人警備を併用した高いセキュリティを確保。新川エリアは隅田川沿いの開放的な環境で、成長フェーズの企業に最適です。
| 階数 | 面積 | 賃料総額 | 坪単価 | 内装 | 敷金 | 入居日 | ||
|---|---|---|---|---|---|---|---|---|
| 2F | 68.5坪(225.8㎡) | 要問合せ | - | セットアップオフィス | 0円 | 2026/07/01 | 詳細を見る | |
| 2F | 38.1坪(125.7㎡) | 要問合せ | - | セットアップオフィス | 0円 | 2026/07/16 | 詳細を見る | |
| 2F | 68.3坪(225.8㎡) | 1,369,200円 | 20,000円/坪 | セットアップオフィス | 0円 | 相談 | 詳細を見る | |
| 3F | 173.5坪(573.5㎡) | 要問合せ | - | セットアップオフィス | 0円 | 2026/07/01 | 詳細を見る | |
| 14F 1402 | 41.4坪(136.9㎡) | 911,020円 | 22,000円/坪 | セットアップオフィス | 0円 | 即日 | 詳細を見る | |
| 14F 1401 | 29.9坪(98.7㎡) | 656,920円 | 22,000円/坪 | セットアップオフィス | 0円 | 即日 | 詳細を見る |
floor-plan金盃第3ビル(金盃第三ビル)











茅場町駅駅徒歩7分、八丁堀駅駅徒歩5分に位置するの地上9階 / 地下1階建てオフィスビル。エレベーター2基を完備。基準階約115.28坪の大型フロアが特徴。
| 階数 | 面積 | 賃料総額 | 坪単価 | 内装 | 敷金 | 入居日 | ||
|---|---|---|---|---|---|---|---|---|
| 2F | 93.4坪(308.7㎡) | 要問合せ | - | 事務所仕様 | 8ヶ月 | 相談 | 詳細を見る | |
| 4F | 115.3坪(381.1㎡) | 要問合せ | - | 事務所仕様 | 8ヶ月 | 相談 | 詳細を見る |
building-exterior井門茅場町ビル










東京メトロ茅場町駅から徒歩4分、八丁堀駅も利用可能な2駅アクセス。1969年竣工で1989年にリニューアルされた地上7階建てのオフィスビルです。御影石のエントランスホールが落ち着いた印象を与えます。個別空調・機械警備を完備し、1階には飲食店が入居。新大橋通りから一本入った静かな立地で、周辺は金融街ならではの落ち着いた環境。少人数オフィスを求める企業に最適な物件。
| 階数 | 面積 | 賃料総額 | 坪単価 | 内装 | 敷金 | 入居日 | ||
|---|---|---|---|---|---|---|---|---|
| 3F | 20.9坪(69.1㎡) | 要問合せ | - | 事務所仕様 | 10ヶ月 | 相談 | 詳細を見る |
building-exteriorオーチュー小網町






茅場町駅駅徒歩4分、人形町駅駅徒歩6分に位置するの地上7階 / 地下1階建てオフィスビル。エレベーター1基を完備。約9.47坪のコンパクトな区画は少人数事務所に最適。
| 階数 | 面積 | 賃料総額 | 坪単価 | 内装 | 敷金 | 入居日 | ||
|---|---|---|---|---|---|---|---|---|
| 1F | 9.5坪(31.3㎡) | 要問合せ | - | 事務所仕様 | 相談 | 相談 | 詳細を見る |
floor-planT-PLUS八丁堀





東京メトロ日比谷線・八丁堀駅から徒歩5分。東京駅も徒歩圏の好立地。2026年竣工予定のS造8階建て新築ビルで、EV2基・新耐震基準適合。基準階約89坪の大型フロアにセットアップオフィス区画あり。什器付きで入居後すぐに業務開始が可能です。1階に専用会議室、屋上にオープンテラスを設置。OAフロア・個別空調・男女別トイレ完備。スピード重視の成長企業に最適な即戦力オフィスです。
| 階数 | 面積 | 賃料総額 | 坪単価 | 内装 | 敷金 | 入居日 | ||
|---|---|---|---|---|---|---|---|---|
| 3F | 39.2坪(129.5㎡) | 要問合せ | - | セットアップオフィス | 12ヶ月 | 2026-04-01T00:00:00.000Z | 詳細を見る | |
| 3F | 43.5坪(143.7㎡) | 要問合せ | - | セットアップオフィス | 12ヶ月 | 2026-04-01T00:00:00.000Z | 詳細を見る | |
| 4F | 89.8坪(296.7㎡) | 要問合せ | - | セットアップオフィス | 12ヶ月 | 2026-04-01T00:00:00.000Z | 詳細を見る | |
| 6F | 89.8坪(296.7㎡) | 要問合せ | - | セットアップオフィス | 12ヶ月 | 2026-04-01T00:00:00.000Z | 詳細を見る | |
| 7F | 89.8坪(296.7㎡) | 要問合せ | - | セットアップオフィス | 12ヶ月 | 2026-04-01T00:00:00.000Z | 詳細を見る | |
| 8F | 89.8坪(296.7㎡) | 要問合せ | - | セットアップオフィス | 12ヶ月 | 2026-04-01T00:00:00.000Z | 詳細を見る |
building-exteriorヤブ原ビル








八丁堀駅徒歩2分に2027年3月竣工予定の新築オフィスビル。鉄骨・RC造の地上9階・地下1階建てで、天井高2,800mm・EV3基・個別空調を完備。新耐震基準適合の最新スペック。基準階約169坪の大型フロアで自由なレイアウトが可能です。茅場町駅も徒歩圏内で複数路線を利用可能。最新設備の新築ビルで拠点を構えたい企業に最適。
| 階数 | 面積 | 賃料総額 | 坪単価 | 内装 | 敷金 | 入居日 | ||
|---|---|---|---|---|---|---|---|---|
| 5F | 168.9坪(558.5㎡) | 要問合せ | - | 事務所仕様 | 相談 | 2027/03予定 | 詳細を見る | |
| 6F | 168.9坪(558.5㎡) | 要問合せ | - | 事務所仕様 | 相談 | 2027/03予定 | 詳細を見る | |
| 7F | 168.9坪(558.5㎡) | 要問合せ | - | 事務所仕様 | 相談 | 2027/03予定 | 詳細を見る | |
| 8F | 168.9坪(558.5㎡) | 要問合せ | - | 事務所仕様 | 相談 | 2027/03予定 | 詳細を見る |
building-exteriorヤブ原ビル








JR東京駅八重洲口直結の地上51階・地下4階建て超高層タワー。2026年2月竣工で、高さ約250mのランドマークビル。天井高2,900mm、基準階約760坪の無柱大空間。EV32基・新耐震基準適合。9〜50階がオフィスフロアで、13階・41階にワーカー支援施設を配置。地下街・バスターミナル直結の圧倒的な交通利便性。日本を代表する企業にふさわしい最高峰のオフィスです。
| 階数 | 面積 | 賃料総額 | 坪単価 | 内装 | 敷金 | 入居日 | ||
|---|---|---|---|---|---|---|---|---|
| 4F | 168.9坪(558.5㎡) | 要問合せ | - | 事務所仕様 | 相談 | 2027/03予定 | 詳細を見る | |
| 9F | 168.9坪(558.5㎡) | 要問合せ | - | 事務所仕様 | 相談 | 2027/03予定 | 詳細を見る |
NOVEL WORK 日本橋茅場町
東京メトロ東西線・日比谷線茅場町駅から徒歩1分の好立地。1985年竣工・新耐震基準適合のSRC造10階建てビルです。什器付きセットアップオフィスで、入居後すぐに業務を開始可能。敷金0円で初期コストを大幅に抑えられます。東京証券取引所を擁する金融街に位置し、金融・コンサル系企業に最適な環境です。
| 階数 | 面積 | 賃料総額 | 坪単価 | 内装 | 敷金 | 入居日 | ||
|---|---|---|---|---|---|---|---|---|
| 9+10階 | 71.7坪(237.0㎡) | 2,078,720円 | 29,000円/坪 | セットアップオフィス | 0円 | 即日 | 詳細を見る |

+SHIFT 日本橋桜通り






















日本橋駅徒歩3分、東京駅も徒歩圏内という抜群の立地に2026年3月竣工の新築セットアップオフィスです。敷金0円・原状回復不要で、オフィス移転にかかる初期費用と手間を大幅に削減。基準階約28坪のフロアには、受付・会議室2室・テレカンブース・ラウンジが標準装備されており、入居後すぐに業務を開始できる内装付きオフィスです。入居者専用のルーフトップラウンジも利用でき、来客対応やリフレッシュの場として活用いただけます。浅草線・東西線・銀座線の3路線が使え、都内各方面へのアクセスも良好です。
| 階数 | 面積 | 賃料総額 | 坪単価 | 内装 | 敷金 | 入居日 | ||
|---|---|---|---|---|---|---|---|---|
| 1F | 28.1坪(92.8㎡) | 要問合せ | - | セットアップオフィス | 0円 | 2026年4月中旬予定 | 詳細を見る | |
| 5F | 44.0坪(145.3㎡) | 要問合せ | - | セットアップオフィス | 0円 | 2026年4月1日予定 | 詳細を見る | |
| 6F | 44.0坪(145.3㎡) | 要問合せ | - | セットアップオフィス | 0円 | 2026年4月中旬予定 | 詳細を見る | |
| 7F | 44.0坪(145.3㎡) | 要問合せ | - | セットアップオフィス | 0円 | 2026年4月中旬予定 | 詳細を見る |

ヒューリック蛎殻町ビル














水天宮前駅徒歩2分、人形町駅・茅場町駅も徒歩圏内と交通利便性に優れた大型オフィスビルです。1993年竣工の鉄骨鉄筋コンクリート造・地上9階建てで、新耐震基準に適合。フリーアクセスフロア・個別空調・男女別トイレ・エレベーター2基を備え、天井高2,600mmの快適な執務空間を提供します。56.19坪の区画は敷金0円のセットアップオフィスとして、内装付きオフィスへの移転を検討する中規模企業に適しています。日本橋蛎殻町の落ち着いたビジネスエリアで、ヒューリックブランドの信頼感とともに、初期費用を抑えたオフィス移転が実現します。
| 階数 | 面積 | 賃料総額 | 坪単価 | 内装 | 敷金 | 入居日 | ||
|---|---|---|---|---|---|---|---|---|
| 2F | 56.6坪(187.2㎡) | 要問合せ | - | セットアップオフィス | 0円 | 2026年6月1日(予定) | 詳細を見る | |
| 2F | 56.2坪(185.8㎡) | 要問合せ | - | セットアップオフィス | 0円 | 2026年6月1日(予定) | 詳細を見る |

八丁堀ファーストスクエア
















八丁堀駅徒歩1分、徒歩10分圏内に5駅6路線が集まるマルチアクセスが魅力のセットアップオフィスです。全室リニューアル済みの34.04坪のフロアは、OAフロア・個別空調・男女別ウォシュレット付きトイレを完備。重厚感のあるタイル張り外観が信頼感を演出します。東京駅・銀座エリアにも近く、クライアント訪問にも便利な立地。24時間セキュリティ完備の内装付きオフィスとして、敷金0円でのオフィス移転が可能です。
| 階数 | 面積 | 賃料総額 | 坪単価 | 内装 | 敷金 | 入居日 | ||
|---|---|---|---|---|---|---|---|---|
| 6F | 34.0坪(112.5㎡) | 900,000円 | 26,439円/坪 | セットアップオフィス | 5ヶ月 | 2026年4月下旬予定 | 詳細を見る |

owns八丁堀














八丁堀駅徒歩2分、NTT都市開発が手がける新築オフィスブランド「owns」のセットアップオフィス。2025年7月竣工の12階建てで、天井高3,400mm、全フロアに会議室・インナーテラス・専用テラスを標準装備しています。「集まりたくなる場所」をコンセプトに、キッチン付き屋上テラスなどコミュニケーションを促進する共用空間が充実。敷金0円・内装付きオフィスで、オフィス移転の初期負担を軽減しながら、最新のワークプレイス環境が手に入ります。ZEB Ready認証取得予定で環境性能も高い物件です。
| 階数 | 面積 | 賃料総額 | 坪単価 | 内装 | 敷金 | 入居日 | ||
|---|---|---|---|---|---|---|---|---|
| 2F | 80.3坪(265.4㎡) | 要問合せ | - | セットアップオフィス | 0円 | 相談 | 詳細を見る | |
| 3F | 101.1坪(334.2㎡) | 要問合せ | - | セットアップオフィス | 0円 | 相談 | 詳細を見る | |
| 4F | 101.1坪(334.2㎡) | 要問合せ | - | セットアップオフィス | 0円 | 相談 | 詳細を見る | |
| 7F | 101.1坪(334.2㎡) | 要問合せ | - | セットアップオフィス | 0円 | 相談 | 詳細を見る | |
| 7F | 101.1坪(334.2㎡) | 要問合せ | - | セットアップオフィス | 0円 | 2025/07/31 | 詳細を見る | |
| 8F | 101.1坪(334.2㎡) | 要問合せ | - | セットアップオフィス | 0円 | 相談 | 詳細を見る | |
| 9F | 101.1坪(334.2㎡) | 要問合せ | - | セットアップオフィス | 0円 | 相談 | 詳細を見る | |
| 9F | 101.1坪(334.2㎡) | 要問合せ | - | セットアップオフィス | 0円 | 2025/08/31 | 詳細を見る | |
| 10F | 101.1坪(334.2㎡) | 要問合せ | - | セットアップオフィス | 0円 | 相談 | 詳細を見る | |
| 10F | 101.1坪(334.2㎡) | 要問合せ | - | セットアップオフィス | 0円 | 2025/08/31 | 詳細を見る | |
| 11F | 101.1坪(334.2㎡) | 要問合せ | - | セットアップオフィス | 0円 | 相談 | 詳細を見る |
building-exteriorNOVEL WORK 京橋










八丁堀駅徒歩4分、角地に建つ1フロア1テナントのセットアップオフィス。2面採光による明るい室内が特長で、敷金0円のためオフィス移転の初期費用を抑えられます。宝町駅・京橋駅・茅場町駅も徒歩圏内で、銀座線・日比谷線・浅草線・東西線の4路線が利用可能。個別空調・光回線・24時間機械警備を完備し、周辺には飲食店やコンビニも充実した内装付きオフィスです。
| 階数 | 面積 | 賃料総額 | 坪単価 | 内装 | 敷金 | 入居日 | ||
|---|---|---|---|---|---|---|---|---|
| 2F | 29.6坪(98.0㎡) | 844,740円 | 28,500円/坪 | セットアップオフィス | 0円 | 相談 | 詳細を見る | |
| 3F | 29.6坪(98.0㎡) | 844,740円 | 28,500円/坪 | セットアップオフィス | 0円 | 相談 | 詳細を見る |

藤井ビル



八丁堀駅徒歩1分、宝町駅徒歩5分の八丁堀4丁目に位置する地上3階建てのコンパクトオフィスビル。約14坪の区画は少人数事務所に最適。日比谷線・京葉線が使える八丁堀駅直上です。
| 階数 | 面積 | 賃料総額 | 坪単価 | 内装 | 敷金 | 入居日 | ||
|---|---|---|---|---|---|---|---|---|
| 2F | 14.4坪(47.8㎡) | 要問合せ | - | 事務所仕様 | 6ヶ月 | 相談 | 詳細を見る |

朝日ビルヂング







































日本橋駅駅徒歩4分、宝町駅駅徒歩4分に位置するの地上9階 / 地下4階建てオフィスビル。エレベーター4基を完備。約51.33坪のフロアは中規模オフィスに適した広さ。
| 階数 | 面積 | 賃料総額 | 坪単価 | 内装 | 敷金 | 入居日 | ||
|---|---|---|---|---|---|---|---|---|
| B1 | 51.3坪(169.7㎡) | 要問合せ | - | 事務所仕様 | 12ヶ月 | 相談 | 詳細を見る |

西野金陵ビル















八丁堀駅駅徒歩1分、宝町駅駅徒歩5分に位置するの地上9階 / 地下1階建てオフィスビル。エレベーター1基を完備。基準階約104.19坪の大型フロアが特徴。
| 階数 | 面積 | 賃料総額 | 坪単価 | 内装 | 敷金 | 入居日 | ||
|---|---|---|---|---|---|---|---|---|
| 8F | 104.2坪(344.4㎡) | 要問合せ | - | 事務所仕様 | 12ヶ月 | 相談 | 詳細を見る |

合人社江戸日本橋ビル




























日本橋駅徒歩2分・東京駅徒歩9分、2024年11月竣工の最新オフィスビルです。天井高3,265mmの開放的な執務空間に、顔認証セキュリティ・個別空調・共用WiFiなど先進的な設備を完備したセットアップオフィス。各フロアのテラスや屋上庭園、1階のカフェなど多彩な共用スペースが社員間の交流を促進します。64.72坪のフロアは即入居可能な内装付きオフィスとして、敷金0円でオフィス移転が可能。日本橋の新たなランドマークです。
| 階数 | 面積 | 賃料総額 | 坪単価 | 内装 | 敷金 | 入居日 | ||
|---|---|---|---|---|---|---|---|---|
| 11F | 64.7坪(213.9㎡) | 要問合せ | - | セットアップオフィス | 相談 | 相談 | 詳細を見る |

金谷ビル

























八丁堀駅徒歩1分、宝町駅徒歩5分の八丁堀4丁目に位置する地上7階建てオフィスビル。エレベーター1基を完備。約19坪のフロアは少人数事務所に使いやすいサイズ。日比谷線・京葉線が使える八丁堀駅直上の好アクセスです。
| 階数 | 面積 | 賃料総額 | 坪単価 | 内装 | 敷金 | 入居日 | ||
|---|---|---|---|---|---|---|---|---|
| 4F | 18.9坪(62.6㎡) | 208,200円 | 10,992円/坪 | 事務所仕様 | 6ヶ月 | 相談 | 詳細を見る |

茅場町2丁目ビル


茅場町駅駅徒歩2分、八丁堀駅駅徒歩5分に位置するの地上9階建てオフィスビル。エレベーター1基を完備。約26.74坪のフロアは少人数から中規模オフィスに対応可能。
| 階数 | 面積 | 賃料総額 | 坪単価 | 内装 | 敷金 | 入居日 | ||
|---|---|---|---|---|---|---|---|---|
| 4F | 26.7坪(88.4㎡) | 要問合せ | - | 事務所仕様 | 8ヶ月 | 相談 | 詳細を見る | |
| 8F | 26.7坪(88.4㎡) | 要問合せ | - | 事務所仕様 | 8ヶ月 | 相談 | 詳細を見る |

ラ・ベール日本橋
































茅場町駅駅徒歩4分、人形町駅駅徒歩4分に位置するの地上8階 / 地下1階建てオフィスビル。エレベーター有基を完備。基準階約652.77坪の超大型フロアが特徴。
| 階数 | 面積 | 賃料総額 | 坪単価 | 内装 | 敷金 | 入居日 | ||
|---|---|---|---|---|---|---|---|---|
| 一棟 | 652.8坪(2157.9㎡) | 要問合せ | - | 事務所仕様 | 相談 | 相談 | 詳細を見る |

キューブワン八丁堀



































八丁堀駅徒歩2分、茅場町駅徒歩3分の好立地に2022年竣工の新築オフィス。地上9階建て鉄骨造で、新耐震基準の1.25倍の耐震強度を誇る。非接触ボタンや機械・自然換気併用など感染症対策も万全。屋上にはウッドデッキガーデンを設置。最新設備で快適に働きたい企業に最適な一棟です。
| 階数 | 面積 | 賃料総額 | 坪単価 | 内装 | 敷金 | 入居日 | ||
|---|---|---|---|---|---|---|---|---|
| 2F | 64.6坪(213.7㎡) | 要問合せ | - | 事務所仕様 | 12ヶ月 | 相談 | 詳細を見る |

WORK BASE Nihombashi


































































日本橋駅徒歩3分、東京駅も徒歩圏内という好立地のセットアップオフィス。1フロア1テナントの専有設計で、OAフロア・個別空調・光回線を完備しています。2008年にリニューアル済みの9階建てビルは、24時間利用可能な機械警備付き。内装付きオフィスとして、オフィス移転時の初期コストを抑えながら、日本橋エリアの利便性をすぐに享受できる物件です。
| 階数 | 面積 | 賃料総額 | 坪単価 | 内装 | 敷金 | 入居日 | ||
|---|---|---|---|---|---|---|---|---|
| 4F | 23.8坪(78.8㎡) | 要問合せ | - | セットアップオフィス | 6ヶ月 | 相談 | 詳細を見る |

TSUKIJI EAST SQUARE











新富町駅徒歩4分、築地駅・八丁堀駅も徒歩圏内の3駅利用可能なセットアップオフィスです。1990年竣工・2020年に貸室内をフルリニューアルし、会議室2室を含むデザイン性の高い内装付きオフィスに生まれ変わりました。47.67坪のワンフロア・ワンテナント構成で、OAフロア・個別空調・男女別トイレを備えています。敷金0円・機械警備・24時間利用可と、コスト面・セキュリティ面ともに安心。オフィス移転で人材獲得につなげたい企業にとって、洗練されたデザインと中央区の利便性を兼ね備えた魅力的な選択肢です。
| 階数 | 面積 | 賃料総額 | 坪単価 | 内装 | 敷金 | 入居日 | ||
|---|---|---|---|---|---|---|---|---|
| 2F | 47.7坪(157.6㎡) | 953,400円 | 20,000円/坪 | セットアップオフィス | 0円 | 相談 | 詳細を見る | |
| 4F | 47.7坪(157.6㎡) | 953,400円 | 20,000円/坪 | セットアップオフィス | 0円 | 相談 | 詳細を見る |

THE GATE 日本橋人形町














THE GATE 日本橋人形町は、人形町駅徒歩4分のセットアップオフィスです。2021年に大規模リノベーションを実施し、デザイン性の高い内装付きオフィスとして生まれ変わりました。基準階約70坪のフロアに個別空調・OAフロア・光ファイバーを完備し、24時間利用が可能です。日比谷線・浅草線・新宿線・半蔵門線の4路線が徒歩圏内にあり、都心各方面へのアクセスに優れています。敷金0円でオフィス移転の初期コストを抑制します。
| 階数 | 面積 | 賃料総額 | 坪単価 | 内装 | 敷金 | 入居日 | ||
|---|---|---|---|---|---|---|---|---|
| 6F | 62.6坪(207.1㎡) | 1,503,600円 | 24,000円/坪 | セットアップオフィス | 7ヶ月 | 2026-04-01T00:00:00.000Z | 詳細を見る |

R-TERRACE八丁堀




























JR京葉線・東京メトロ日比谷線八丁堀駅から徒歩4分。1975年竣工・耐震補強済みのSRC造8階建てオフィスです。2005年に大規模リニューアルを実施し、天井高2,500mm・OAフロア・個別空調を備えた現代的な執務環境。基準階約106坪で敷金0円、初期コストを抑えた入居が可能。新川エリアの隅田川沿いで開放感ある立地です。
| 階数 | 面積 | 賃料総額 | 坪単価 | 内装 | 敷金 | 入居日 | ||
|---|---|---|---|---|---|---|---|---|
| 2F | 106.5坪(352.2㎡) | 要問合せ | - | 事務所仕様 | 0円 | 相談 | 詳細を見る | |
| 5F | 106.5坪(352.2㎡) | 要問合せ | - | 事務所仕様 | 0円 | 相談 | 詳細を見る |
building-exteriorNOVEL WORK Hatchobori









八丁堀駅徒歩2分、JR京葉線・東京メトロ日比谷線に加え、宝町駅や京橋駅も徒歩圏内のセットアップオフィスです。グレートーンで統一された落ち着いた外観・内装が特徴の10階建てビルで、基準階約18坪のコンパクトな区画は少人数チームに最適。個別空調・共用トイレを備え、新耐震基準にも適合しています。東京駅・銀座エリアへのアクセスも良好で、ビジネスの拠点として高い利便性を誇ります。敷金0円の内装付きオフィスで、身軽なオフィス移転を実現します。
| 階数 | 面積 | 賃料総額 | 坪単価 | 内装 | 敷金 | 入居日 | ||
|---|---|---|---|---|---|---|---|---|
| 2F | 18.4坪(60.7㎡) | 495,450円 | 27,000円/坪 | セットアップオフィス | 5ヶ月 | 相談 | 詳細を見る | |
| 5F | 18.4坪(60.7㎡) | 495,450円 | 27,000円/坪 | セットアップオフィス | 5ヶ月 | 相談 | 詳細を見る |

Biz Feel 茅場町





































人形町駅・茅場町駅からそれぞれ徒歩3分のダブルアクセス。2024年竣工のRC造10階建て新築ビルです。天井高2,680mmの開放的な室内。木材を活かした温かみのあるインテリアデザインが特長です。1階に共有ラウンジを設置し、OAフロア・個別空調・男女別トイレを完備。敷金0円で初期費用を抑えられる点も魅力。新しいオフィスで事業を始めたい企業に最適です。
| 階数 | 面積 | 賃料総額 | 坪単価 | 内装 | 敷金 | 入居日 | ||
|---|---|---|---|---|---|---|---|---|
| 3F | 28.5坪(94.3㎡) | 886,200円 | 31,051円/坪 | セットアップオフィス | 0円 | 相談 | 詳細を見る | |
| 7F | 28.5坪(94.3㎡) | 886,200円 | 31,051円/坪 | セットアップオフィス | 0円 | 相談 | 詳細を見る |

AUBE新川

























八丁堀駅徒歩4分、中央区新川に建つ1974年竣工のSRC造10階建てビル。2018年にリニューアル済みで、エントランスも刷新されています。基準階約20坪で個別空調を完備。天井高2,400mmの事務所仕様。角地に位置し採光に優れた明るい室内が特長です。鍛冶橋通りと八重洲通りの交差点近くで交通利便性も良好。コンパクトなオフィスに適した物件です。
| 階数 | 面積 | 賃料総額 | 坪単価 | 内装 | 敷金 | 入居日 | ||
|---|---|---|---|---|---|---|---|---|
| 8F | 20.8坪(68.8㎡) | 353,940円 | 17,000円/坪 | 事務所仕様 | 6ヶ月 | 相談 | 詳細を見る |
222物件中 1〜20物件を表示