























オフィスビル外観1 / 25
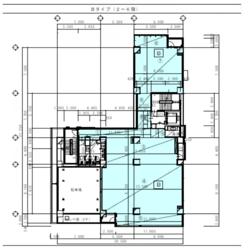
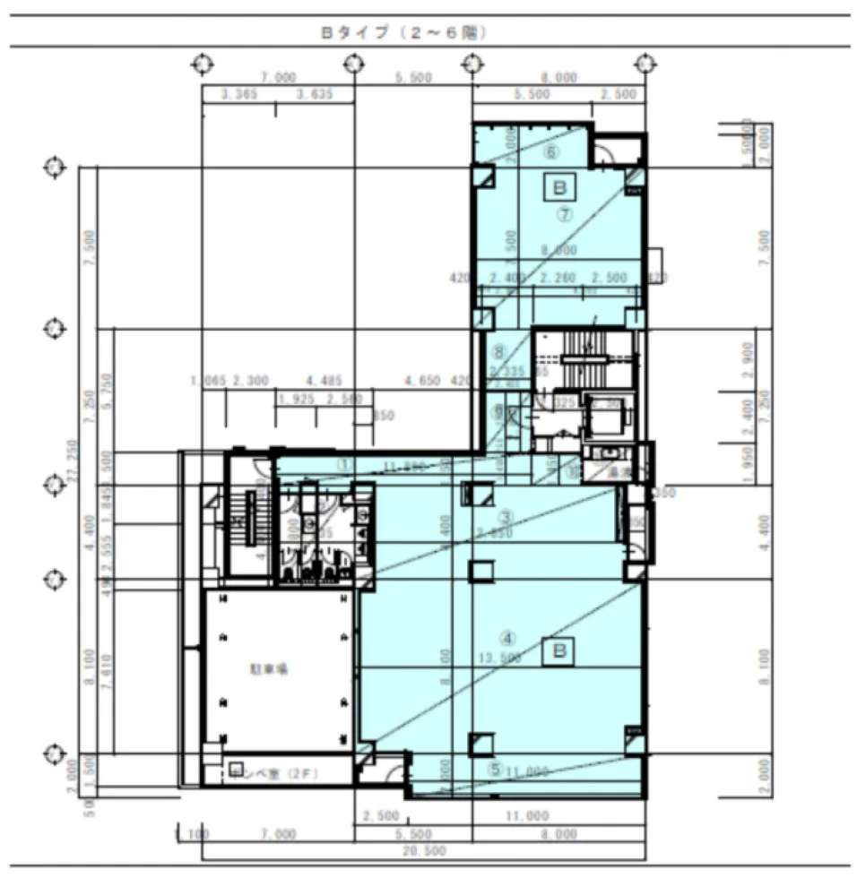
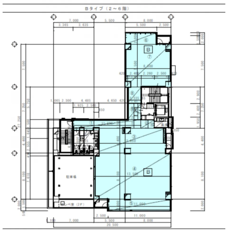
区画詳細情報
| 階数 | 4 | 内装 | 事務所仕様 |
|---|---|---|---|
| 面積(坪) | 87.88坪 | 面積(㎡) | 290.51㎡ |
| 賃料 | ¥1,318,200 | 坪単価 | ¥15,000/坪 |
| 敷金/保証金 | 10ヶ月0円 | 礼金 | - |
| 入居可能日 | - | 募集状況 | 空室 |
| 収容人数 | - | 会議室 | - |
| テレブース | - | 機械警備 | - |
| 天井高 | 2700 | 床仕様 | OAフロア |
| トイレ | 共用男女別 | 空調 | 個別 |
物件情報
| 物件名 | 博多駅サウスビル | ||
|---|---|---|---|
| 所在地 | 福岡県福岡市博多区博多駅南2-14-8 | ||
| 最寄駅 | 博多駅 徒歩8分 | ||
| 構造 | 鉄骨造 | 規模 | 地下9階地上9階建 |
| 竣工 | 2021 | リニューアル | - |



