曙橋駅の小規模オフィスの検索結果
検索結果 107 件 募集中/登録138,648件
building-exteriorフランセビル





JR中央・総武線および東京メトロ丸ノ内線・南北線が利用できる四ツ谷駅から徒歩約4分。新宿通り沿いに建つRC造地上7階・地下1階のオフィスビルで、1978年4月竣工。エレベーター1基を備え、南向きの一面採光で日当たり良好な貸室が特徴。四ツ谷は官公庁や大学が集まる落ち着いたビジネスエリアで、飲食店や金融機関も徒歩圏内に揃う。四谷三丁目駅や麹町駅も利用可能で、都心各所への移動に便利な立地。
| 階数 | 面積 | 賃料総額 | 坪単価 | 内装 | 敷金 | 入居日 | ||
|---|---|---|---|---|---|---|---|---|
| 3F | 12.0坪(39.7㎡) | 要問合せ | - | 事務所仕様 | 4ヶ月 | 相談 | 詳細を見る |
building-exteriorMYK四谷2丁目ビル










新宿区四谷2丁目、東京メトロ丸ノ内線四谷三丁目駅とJR・東京メトロ四ツ谷駅の2駅が利用可能な地上5階建てのオフィスビル。新宿通り周辺に位置し、新宿・赤坂方面への移動が容易な交通利便性が魅力。四谷エリアは落ち着いたオフィス街として知られ、官公庁や教育機関も多い品格あるビジネス環境。周辺にはコンビニや飲食店も点在し、日常の業務環境としても快適な立地。
| 階数 | 面積 | 賃料総額 | 坪単価 | 内装 | 敷金 | 入居日 | ||
|---|---|---|---|---|---|---|---|---|
| 1F | 23.3坪(77.0㎡) | 要問合せ | - | 事務所仕様 | 1ヶ月 | 相談 | 詳細を見る |
building-exteriorベルウッドビル





新宿区住吉町に位置する地上3階建てのコンパクトなオフィスビル。都営新宿線曙橋駅および都営大江戸線若松河田駅の2駅が徒歩圏内で利用可能。靖国通りや外苑東通りへのアクセスが良く、新宿・四谷方面への移動もスムーズ。住宅街寄りの落ち着いた環境にあり、静かなオフィス空間を求める企業に適した立地。小規模ビルならではのアットホームな雰囲気も特徴。
| 階数 | 面積 | 賃料総額 | 坪単価 | 内装 | 敷金 | 入居日 | ||
|---|---|---|---|---|---|---|---|---|
| 1F | 11.1坪(36.7㎡) | 要問合せ | - | 事務所仕様 | 2ヶ月 | 相談 | 詳細を見る |
building-exterior磯部ビル












新宿区左門町に所在する地上9階・地下1階建てのオフィスビル。東京メトロ丸ノ内線四谷三丁目駅およびJR信濃町駅の2駅が利用可能。四谷三丁目交差点や外苑東通りに近く、新宿・赤坂方面へのアクセスが良好。周辺エリアでは比較的規模の大きいビルで、複数フロアの選択肢がある点が魅力。須賀神社や荒木町の飲食街にも近く、ビジネスと生活利便性を兼ね備えた立地。
| 階数 | 面積 | 賃料総額 | 坪単価 | 内装 | 敷金 | 入居日 | ||
|---|---|---|---|---|---|---|---|---|
| 9F | 14.6坪(48.2㎡) | 要問合せ | - | 事務所仕様 | 3ヶ月 | 相談 | 詳細を見る |
floor-plan河田町KY
若松河田駅駅徒歩7分に位置するの地上6階 / 地下1階建てオフィスビル。約19.75坪のフロアは少人数から中規模オフィスに対応可能。
| 階数 | 面積 | 賃料総額 | 坪単価 | 内装 | 敷金 | 入居日 | ||
|---|---|---|---|---|---|---|---|---|
| 3F | 19.8坪(65.3㎡) | 要問合せ | - | 事務所仕様 | 5ヶ月 | 相談 | 詳細を見る |
building-exteriorMYK四ツ谷ビル








四ツ谷駅駅徒歩7分、四ツ谷駅駅徒歩7分に位置するの地上4階 / 地下1階建てオフィスビル。エレベーター1基を完備。約19.58坪のフロアは少人数から中規模オフィスに対応可能。
| 階数 | 面積 | 賃料総額 | 坪単価 | 内装 | 敷金 | 入居日 | ||
|---|---|---|---|---|---|---|---|---|
| B1 | 19.6坪(64.8㎡) | 要問合せ | - | 事務所仕様 | 6ヶ月 | 相談 | 詳細を見る |
building-exteriorボナフラワービル












四ツ谷駅徒歩7分の四谷三栄町に位置する地上5階建てオフィスビル。個別空調・エレベーター1基を完備。約31坪のフロアは少人数から中規模オフィスに対応可能。敷金5ヶ月で入居可能。四ツ谷エリアの閑静な住宅街に立地し、丸ノ内線・南北線・JR中央線の3路線が利用できます。
| 階数 | 面積 | 賃料総額 | 坪単価 | 内装 | 敷金 | 入居日 | ||
|---|---|---|---|---|---|---|---|---|
| 4F | 31.0坪(102.4㎡) | 要問合せ | - | 事務所仕様 | 5ヶ月 | 相談 | 詳細を見る |
building-exteriorACN四谷3丁目ビル












四谷三丁目駅駅徒歩2分、曙橋駅駅徒歩4分に位置するの地上8階 / 地下1階建てオフィスビル。エレベーター1基を完備。約23.71坪のフロアは少人数から中規模オフィスに対応可能。敷金3ヶ月で入居可能。
| 階数 | 面積 | 賃料総額 | 坪単価 | 内装 | 敷金 | 入居日 | ||
|---|---|---|---|---|---|---|---|---|
| 3F | 23.7坪(78.4㎡) | 要問合せ | - | 事務所仕様 | 3ヶ月 | 相談 | 詳細を見る |
building-exterior富士ビル










四谷三丁目駅徒歩5分、曙橋駅徒歩5分の愛住町に位置する地上10階・地下1階建てオフィスビル。個別空調・男女別トイレ・エレベーター1基を完備。約56坪のフロアは中規模オフィスに適した広さ。丸ノ内線と都営新宿線の2路線が利用可能です。
| 階数 | 面積 | 賃料総額 | 坪単価 | 内装 | 敷金 | 入居日 | ||
|---|---|---|---|---|---|---|---|---|
| 6F | 56.3坪(186.0㎡) | 要問合せ | - | 事務所仕様 | 8ヶ月 | 相談 | 詳細を見る |
building-exteriorTVB曙橋ビル










曙橋駅駅徒歩1分に位置するの地上9階建てオフィスビル。約17坪のフロアは少人数から中規模オフィスに対応可能。
| 階数 | 面積 | 賃料総額 | 坪単価 | 内装 | 敷金 | 入居日 | ||
|---|---|---|---|---|---|---|---|---|
| 4F | 17.0坪(56.2㎡) | 要問合せ | - | 事務所仕様 | 6ヶ月 | 相談 | 詳細を見る |
floor-plan四谷坂町ビル


曙橋駅駅徒歩6分、四ツ谷駅駅徒歩11分に位置するの地上4階建てオフィスビル。約27.36坪のフロアは少人数から中規模オフィスに対応可能。敷金3ヶ月で入居可能。
| 階数 | 面積 | 賃料総額 | 坪単価 | 内装 | 敷金 | 入居日 | ||
|---|---|---|---|---|---|---|---|---|
| 2F | 26.8坪(88.7㎡) | 要問合せ | - | 事務所仕様 | 3ヶ月 | 相談 | 詳細を見る | |
| 3F | 27.4坪(90.5㎡) | 要問合せ | - | 事務所仕様 | 3ヶ月 | 相談 | 詳細を見る | |
| 4F | 17.4坪(57.4㎡) | 要問合せ | - | 事務所仕様 | 3ヶ月 | 相談 | 詳細を見る |
building-exterior堀木ビル



四谷三丁目駅駅徒歩5分、四ツ谷駅駅徒歩8分に位置するの地上5階建てオフィスビル。約20.84坪のフロアは少人数から中規模オフィスに対応可能。
| 階数 | 面積 | 賃料総額 | 坪単価 | 内装 | 敷金 | 入居日 | ||
|---|---|---|---|---|---|---|---|---|
| 3F | 20.8坪(68.9㎡) | 要問合せ | - | 事務所仕様 | 800ヶ月 | 相談 | 詳細を見る |
building-exteriorボルベール四谷










四谷三丁目駅徒歩4分、曙橋駅徒歩5分の愛住町に位置する地上4階建てのコンパクトオフィスビル。約13坪の区画は少人数事務所に最適。敷金4ヶ月で入居可能。
| 階数 | 面積 | 賃料総額 | 坪単価 | 内装 | 敷金 | 入居日 | ||
|---|---|---|---|---|---|---|---|---|
| 2F | 13.4坪(44.5㎡) | 要問合せ | - | 事務所仕様 | 4ヶ月 | 相談 | 詳細を見る |
building-exterior第2山田ビル










曙橋駅徒歩2分、四谷三丁目駅徒歩8分の住吉町に位置する地上5階・地下1階建てオフィスビル。OAフロア・男女別トイレ・エレベーター1基を完備。約55坪のフロアは中規模オフィスに適した広さ。都営新宿線の曙橋駅至近です。
| 階数 | 面積 | 賃料総額 | 坪単価 | 内装 | 敷金 | 入居日 | ||
|---|---|---|---|---|---|---|---|---|
| 2F | 54.7坪(180.9㎡) | 要問合せ | - | 事務所仕様 | 6ヶ月 | 相談 | 詳細を見る |
building-exterior枝ビル



若松河田駅徒歩7分、東新宿駅徒歩9分の余丁町に位置する地上5階・地下2階建てオフィスビル。個別空調・エレベーター1基を完備。約76坪の大型フロアはワンフロア利用に適した広さ。敷金3ヶ月で入居可能。新宿エリアながら賃料が抑えられる穴場的立地です。
| 階数 | 面積 | 賃料総額 | 坪単価 | 内装 | 敷金 | 入居日 | ||
|---|---|---|---|---|---|---|---|---|
| B1 | 75.6坪(249.8㎡) | 要問合せ | - | 事務所仕様 | 3ヶ月 | 相談 | 詳細を見る |
building-exteriorYSビル










新宿御苑前駅徒歩5分、曙橋駅徒歩6分の四谷4丁目に位置する地上8階・地下1階建てオフィスビル。個別空調・エレベーター1基を完備。約18坪のフロアは少人数事務所に使いやすいサイズ。新宿御苑にも近い落ち着いた環境で、丸ノ内線と都営新宿線の2路線が利用可能です。
| 階数 | 面積 | 賃料総額 | 坪単価 | 内装 | 敷金 | 入居日 | ||
|---|---|---|---|---|---|---|---|---|
| 2F | 18.1坪(59.9㎡) | 要問合せ | - | 事務所仕様 | 4ヶ月 | 相談 | 詳細を見る |
building-exterior竹田ビル






四谷三丁目駅駅徒歩5分、四ツ谷駅駅徒歩7分に位置するの地上4階建てオフィスビル。約20坪のフロアは少人数から中規模オフィスに対応可能。
| 階数 | 面積 | 賃料総額 | 坪単価 | 内装 | 敷金 | 入居日 | ||
|---|---|---|---|---|---|---|---|---|
| 3F | 20.0坪(66.1㎡) | 要問合せ | - | 事務所仕様 | 6ヶ月 | 相談 | 詳細を見る |
building-exterior四谷4丁目32番4号ビル






新宿御苑前駅駅徒歩5分、四谷三丁目駅駅徒歩8分に位置するの地上6階 / 地下2階建てオフィスビル。エレベーター1基を完備。約46.95坪のフロアは中規模オフィスに適した広さ。
| 階数 | 面積 | 賃料総額 | 坪単価 | 内装 | 敷金 | 入居日 | ||
|---|---|---|---|---|---|---|---|---|
| 2F | 47.0坪(155.2㎡) | 要問合せ | - | 事務所仕様 | 5ヶ月 | 相談 | 詳細を見る |
building-exteriorVORT四谷坂町










曙橋駅駅徒歩6分、四ツ谷駅駅徒歩8分に位置するの地上8階建てオフィスビル。エレベーター2基を完備。約59.09坪のフロアは中規模オフィスに適した広さ。
| 階数 | 面積 | 賃料総額 | 坪単価 | 内装 | 敷金 | 入居日 | ||
|---|---|---|---|---|---|---|---|---|
| 4F | 59.1坪(195.3㎡) | 要問合せ | - | 事務所仕様 | 5ヶ月 | 2026/08/07 | 詳細を見る |
building-exteriorNOW/HERE新宿四谷










曙橋駅駅徒歩5分に位置するの地上8階建てオフィスビル。基準階約101.96坪の大型フロアが特徴。
| 階数 | 面積 | 賃料総額 | 坪単価 | 内装 | 敷金 | 入居日 | ||
|---|---|---|---|---|---|---|---|---|
| 5F | 102.0坪(337.1㎡) | 要問合せ | - | 事務所仕様 | 相談 | 2026/04/01 | 詳細を見る | |
| 7F | 77.4坪(256.0㎡) | 要問合せ | - | 事務所仕様 | 相談 | 2026/04/01 | 詳細を見る | |
| 8F | 77.4坪(256.0㎡) | 要問合せ | - | 事務所仕様 | 相談 | 2026/04/01 | 詳細を見る |
building-exterior第5富澤ビル(第5冨澤ビル)








四谷三丁目駅徒歩1分、曙橋駅徒歩7分の四谷3丁目に位置する地上5階建てのコンパクトオフィスビル。個別空調を完備。約13坪の区画は少人数事務所やSOHOに最適。丸ノ内線の四谷三丁目駅直上の好アクセスです。
| 階数 | 面積 | 賃料総額 | 坪単価 | 内装 | 敷金 | 入居日 | ||
|---|---|---|---|---|---|---|---|---|
| 4F | 13.1坪(43.4㎡) | 要問合せ | - | 事務所仕様 | 10ヶ月 | 相談 | 詳細を見る |
building-exteriorSEN四谷ビル





四谷三丁目駅徒歩2分、曙橋駅徒歩9分の左門町に位置する地上7階・地下1階建てオフィスビル。OAフロアを完備。約24坪のフロアは少人数オフィスに適した広さ。丸ノ内線の四谷三丁目駅至近で、須賀神社にも近い四谷エリアです。
| 階数 | 面積 | 賃料総額 | 坪単価 | 内装 | 敷金 | 入居日 | ||
|---|---|---|---|---|---|---|---|---|
| 3F | 24.1坪(79.5㎡) | 要問合せ | - | 事務所仕様 | 6ヶ月 | 相談 | 詳細を見る |
building-exteriorベルックス新宿Ⅱビル(ベルックス新宿ビル2)










曙橋駅徒歩3分、四谷三丁目駅徒歩5分の愛住町に位置する地上10階建てオフィスビル。個別空調・男女別トイレ・エレベーター2基を完備。約43坪のフロアは中規模オフィスに適した広さ。都営新宿線と丸ノ内線の2路線が利用可能です。
| 階数 | 面積 | 賃料総額 | 坪単価 | 内装 | 敷金 | 入居日 | ||
|---|---|---|---|---|---|---|---|---|
| 8F | 42.8坪(141.4㎡) | 要問合せ | - | 事務所仕様 | 10ヶ月 | 相談 | 詳細を見る |
building-exterior泰美ビル(ヤスミビル)





四谷三丁目駅駅徒歩5分、曙橋駅駅徒歩3分に位置するの地上6階建てオフィスビル。エレベーター1基を完備。約42.89坪のフロアは中規模オフィスに適した広さ。
| 階数 | 面積 | 賃料総額 | 坪単価 | 内装 | 敷金 | 入居日 | ||
|---|---|---|---|---|---|---|---|---|
| 4F | 42.9坪(141.8㎡) | 要問合せ | - | 事務所仕様 | 6ヶ月 | 相談 | 詳細を見る |
building-exteriorビリーヴ新宿(Believe SHINJUKU)












新宿御苑前駅駅徒歩7分に位置するの地上9階建てオフィスビル。約43.11坪のフロアは中規模オフィスに適した広さ。
| 階数 | 面積 | 賃料総額 | 坪単価 | 内装 | 敷金 | 入居日 | ||
|---|---|---|---|---|---|---|---|---|
| 2F | 43.1坪(142.5㎡) | 要問合せ | - | 事務所仕様 | 10ヶ月 | 相談 | 詳細を見る | |
| 7F | 43.1坪(142.5㎡) | 要問合せ | - | 事務所仕様 | 10ヶ月 | 2026/05/01 | 詳細を見る |
building-exteriorガーデンタワー37










曙橋駅駅徒歩5分、四ツ谷駅駅徒歩9分に位置するの地上8階建てオフィスビル。エレベーター1基を完備。約16.4坪のフロアは少人数から中規模オフィスに対応可能。
| 階数 | 面積 | 賃料総額 | 坪単価 | 内装 | 敷金 | 入居日 | ||
|---|---|---|---|---|---|---|---|---|
| 8F | 16.4坪(54.2㎡) | 要問合せ | - | 事務所仕様 | 6ヶ月 | 相談 | 詳細を見る |
building-exteriorラ・ベルロシェ






四谷三丁目駅駅徒歩4分、四ツ谷駅駅徒歩7分に位置するの地上5階建てオフィスビル。エレベーター1基を完備。約15.35坪のフロアは少人数から中規模オフィスに対応可能。敷金3ヶ月で入居可能。
| 階数 | 面積 | 賃料総額 | 坪単価 | 内装 | 敷金 | 入居日 | ||
|---|---|---|---|---|---|---|---|---|
| 2F | 15.3坪(50.7㎡) | 要問合せ | - | 事務所仕様 | 3ヶ月 | 相談 | 詳細を見る |
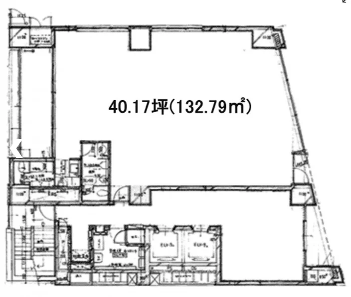
building-exterior新宿高砂ビル












新宿御苑前駅駅徒歩5分、新宿三丁目駅駅徒歩7分に位置するの地上11階 / 地下1階建てオフィスビル。エレベーター2基を完備。約40.17坪のフロアは中規模オフィスに適した広さ。敷金3ヶ月で入居可能。
| 階数 | 面積 | 賃料総額 | 坪単価 | 内装 | 敷金 | 入居日 | ||
|---|---|---|---|---|---|---|---|---|
| 1F | 40.2坪(132.8㎡) | 要問合せ | - | 事務所仕様 | 3ヶ月 | 相談 | 詳細を見る |
building-exterior第1光明堂ビル(第一光明堂ビル)









四谷三丁目駅徒歩1分の四谷3丁目に位置する地上10階・地下2階建てオフィスビル。個別空調・男女別トイレ・エレベーター1基を完備。約60坪のフロアは中規模オフィスに適した広さ。丸ノ内線の四谷三丁目駅直上で、新宿御苑通り沿いの好立地です。
| 階数 | 面積 | 賃料総額 | 坪単価 | 内装 | 敷金 | 入居日 | ||
|---|---|---|---|---|---|---|---|---|
| 6F | 60.0坪(198.3㎡) | 要問合せ | - | 事務所仕様 | 6ヶ月 | 2026/06 下旬 | 詳細を見る | |
| 7F | 23.3坪(77.0㎡) | 要問合せ | - | 事務所仕様 | 6ヶ月 | 相談 | 詳細を見る |
building-exterior三廣ビル(サンコウビル)






市ケ谷駅徒歩7分、四ツ谷駅徒歩9分の四谷坂町に位置する地上9階・地下3階建てオフィスビル。個別空調・男女別トイレ・エレベーター2基を完備。約24坪のフロアは少人数オフィスに適した広さ。市ヶ谷の閑静なエリアです。
| 階数 | 面積 | 賃料総額 | 坪単価 | 内装 | 敷金 | 入居日 | ||
|---|---|---|---|---|---|---|---|---|
| 2F | 24.3坪(80.4㎡) | 要問合せ | - | 事務所仕様 | 6ヶ月 | 2026/05/01 | 詳細を見る |
building-exteriorマーキュリースクエア




新宿御苑前駅駅徒歩5分、曙橋駅駅徒歩10分に位置するの地上10階建てオフィスビル。エレベーター1基を完備。約41.1坪のフロアは中規模オフィスに適した広さ。
| 階数 | 面積 | 賃料総額 | 坪単価 | 内装 | 敷金 | 入居日 | ||
|---|---|---|---|---|---|---|---|---|
| 3F | 41.1坪(135.9㎡) | 要問合せ | - | 事務所仕様 | 6ヶ月 | 2026/04 下旬 | 詳細を見る |
building-exteriorさつきビル






曙橋駅駅徒歩3分に位置するの地上 - 階建てオフィスビル。約10.66坪のコンパクトな区画は少人数事務所に最適。
| 階数 | 面積 | 賃料総額 | 坪単価 | 内装 | 敷金 | 入居日 | ||
|---|---|---|---|---|---|---|---|---|
| 1F | 10.7坪(35.2㎡) | 要問合せ | - | 事務所仕様 | 5ヶ月 | 相談 | 詳細を見る |

グランファースト新宿御苑






















四谷三丁目駅駅徒歩5分、新宿御苑前駅駅徒歩6分に位置するの地上8階 / 地下1階建てオフィスビル。エレベーター3基を完備。基準階約128.28坪の大型フロアが特徴。
| 階数 | 面積 | 賃料総額 | 坪単価 | 内装 | 敷金 | 入居日 | ||
|---|---|---|---|---|---|---|---|---|
| 3F | 153.6坪(507.7㎡) | 要問合せ | - | セットアップオフィス | 8ヶ月 | 2025/11 下旬 | 詳細を見る | |
| 4F | 128.3坪(424.1㎡) | 要問合せ | - | セットアップオフィス | 8ヶ月 | 相談 | 詳細を見る | |
| 4F | 128.3坪(424.1㎡) | 3,591,840円 | 28,000円/坪 | セットアップオフィス | 8ヶ月 | 即日 | 詳細を見る | |
| 6F | 128.3坪(424.1㎡) | 要問合せ | - | セットアップオフィス | 8ヶ月 | 相談 | 詳細を見る | |
| 7F | 128.3坪(424.1㎡) | 要問合せ | - | セットアップオフィス | 8ヶ月 | 相談 | 詳細を見る |
building-exterior第3山田ビル






曙橋駅駅徒歩2分、新宿三丁目駅駅徒歩7分に位置するの地上11階建てオフィスビル。エレベーター2基を完備。約66.83坪のフロアは中規模オフィスに適した広さ。
| 階数 | 面積 | 賃料総額 | 坪単価 | 内装 | 敷金 | 入居日 | ||
|---|---|---|---|---|---|---|---|---|
| 10階11階セット | 66.8坪(220.9㎡) | 要問合せ | - | 事務所仕様 | 10ヶ月 | 相談 | 詳細を見る |
building-exteriorサウスタワー






新宿御苑前駅駅徒歩6分、曙橋駅駅徒歩8分に位置するの地上10階 / 地下2階建てオフィスビル。エレベーター1基を完備。約61.18坪のフロアは中規模オフィスに適した広さ。
| 階数 | 面積 | 賃料総額 | 坪単価 | 内装 | 敷金 | 入居日 | ||
|---|---|---|---|---|---|---|---|---|
| 6F | 61.2坪(202.3㎡) | 要問合せ | - | 事務所仕様 | 7ヶ月 | 相談 | 詳細を見る |
building-exteriorBiz Feel 四谷3丁目







四谷三丁目駅駅徒歩2分、曙橋駅駅徒歩9分に位置するの地上9階 / 地下1階建てオフィスビル。エレベーター1基を完備。約20.18坪のフロアは少人数から中規模オフィスに対応可能。
| 階数 | 面積 | 賃料総額 | 坪単価 | 内装 | 敷金 | 入居日 | ||
|---|---|---|---|---|---|---|---|---|
| 2F | 20.2坪(66.7㎡) | 要問合せ | - | セットアップオフィス | 相談 | 2026/04 上旬 | 詳細を見る |
building-exterior四谷トーセイビルⅡ


四谷三丁目駅徒歩4分、曙橋駅徒歩10分の愛住町に位置する地上6階建てオフィスビル。エレベーター1基を完備。約58坪のフロアは中規模オフィスに適した広さ。丸ノ内線が使える四谷エリアです。
| 階数 | 面積 | 賃料総額 | 坪単価 | 内装 | 敷金 | 入居日 | ||
|---|---|---|---|---|---|---|---|---|
| 4F | 23.7坪(78.5㎡) | 要問合せ | - | 事務所仕様 | 10ヶ月 | 相談 | 詳細を見る | |
| 4F | 23.7坪(78.5㎡) | 要問合せ | - | 事務所仕様 | 10ヶ月 | 即入居 | 詳細を見る | |
| 5階6階セット | 58.0坪(191.8㎡) | 要問合せ | - | 事務所仕様 | 10ヶ月 | 相談 | 詳細を見る | |
| 2026-05-06T00:00:00.000Z | 58.0坪(191.8㎡) | 要問合せ | - | 事務所仕様 | 10ヶ月 | 即入居 | 詳細を見る |
リエール市ヶ谷
曙橋駅徒歩6分、牛込神楽坂駅徒歩7分の市谷仲之町に位置する地上6階・地下1階建ての大型オフィスビル。男女別トイレを完備。基準階約437坪の超大型フロアが特徴。BPOやコールセンターなど大面積が必要な用途に対応可能です。
| 階数 | 面積 | 賃料総額 | 坪単価 | 内装 | 敷金 | 入居日 | ||
|---|---|---|---|---|---|---|---|---|
| 1階2階セット | 436.9坪(1444.3㎡) | 要問合せ | - | 事務所仕様 | 10ヶ月 | 2026/11 上旬 | 詳細を見る |
floor-plan四谷トーセイビル






四谷三丁目駅駅徒歩3分、新宿御苑前駅駅徒歩8分に位置するの地上 - 階建てオフィスビル。エレベーター2基を完備。基準階約86.85坪の大型フロアが特徴。
| 階数 | 面積 | 賃料総額 | 坪単価 | 内装 | 敷金 | 入居日 | ||
|---|---|---|---|---|---|---|---|---|
| 7F | 86.8坪(287.1㎡) | 要問合せ | - | 事務所仕様 | 10ヶ月 | 相談 | 詳細を見る | |
| 8F | 86.8坪(287.1㎡) | 要問合せ | - | 事務所仕様 | 10ヶ月 | 相談 | 詳細を見る | |
| 9F | 86.8坪(287.1㎡) | 要問合せ | - | 事務所仕様 | 10ヶ月 | 相談 | 詳細を見る |

NOW/HERE新宿四谷










曙橋駅徒歩5分、サンケイビル初のシェアオフィスブランド「NOW/HERE」の第1号物件。「Nowhere(ここにしかない)」と「Now Here(いまここにいる)」の2つの意味を込めたブランドで、2026年2月に竣工。1階と6階に100席以上の上質なラウンジを備え、敷金0円で利用を開始できます。個別空調・OAフロア・光ファイバー・24時間機械警備を完備。四谷駅からも徒歩圏内で5路線が利用可能。新宿駅から2駅3分というアクセスの良さも、オフィス移転先として大きな魅力です。
| 階数 | 面積 | 賃料総額 | 坪単価 | 内装 | 敷金 | 入居日 | ||
|---|---|---|---|---|---|---|---|---|
| 2F 2013 | 9.3坪(30.7㎡) | 要問合せ | - | シェアオフィス | 0円 | 2026/4/1 ※詳細は要問合せ | 詳細を見る | |
| 2F 2015 | 3.7坪(12.4㎡) | 要問合せ | - | シェアオフィス | 0円 | 2026/4/1 ※詳細は要問合せ | 詳細を見る | |
| 2F 2014 | 3.9坪(13.0㎡) | 要問合せ | - | シェアオフィス | 0円 | 2026/4/1 ※詳細は要問合せ | 詳細を見る | |
| 2F 2012 | 3.4坪(11.1㎡) | 要問合せ | - | シェアオフィス | 0円 | 2026/4/1 ※詳細は要問合せ | 詳細を見る | |
| 2F 2011 | 3.5坪(11.5㎡) | 要問合せ | - | シェアオフィス | 0円 | 2026/4/1 ※詳細は要問合せ | 詳細を見る | |
| 2F 2010 | 3.0坪(10.0㎡) | 要問合せ | - | シェアオフィス | 0円 | 2026/4/1 ※詳細は要問合せ | 詳細を見る | |
| 2F 2009 | 4.7坪(15.5㎡) | 要問合せ | - | シェアオフィス | 0円 | 2026/4/1 ※詳細は要問合せ | 詳細を見る | |
| 2F 2008 | 6.5坪(21.7㎡) | 要問合せ | - | シェアオフィス | 0円 | 2026/4/1 ※詳細は要問合せ | 詳細を見る | |
| 2F 2007 | 3.8坪(12.7㎡) | 要問合せ | - | シェアオフィス | 0円 | 2026/4/1 ※詳細は要問合せ | 詳細を見る | |
| 2F 2006 | 3.8坪(12.7㎡) | 要問合せ | - | シェアオフィス | 0円 | 2026/4/1 ※詳細は要問合せ | 詳細を見る | |
| 2F 2005 | 1.9坪(6.3㎡) | 要問合せ | - | シェアオフィス | 0円 | 2026/4/1 ※詳細は要問合せ | 詳細を見る | |
| 2F 2004 | 1.9坪(6.4㎡) | 要問合せ | - | シェアオフィス | 0円 | 2026/4/1 ※詳細は要問合せ | 詳細を見る | |
| 2F 2003 | 10.6坪(35.0㎡) | 要問合せ | - | シェアオフィス | 0円 | 2026/4/1 ※詳細は要問合せ | 詳細を見る | |
| 2F 2002 | 11.5坪(37.9㎡) | 要問合せ | - | シェアオフィス | 0円 | 2026/4/1 ※詳細は要問合せ | 詳細を見る | |
| 2F 2001 | 11.1坪(36.8㎡) | 要問合せ | - | シェアオフィス | 0円 | 2026/4/1 ※詳細は要問合せ | 詳細を見る | |
| 3F 3015 | 3.7坪(12.1㎡) | 要問合せ | - | シェアオフィス | 0円 | 2026/4/1 ※詳細は要問合せ | 詳細を見る | |
| 3F 3014 | 4.0坪(13.3㎡) | 要問合せ | - | シェアオフィス | 0円 | 2026/4/1 ※詳細は要問合せ | 詳細を見る | |
| 3F 3013 | 9.3坪(30.7㎡) | 要問合せ | - | シェアオフィス | 0円 | 2026/4/1 ※詳細は要問合せ | 詳細を見る | |
| 3F 3012 | 3.4坪(11.1㎡) | 要問合せ | - | シェアオフィス | 0円 | 2026/4/1 ※詳細は要問合せ | 詳細を見る | |
| 3F 3011 | 3.5坪(11.5㎡) | 要問合せ | - | シェアオフィス | 0円 | 2026/4/1 ※詳細は要問合せ | 詳細を見る | |
| 3F 3010 | 3.0坪(10.0㎡) | 要問合せ | - | シェアオフィス | 0円 | 2026/4/1 ※詳細は要問合せ | 詳細を見る | |
| 3F 3009 | 4.7坪(15.5㎡) | 要問合せ | - | シェアオフィス | 0円 | 2026/4/1 ※詳細は要問合せ | 詳細を見る | |
| 3F 3008 | 6.4坪(21.1㎡) | 要問合せ | - | シェアオフィス | 0円 | 2026/4/1 ※詳細は要問合せ | 詳細を見る | |
| 3F 3007 | 3.6坪(12.1㎡) | 要問合せ | - | シェアオフィス | 0円 | 2026/4/1 ※詳細は要問合せ | 詳細を見る | |
| 3F 3006 | 3.6坪(12.1㎡) | 要問合せ | - | シェアオフィス | 0円 | 2026/4/1 ※詳細は要問合せ | 詳細を見る | |
| 3F 3005 | 1.6坪(5.4㎡) | 要問合せ | - | シェアオフィス | 0円 | 2026/4/1 ※詳細は要問合せ | 詳細を見る | |
| 3F 3004 | 1.6坪(5.4㎡) | 要問合せ | - | シェアオフィス | 0円 | 2026/4/1 ※詳細は要問合せ | 詳細を見る | |
| 3F 3003 | 8.0坪(26.6㎡) | 要問合せ | - | シェアオフィス | 0円 | 2026/4/1 ※詳細は要問合せ | 詳細を見る | |
| 3F 3002 | 6.4坪(21.1㎡) | 要問合せ | - | シェアオフィス | 0円 | 2026/4/1 ※詳細は要問合せ | 詳細を見る | |
| 3F 3001 | 19.1坪(63.3㎡) | 要問合せ | - | シェアオフィス | 0円 | 2026/4/1 ※詳細は要問合せ | 詳細を見る | |
| 4F 4015 | 3.8坪(12.6㎡) | 要問合せ | - | シェアオフィス | 0円 | 2026/4/1 ※詳細は要問合せ | 詳細を見る | |
| 4F 4014 | 3.7坪(12.3㎡) | 要問合せ | - | シェアオフィス | 0円 | 2026/4/1 ※詳細は要問合せ | 詳細を見る | |
| 4F 4013 | 9.3坪(30.7㎡) | 要問合せ | - | シェアオフィス | 0円 | 2026/4/1 ※詳細は要問合せ | 詳細を見る | |
| 4F 4012 | 3.4坪(11.1㎡) | 要問合せ | - | シェアオフィス | 0円 | 2026/4/1 ※詳細は要問合せ | 詳細を見る | |
| 4F 4011 | 3.5坪(11.5㎡) | 要問合せ | - | シェアオフィス | 0円 | 2026/4/1 ※詳細は要問合せ | 詳細を見る | |
| 4F 4010 | 2.9坪(9.4㎡) | 要問合せ | - | シェアオフィス | 0円 | 2026/4/1 ※詳細は要問合せ | 詳細を見る | |
| 4F 4009 | 4.6坪(15.3㎡) | 要問合せ | - | シェアオフィス | 0円 | 2026/4/1 ※詳細は要問合せ | 詳細を見る | |
| 4F 4008 | 6.6坪(21.7㎡) | 要問合せ | - | シェアオフィス | 0円 | 2026/4/1 ※詳細は要問合せ | 詳細を見る | |
| 4F 4007 | 3.8坪(12.5㎡) | 要問合せ | - | シェアオフィス | 0円 | 2026/4/1 ※詳細は要問合せ | 詳細を見る | |
| 4F 4006 | 3.8坪(12.5㎡) | 要問合せ | - | シェアオフィス | 0円 | 2026/4/1 ※詳細は要問合せ | 詳細を見る | |
| 4F 4005 | 1.8坪(5.8㎡) | 要問合せ | - | シェアオフィス | 0円 | 2026/4/1 ※詳細は要問合せ | 詳細を見る | |
| 4F 4004 | 1.8坪(5.8㎡) | 要問合せ | - | シェアオフィス | 0円 | 2026/4/1 ※詳細は要問合せ | 詳細を見る | |
| 4F 4003 | 10.7坪(35.4㎡) | 要問合せ | - | シェアオフィス | 0円 | 2026/4/1 ※詳細は要問合せ | 詳細を見る | |
| 4F 4002 | 11.3坪(37.5㎡) | 要問合せ | - | シェアオフィス | 0円 | 2026/4/1 ※詳細は要問合せ | 詳細を見る | |
| 4F 4001 | 11.2坪(37.1㎡) | 要問合せ | - | シェアオフィス | 0円 | 2026/4/1 ※詳細は要問合せ | 詳細を見る | |
| 5F | 102.0坪(337.1㎡) | 要問合せ | - | セットアップオフィス | 0円 | 2026-04-01T00:00:00.000Z | 詳細を見る | |
| 7F | 77.5坪(256.1㎡) | 要問合せ | - | セットアップオフィス | 0円 | 2026-04-01T00:00:00.000Z | 詳細を見る | |
| 8F | 77.5坪(256.1㎡) | 要問合せ | - | セットアップオフィス | 0円 | 2026-04-01T00:00:00.000Z | 詳細を見る |

Biz Feel 四谷三丁目












四谷三丁目駅から徒歩2分、新宿通り沿いに立つセットアップオフィスです。20.18坪のコンパクトなフロアは、スタートアップや少人数チームのオフィス移転に最適なサイズ。OAフロア・個別空調・男女別トイレ・24時間利用可能と、内装付きオフィスとしての基本設備が整っています。敷金0円で初期コストを抑えつつ、曙橋駅・新宿御苑前駅も徒歩圏内という3駅利用可能な交通利便性が魅力です。周辺にはコンビニや飲食店も豊富にそろっています。
| 階数 | 面積 | 賃料総額 | 坪単価 | 内装 | 敷金 | 入居日 | ||
|---|---|---|---|---|---|---|---|---|
| 2F | 20.2坪(66.7㎡) | 605,400円 | 30,000円/坪 | セットアップオフィス | 0円 | 2026年4月上旬予定 | 詳細を見る |

四谷オーキッドビル




































国立競技場駅駅徒歩5分、四谷三丁目駅駅徒歩6分に位置するの地上10階 / 地下1階建てオフィスビル。エレベーター1基を完備。約43.38坪のフロアは中規模オフィスに適した広さ。
| 階数 | 面積 | 賃料総額 | 坪単価 | 内装 | 敷金 | 入居日 | ||
|---|---|---|---|---|---|---|---|---|
| 4F | 43.4坪(143.4㎡) | 要問合せ | - | 事務所仕様 | 10ヶ月 | 相談 | 詳細を見る |

細井ビル

























四谷三丁目駅徒歩2分、曙橋駅徒歩7分の四谷4丁目に位置する地上8階・地下1階建てオフィスビル。OAフロア・男女別トイレ・エレベーター1基を完備。約62坪のフロアは中規模オフィスに適した広さ。丸ノ内線の四谷三丁目駅至近です。
| 階数 | 面積 | 賃料総額 | 坪単価 | 内装 | 敷金 | 入居日 | ||
|---|---|---|---|---|---|---|---|---|
| 2F | 62.2坪(205.6㎡) | 要問合せ | - | 事務所仕様 | 0円 | 相談 | 詳細を見る |

いちご四谷四丁目ビル





















四谷三丁目駅駅徒歩3分、新宿御苑前駅駅徒歩5分に位置するの地上11階建てオフィスビル。エレベーター1基を完備。約21.49坪のフロアは少人数から中規模オフィスに対応可能。
| 階数 | 面積 | 賃料総額 | 坪単価 | 内装 | 敷金 | 入居日 | ||
|---|---|---|---|---|---|---|---|---|
| 4F | 21.5坪(71.0㎡) | 要問合せ | - | 事務所仕様 | 相談 | 相談 | 詳細を見る |

FORECAST四谷















































四谷三丁目駅駅徒歩3分、四ツ谷駅駅徒歩5分に位置するの地上11階建てオフィスビル。エレベーター1基を完備。約52.21坪のフロアは中規模オフィスに適した広さ。
| 階数 | 面積 | 賃料総額 | 坪単価 | 内装 | 敷金 | 入居日 | ||
|---|---|---|---|---|---|---|---|---|
| 10F | 52.2坪(172.6㎡) | 要問合せ | - | 事務所仕様 | 0円 | 相談 | 詳細を見る |
107物件中 1〜20物件を表示