STATION SEARCH沿線・駅からオフィスを検索する
築地駅の小規模オフィス一覧
サイトに掲載できない非公開物件が多数ございます。
セットアップ・居抜き・敷金0円など、サイト未掲載の物件もご提案可能です。
検索結果 83 区画 募集中/登録374,683区画
敷金
4ヶ月0円
オフィスビル外観1 / 20




















敷金
4ヶ月0円
JP-BASE築地駅前
セットアップ有
住所東京都中央区築地2-10-2エリア新富町・築地最寄り駅築地駅 徒歩1分、新富町駅 徒歩2分空き区画1区画
オフィス物件詳細を見る →



















| 階数 | 面積 | 賃料総額 | 坪単価 | 内装 | 敷金 | 入居日 | ||
|---|---|---|---|---|---|---|---|---|
| 2F | 26.0坪(85.9㎡) | 623,760円 | 24,000円 | セットアップオフィス | 0円 | 相談 | 詳細を見る |
敷金
8ヶ月0円
オフィスビル外観1 / 12












敷金
8ヶ月0円
ACN築地テラスビル
セットアップ有
住所東京都中央区築地2-2-8エリア新富町・築地最寄り駅新富町駅 徒歩2分、築地駅 徒歩2分空き区画1区画
オフィス物件詳細を見る →











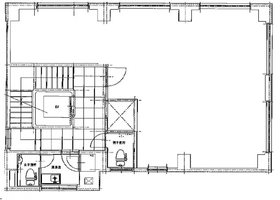
新富町駅徒歩2分の好立地に建つ、地上6階・地下1階のセットアップオフィスです。1989年竣工で新耐震基準に適合し、OAフロア・男女別トイレを完備。基準階約30坪のフロアは敷金0円の内装付きオフィスとして提供されるため、オフィス移転時の初期費用を大幅に削減できます。築地・銀座エリアに近く、飲食店や商業施設が充実した環境で、社員の利便性も抜群です。有楽町線新富町駅に加え、日比谷線築地駅やJR京葉線八丁堀駅も徒歩圏内。中央区でコストパフォーマンスの高いオフィスをお探しの方におすすめです。
| 階数 | 面積 | 賃料総額 | 坪単価 | 内装 | 敷金 | 入居日 | ||
|---|---|---|---|---|---|---|---|---|
| 4F | 30.3坪(100.1㎡) | 要問合せ | - | セットアップオフィス | 8ヶ月 | 2026/10/01 | 詳細を見る |
敷金6ヶ月
オフィスビル外観1 / 8








敷金6ヶ月
新富太陽ビル
セットアップ有
住所東京都中央区新富2-2-13エリア新富町・築地最寄り駅新富町駅 徒歩1分、築地駅 徒歩3分空き区画1区画
オフィス物件詳細を見る →







| 階数 | 面積 | 賃料総額 | 坪単価 | 内装 | 敷金 | 入居日 | ||
|---|---|---|---|---|---|---|---|---|
| 5F | 19.7坪(65.2㎡) | 要問合せ | - | セットアップオフィス | 6ヶ月 | 即日 | 詳細を見る |
敷金相談
外観1 / 5





敷金相談
PMO八丁堀Ⅴ
セットアップ有
住所東京都中央区入船2-2-2エリア新富町・築地最寄り駅八丁堀駅 徒歩4分、築地駅 徒歩6分空き区画1区画
オフィス物件詳細を見る →




| 階数 | 面積 | 賃料総額 | 坪単価 | 内装 | 敷金 | 入居日 | ||
|---|---|---|---|---|---|---|---|---|
| 10F | 76.4坪(252.6㎡) | 要問合せ | - | セットアップオフィス | 相談 | 相談 | 詳細を見る |
敷金4ヶ月
オフィスビル外観1 / 9









敷金4ヶ月
growth ginza east
セットアップ有
住所東京都中央区新富2-7-4エリア新富町・築地最寄り駅新富町駅 徒歩1分、築地駅 徒歩5分空き区画1区画
オフィス物件詳細を見る →








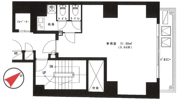
新富町駅徒歩1分、八丁堀駅・東銀座駅も利用可能な銀座東エリアのセットアップオフィスです。2018年に外観・エントランスのリニューアルを実施し、グレーを基調としたスタイリッシュな外観に一新。23.91坪のフロアは個別空調・OAフロア・機械警備・男女別トイレを完備しています。屋上バルコニーも利用可能で、リフレッシュの場としても活用いただけます。銀座アドレスの内装付きオフィスに、敷金0円でオフィス移転が叶う物件です。
| 階数 | 面積 | 賃料総額 | 坪単価 | 内装 | 敷金 | 入居日 | ||
|---|---|---|---|---|---|---|---|---|
| 4F | 23.9坪(79.0㎡) | 549,930円 | 23,000円 | セットアップオフィス | 4ヶ月 | 相談 | 詳細を見る |
サイトに掲載できない非公開物件が多数ございます。
セットアップ・居抜き・敷金0円など、サイト未掲載の物件もご提案可能です。
敷金8ヶ月
オフィスビル外観1 / 7







敷金8ヶ月
ACN銀座イーストビル
セットアップ有
住所東京都中央区新富2-14-5エリア新富町・築地最寄り駅新富町駅 徒歩1分、築地駅 徒歩3分空き区画1区画
オフィス物件詳細を見る →






| 階数 | 面積 | 賃料総額 | 坪単価 | 内装 | 敷金 | 入居日 | ||
|---|---|---|---|---|---|---|---|---|
| 9F | 23.6坪(78.2㎡) | 要問合せ | - | セットアップオフィス | 8ヶ月 | 相談 | 詳細を見る |
53物件中 1〜20物件を表示