セットアップオフィス・内装付きオフィスを多数掲載。家具付き・即入居可能で内装工事不要、初期費用を大幅に削減できます。敷金0円から検索可能。スタートアップ・ベンチャーから中小企業のオフィス移転に最適。 …
サイトに掲載できない非公開物件が多数ございます。
セットアップ・居抜き・敷金0円など、サイト未掲載の物件もご提案可能です。
検索結果 2 件 募集中/登録188,450件
オフィスビル外観





















































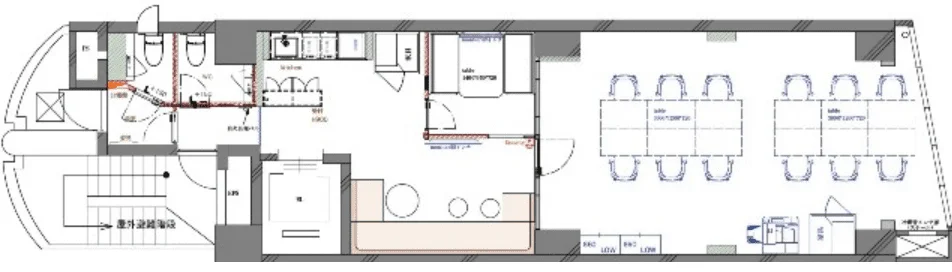
三軒茶屋駅徒歩8分、2025年にフルリノベーションを施したセットアップオフィス。サンフロンティア不動産が手がけるNOVEL WORKブランドとして、会議室・テレカンブース・ラウンジスペース・屋上テラスなど充実した共用設備を備えています。23.81坪のフロアは少人数チームに最適で、おしゃれな内装がクリエイティブな働き方を後押しします。敷金0円の内装付きオフィスとして、渋谷近郊でのオフィス移転をお探しの方におすすめです。
| 階数 | 面積 | 賃料総額 | 坪単価 | 内装 | 敷金 | 入居日 | ||
|---|---|---|---|---|---|---|---|---|
| 4F | 23.8坪(78.7㎡) | 571,440円 | 24,000円 | セットアップオフィス | 相談 | 相談 | 詳細を見る | |
| 5F | 23.8坪(78.7㎡) | 571,440円 | 24,000円 | セットアップオフィス | 相談 | 相談 | 詳細を見る |
1物件中 1〜1物件を表示
| エリア | 平均坪単価 |
|---|---|
| 三軒茶屋・池尻 | 24,000円/坪 |
A. 世田谷区のセットアップオフィスの平均坪単価は約24,000円です。通常のオフィスと比べると坪単価はやや高めですが、内装工事費(坪あたり20〜40万円)が不要なため、3年以内の利用であればトータルコストは安くなるケースが多いです。
A. セットアップオフィスはビルオーナーが新品の内装・家具を用意した物件で、デザインが統一されており即入居可能です。居抜きオフィスは前テナントの内装をそのまま引き継ぐ物件で、状態にばらつきがあります。セットアップオフィスの方が品質が安定しており、原状回復の範囲も明確です。
A. 主なメリットは①内装工事不要で初期費用を大幅削減、②契約後すぐに入居・業務開始可能、③デスク・チェア・ネット回線が備え付け、④原状回復費用が通常オフィスより安い、⑤短期契約に対応している物件が多い、の5点です。スタートアップや急な移転が必要な企業に特に適しています。
A. セットアップオフィスの原状回復は、備え付けの家具・内装はそのままで、持ち込んだ物品の撤去と清掃のみで済むケースが一般的です。通常のオフィスでは坪あたり5〜10万円かかる原状回復費用が、大幅に抑えられます。ただし契約内容により異なるため、契約前に必ず確認してください。
A. 世田谷区エリアでも敷金0円のセットアップオフィスが随時掲載されます。最新の空室情報をご確認ください。